Joukowsky Institute for Archaeology & the Ancient World

Providence, R.I. / Anmahian Winton Architects

4 MIN READ

Rhode Island Hall, an august 1840s Greek Revival structure at Brown University, is a major chess piece on the main quad, with one entrance opening onto the green and the other toward town. Prominent by location and distinguished by its stylistic purity, it is also singular for a stucco façade (which simulates limestone) on the brick campus.

Because of the building’s iconic status at the university, all eyes were on Anmahian Winton Architects of Cambridge, Mass., when it was asked to reinvent the 15,000-square-foot interior of the Joukowsky Institute for Archaeology and the Ancient World. The exterior had been restored a decade before, but the interior, compromised by many jerrymandered changes over decades, demanded restructuring and a gut renovation.

Compounding the expectations was the archaeologists’ request that the architects dust off the image of their field with an up-to-date interior that would attract faculty and graduate students. The design also fosters an environment that encourages spontaneous exchanges between scholars. The clients perceived architecture as an instrument for defining the institution and enhancing its competitive academic position.

The structure originally was designed as a natural history museum with specimen display cabinets in a daylit, top-floor space. Along with the restored shell and a sound roof, the architects inherited five massive skylight openings whose luminosity would be the only constant after the floors were removed and the structure taken back to the rubble walls. “Over the years, the spaces were closed in and chopped up, but the [skylights] on the top floor were intact,” principal Nick Winton—who designed the project with partner Alex Anmahian—says. “The genesis of the design was how to distribute and manage that light.”

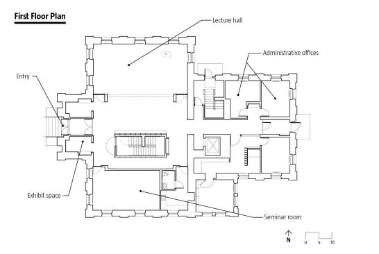
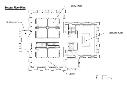
It was the rare interiors commission with a strong mission, a distinguished existing building, and a mandate to build inside from the ground up. The program itself called for classrooms, a lecture hall that could double as an event space, and faculty and administrative offices. “They wanted niches for artifact display,” notes Winton, “but they were clear about being perceived as an active research facility, not a museum.” The architects organized the program so that the most appropriate spaces would occupy the luminous second floor. Conceptually, the vector of the design went from the high-ceilinged ground floor up through a core staircase to the light.

Winton and Anmahian, working with project manager Aaron Bruckerhoff, deployed the administrative offices, common room, and lecture hall on the ground floor, and set the new ceiling at a generous 12 feet. The architects saved the second floor for the faculty offices, library, lounge, and student research space. The library rings the perimeter of this double-height space, and the offices—in a translucent glass enclosure—form a glass-walled island centered in the large room. The cluster of offices acts as a podium for a mezzanine designed as an open graduate student research studio directly under the skylights.

The architects orchestrated the basic rudiments of architecture—a core staircase, overlooks, pooled space, glass walls—to socialize the interior and keep it from becoming a den of isolated and isolating cubicles and offices. But there is a material corollary to their socializing strategy. Throughout both floors, the architects built screens made of slender, 1-by-6-inch, walnut-veneered fins that separate spaces without closing them. Their porosity allows spatial flow and visual access while giving the spaces definition.

The twist, however, is in their twist. At strategic moments in the plan, the screens warp, creating peeling planes that dynamize walls and spaces within the static confines of the original stone shell. Designed and fabricated with digital files, the screens are geometrically complex, but were not difficult or prohibitively expensive to craft.

The Greek Revival shell represents the progressive thinking of its time, and the screens inflect the stately shell with the grace and intelligence of our own day. The design is progressive without being conspicuously radical. And no one can mistake this digitally driven interior for a musty museum that houses a staid academic department. The dynamic interiors imply a dynamic institution.


Project Credits

Project Joukowsky Institute for Archaeology & the Ancient World, Providence, R.I.
Client/Owner Brown University
Architect Anmahian Winton Architects, Cambridge, Mass.—Nick Winton (principal-in-charge); Alex Anmahian (consulting principal); Aaron Bruckerhoff (project manager); Joel Lamere (project architect); Makoto Abe (project designer); Aaron Stavart, Esther Chung, Sabah Corso (project team)
Mechanical/Electrical Engineer RDK Engineers
Structural Engineer Richmond So Engineers
Geotechnical engineer GZA
Construction Manager/General Contractor Shawmut Design & Construction
Landscape Architect Hines Wasser Associates
Lighting Designer Lam Partners
Size 15,000 square feet
Cost $8 million

Material & Sources

Carpet Lees Carpets leescarpets.com
Ceilings Certainteed (Ecophon) certainteed.com; Armstrong Ceilings armstrong.com
Doors Monarch Industries monarchinc.com; Skyfold skyfold.com
Flooring Natural Cork naturalcork.com
Furniture Steelcase steelcase.com; Neudorfer neudorfer.com; Cabot Wrenn cabotwrenn.com
Glass Oldcastle Glass oldcastle.com
HVAC York york.com
Insulation Demilec demilec.com; Certainteed certainteed.com
Lighting Control Systems Lutron lutron.com
Lighting Ledalite ledalite.com; Lightolier lightolier.com; IO LED iolighting.com; Prudential prulite.com; Bartco bartcolighting.com; Focal Point focalpointlights.com; Vode vode.com
Metal Capco Steel Corp. capcosteelco.com; Newark Wire Works newarkwireworks.com
Millwork Monarch Industries monarchinc.com
Paints and finishes Benjamin Moore benjaminmoore.com
Site and landscape products Yard Works yardworksri.com
Structural system Capco Steel Corp. capcosteelco.com
Wayfinding Malcolm Grear Designers mgrear.com; Sunshine Sign Co. sunshinesign.com

About the Author

Joseph Giovannini

A prominent critic, journalist, author, teacher and architectural designer, Giovannini earned his master's degree at Harvard University's Graduate School of Design and runs his own practice, Giovannini Associates.

No recommended contents to display.

Upcoming Events

  • Build-to-Rent Conference

    JW Marriott Phoenix Desert Ridge

    Register Now
  • Reimagining Sense of Place: Materiality, Spatial Form, and Connections to Nature

    Webinar

    Register for Free
  • Homes that Last: How Architects Are Designing a Resilient Future

    Webinar

    Register Now
All Events