Home of the Year

A special presentation of Architecture magazine's awards for residential architecture.

9 MIN READ

The Jury

KEVIN ALTER is Sid W. Richardson Centennial Professor of Architecture and associate dean for Graduate Programs at The University of Texas at Austin. He is a graduate of Bennington College and of Harvard University and has practiced professionally in Massachusetts, New York, and Texas. His professional work has received several design awards, including a 1998 AIA Honor Award.

JULIE EIZENBERG is a principal of Koning Eizenberg Architecture, which she established with partner Hank Koning in 1981. She is a peer reviewer for the GSA Design Excellence program and recipient of the 2004 Design Excellence Award from the Association of Women in Architecture. Based in Santa Monica, Calif., Koning Eizenberg Architecture was named the 2004 Residential Architect Firm of the Year.

ROBERT HULL and his partner David Miller founded their Seattle firm in 1977, after both had graduated from Washington State University and served in the Peace Corps. Some 70 percent of Miller|Hull’s projects involve public funding, and they range in scale from neighborhood park structures and single-family houses to a $54 million laboratory and classroom building. Miller|Hull was named AIA Firm of the Year in 2003.

ROCIO ROMERO is the owner of Rocio Romero, a Perryville, Mo., firm that designs, builds, and sells prefabricated houses in two models: the LV series and the Camp series. Rocio received her Masters of Architecture from Southern California Institute of Architecture and her Bachelor of Arts Degree in Environmental Design with a major in Architecture from UC Berkeley.

MARC TSURUMAKI is a cofounder of the New York City firm Lewis.Tsurumaki.Lewis. He has taught at institutions including Columbia and Barnard Colleges and Parsons The New School for Design. In 2002, Marc was named a trustee of the Van Alen Institute. His firm’s recent projects range from a collection of wall coverings for Knoll Textiles to a 47,500-square-foot residence hall for the College of Wooster, Ohio.


The Winners

Platform House

Platte County, Mo.

Rockhill and Associates

KEVIN ALTER: A handsome plan. It is very clear.

ROBERT HULL: That core along the back: It gets it all, doesn’t it? And contains it all. It is really nice.

ALTER: I find the exterior a bit too fussy. But I find the interior to be really compelling. It’s robust, with the concrete floor. It is very stylish. The sliding wall is very handsome. All of the tectonic explicitness of the outside is a bit of distraction.

JULIE EIZENBERG: To a certain extent the tackiness sets up the serenity though, so it works as a first act.

HULL: That’s the south elevation, so these exterior screens can be raised and lowered, I take it. It is really doing work.

CLIENT private residence

PROJECT TEAM Dan Rockhill, David Sain

ENGINEERS Barney Schwabauer, Norton and Schmidt

GENERAL CONTRACTOR Rockhill and Associates

COST withheld at owner’s request

PHOTOGRAPHER Dan Rockhill


Modular 3

Kansas City, Mo.

Studio 804

KEVIN ALTER: While there are things that are awkward about it, I like the way it sits on its foundation, the sense of being affordable, being made offsite, being a part of the public domain. It’s still elegant and ambitious even as a very modest building.

MARC TSURUMAKI: There is a kind of innovation in terms of process.

JULIE EIZENBERG: It has taken the idea of what you can do in a prefab system as far as it could go-in a simple, elegant, stylish way. That’s great.

CLIENT El Centro, Community Development Corp.

PROJECT TEAM Studio 804, Dan Rockhill, instructor

ENGINEERS Barney Schwabauer, Norton and Schmidt

GENERAL CONTRACTOR Studio 804, Dan Rockhill, instructor

COST $155,000 (sale price)

PHOTOGRAPHER Dan Rockhill


Plaza Apartments

San Francisco

Leddy Maytum Stacy Architects and Paulett Taggart Architects

JULIE EIZENBERG: It’s hard to do multiunit housing in this country.

ROBERT HULL: Well, there’s a good example right here.

Of course, there’s much fewer units.

EIZENBERG: I think that’s a masterful project: It’s classy in its own way. Some people have problem with the tops and the bottom. But that rhythm is really quite beautiful.

HULL: I do like the way they related it to an existing structure. I think there’s a concept in there.

CLIENT Public Initiatives Development Corp.

PROJECT TEAM Richard Stacy, Paulett Taggart, Roberto Sheinberg, Kelton Dissel, Beverly Choe, Michael Hennessey, Chris Cote, Laura Klinger, Chris Weir

ENGINEERS OLMM, M/E/P Engineers, Telamon

GENERAL CONTRACTOR Nibbi Brothers General Contractors

COST withheld at owner’s request

PHOTOGRAPHER Tim Griffith


1+3=1

Venice, Calif.

Leisner Trigas Jeevanjee Architects

MARC TSURUMAKI: As a strategy for addition, it is unexpected: this book-ending of the existing volume with two new structures. They engulf the house but also set up a series of new exterior spaces. It reminds me of some of the architectural holdouts—this history in New York City of massive buildings being built over and around completely unassuming modest structures.

JULIE EIZENBERG: It breaks all the rules of what you are meant to do to be contextual.

ROBERT HULL: It’s being added on to a mundane little building and because of the way it has been book-ended, it has been gracefully …

EIZENBERG: It’s not graceful. The irony of it is that it has been exaggerated.

HULL: Maybe graceful is not the word but lots of times when you see a renovation or especially a remodel, the remnant that is left is embarrassed to be there.

EIZENBERG: But there’s an exaggeration here. It is really a game of small and smaller or big and bigger. I mean there’s an absurdity to it, which saves it from looking embarrassed.

CLIENT private residence

PROJECT TEAM Steffen Leisner, Ali Jeevanjee, Phillip Trigas

ENGINEERS David H. Lau & Assoc.

GENERAL CONTRACTOR CALASIA Construction

CONSULTANTS David D. Lau & Assoc.

COST $199 per square foot; $700,480 total

PHOTOGRAPHER Christopher Culliton


ROAR_one

Vancouver

Lang Wilson Practice in Architecture Culture, Hotson Bakker Boniface Haden Associated Architects

ROCIO ROMERO: It is fun and playful, and it shares spaces. It has the same feel as those Greek communities where the roof of one home is the patio of another. You can’t really distinguish between one apartment and the next, and that’s nice when you are in a multifamily situation.

JULIE EIZENBERG: It would be nice to live there because the space is just easy and following.

MARC TSURUMAKI: It stacks different typologies of units. The spaces between units seem quite well-handled: The whole building becomes porous. It has a slightly informal, tough quality to it, which I appreciate. There are moments when it almost feels slipshod, but that’s also part of the appeal.

CLIENT ROAR_Ventures

PROJECT TEAM Oliver Lang, Cynthia Wilson, Alayne Kaethler, Don Chan, Shaun McIntyre, Marcello Mejia, Roberto Bottazzi, Pia Habekost, Dario Oechsli, Tak Ming Chan, Fei Cai, Bruce Haden, Roland Kupfer, Deryk Whitehead

ENGINEERS Fast + Epp, Stantec, Marceau Evans Johnson, Pioneer

GENERAL CONTRACTOR Haebler Group

CONSULTANTS Eckford and Associates, BTY Group, Geopacific, BKL Engineering

COST $3,622,000, construction

PHOTOGRAPHER Nic Lehoux


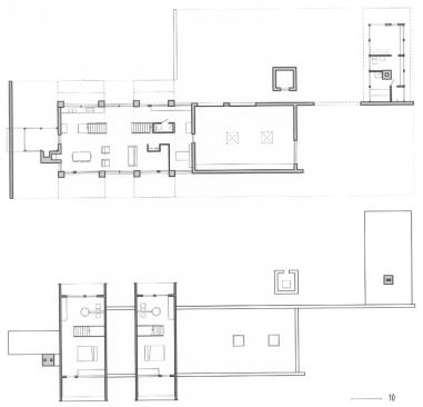
3-in-1 House

Santa Monica, Calif.

Roger Sherman Architecture + Urban Design

MARC TSURUMAKI: What’s interesting here is the interlocking of three very different typologies: single-family house, live-work office space, and rental unit.

JULIE EIZENBERG: You’ve got to love an interior that you’re allowed to make a mess in.

MARC TSURUMAKI: It doesn’t have the overly precious quality of some of the other buildings.

ROCIO ROMERO: I love the fact that they have wallpaper. It fits; it works really well.

TSURUMAKI: There are these odd moments, which is what makes it more interesting.

ROMERO: It is the idea of unfinished with the finished.

ROBERT HULL: The play of forms and functions is really skillful. It takes a lot of work. It is opposite of the overly simplified forms that we’ve been seeing.

EIZENBERG: It’s warm. There’s a heart to it.

CLIENT Jennifer Schab

PROJECT TEAM Greg Kochanowski, Roger Sherman

ENGINEERS Frankie Chiu

GENERAL CONTRACTOR owner/builder

CONSULTANTS The Desk of Lola, Dry Design

COST withheld at owner’s request

PHOTOGRAPHER Tom Bonner


Ceruti House

Cleveland Heights, Ohio

Thom Stauffer Architects

KEVIN ALTER: It combines quite an extraordinary inventiveness in form and space with not so much in the way of construction.

ROBERT HULL: The front elevation sells it to me. The front elevation is almost nicer than the side, but it is still alive, that same idea: light forms and dark and somber projecting forms. And there’s real invention in terms of the interiors: That stair really clicks.

ALTER: It does have a formal inventiveness without a kind of dogmatic position behind it, which I appreciate.

ROCIO ROMERO: It is really clear. You really see that in the front elevation.

CLIENT Dorothy Ceruti

PROJECT TEAM Greg Stroh, Kathryn Strand, Jason Turnidge, Allen Slamic, Jonathan Kurtz, Elizabeth Leidy

ENGINEERS Glen Dreyer

GENERAL CONTRACTOR Tim Yoder Construction

CONSULTANTS Le. Electric, Steel Fabrications, Quick Service Welding, P.K. Wadsworth, Grand River Rigging, Joe Gromofsky, Skip Yoder

COST $500,000

PHOTOGRAPHER Bruce Kiefer


Streeter House

Deephaven, Minn.

Salmela Architect

JULIE EIZENBERG: This gels together, but each of the pieces has a clear place in the volume, as a mold.

KEVIN ALTER: It is a very beautiful ensemble—these two stunning white boxes that hover over the base.

ROBERT HULL: What are those boxes? Does anybody know?

EIZENBERG: They’re decks to bedrooms, I think.

ALTER: With a separate stair up to each room?

HULL: Sort of recognizing that need for privacy.

ROCIO ROMERO: It seems kind of lofty, the fact that there are stairs to one room.

ALTER: If you look at the plan, it is quite handsome: the way you wander up one stair to get to one bedroom and another stair to get to the other. You wonder if there is an acoustic issue, but beyond that, it is a very lovely way to separate these things.

CLIENT Kevin Streeter

PROJECT TEAM David Salmela, Carly Coulson

ENGINEERS Bruno Franck

GENERAL CONTRACTOR Coen + Partners

CONSULTANTS Streeter & Associates

COST $233 per square foot; $700,000 total

PHOTOGRAPHER Peter Bastianelli-Kerze


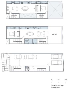
Multifamily Housing

San Francisco

Stanley Saitowitz/Natoma Architects

JULIE EIZENBERG: This is really classy, a system with a simple, small tweak that re-energizes it completely.

ROCIO ROMERO: It’s elegant.

KEVIN ALTER: This is clearly a kind of sage, an experienced hand. It is somebody that is able to …

EIZENBERG: Are you saying it is somebody old? Somebody wise, I see.

ALTER: It is extremely well done and done with great subtlety and care compared to something that is much looser but has great ambitions.

ROBERT HULL: One of the things that’s really nice about this project, it recognizes its neighbors. That rift does something more than if the building were simply right up against the next one.

CLIENT 1028 Natoma Partners

PROJECT TEAM Stanley Saitowitz, Neil Kaye, Alan Tse, John Winder

ENGINEERS Santos, Urrutia

COST withheld at owner’s request

PHOTOGRAPHER Tim Griffith

About the Author

No recommended contents to display.

Upcoming Events

  • Design Smarter: Leveraging GIS, BIM, and Open Data for Better Site Selection & Collaboration

    Live Webinar

    Register for Free
  • Slate Reimagined: The Surprising Advantages of Slate Rainscreen Cladding

    Webinar

    Register Now
  • The State of Residential Design Today: Innovations and Insights from RADA-Winning Architects

    Webinar

    Register for Free
All Events