Hancock Lofts

West Hollywood, Calif./Koning Eizenberg Architecture

4 MIN READ

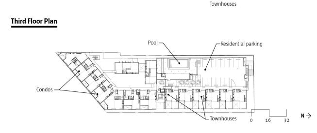
Los Angeles is a great big freeway. Or so the Burt Bacharach lyric goes. But in reality, parking—and not driving—shapes the urban fabric. In West Hollywood, city planners would like to increase urban density, a phrase that means bringing more people to the neighborhood to live, shop, and eat as well as promoting development around public transportation hubs. The planning policy is sustainably minded, but it comes up against L.A.’s bête noire: parking. However, Koning Eizenberg Architecture’s Hancock Lofts merges the two, weaving together 31 market-rate condos, seven affordable-housing rental units, 11,600 square feet of retail, and 217 parking spaces.

In fact, a shortage of public parking along Santa Monica Boulevard spurred the project. The City of West Hollywood purchased the property in the late 1990s, and future development plans came with parking caveats and a neighborhood review. Selected by the city, Koning Eizenberg and developer CIM Group had to work with a doglegged, sloping site and the constraints posed by green goals. “The big fight in communities which are in metropolitan areas is about density. It’s needed to get enough people in a neighborhood to support the businesses, which will get people out and walking more,” says principal Julie Eizenberg.

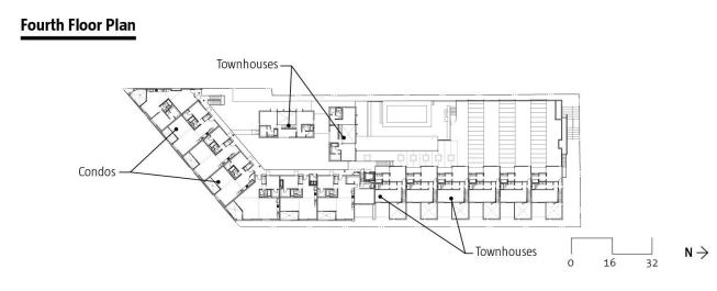
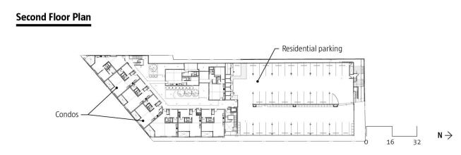
Located at Santa Monica Boulevard and Hancock Avenue, the building presents a strong metal, glass, and Mangaris wood façade to oncoming traffic, before transitioning to a more residential scale as it steps up the side street. The two different façades reflect the program: Along the boulevard, three floors of luxe lofts sit atop ground-level retail. Around the corner, there’s a sneaky opening that leads to lower-level public parking—the 156 city-dictated spaces (the remaining spaces are for residents). “The main thing was to make it not feel like a parking garage,” Eizenberg says. On the other side of the parking garage entrance, seven units of affordable housing march up Hancock Avenue, and above those studio apartments are six two-story townhouses.

A level of resident parking separates the rental units from the market-rate condos. It’s masked by a screen of vertical Mangaris wood slats—which neatly double as balustrades on the townhouses—but it is still there, the project’s leitmotif. The parking ramps spiral up from the public parking to the second story, where glass doors open onto a verdant outdoor podium. Here, the front doors to the loft units wrap the courtyard on two sides.

Inside, Koning Eizenberg applied its expertise in hospitality design—the firm is known for its über-glam-yet-functional hotels, The Standard and The Avalon­—to bring hotel style to the residential arena. With high-end Miele ranges and Corian countertops, the units have the feel of Dutch rationalism meets laid-back beach bum.

Hancock Lofts has the kind of economic mix that you easily get in a city such as New York, where the density demands it, but find less often in sprawling Los Angeles. And this project encourages density not only by its mix of units, but also by hiding away all cars from view: Vines will eventually grow over a trellis of taut cables to shelter the rooftop overflow parking for residents’ cars, secreting away the last visible stretch of on-site parking.

Project Credits
Project Hancock Mixed-Use Housing, West Hollywood, Calif.
Client/Owner CIM Group
Architect Koning Eizenberg Architecture, Santa Monica, Calif.–Hank Koning (principal-in-charge); Julie Eizenberg (principal); Oonagh Ryan (project architect and manager); Paul Miller (job captain); Crystal Chan, Jason Kerwin, Scott Walter (project team)
Mechanical and Electrical Engineer Antieri-Haloossim & Mattingly Consulting Engineers
Structural Engineer Englekirk Partners Consulting Structural Engineers
Civil Engineer Kimley-Horn & Associates
Geotechnical Engineer Group Delta Consultants
Construction Manager Jones & Jones
General Contractor Lee Homes
Landscape Architect Fletcher Studio
Lighting Designer Lighting Design Alliance
Graphic Designer Newsom Design
Waterproofing Consultant Simpson Gumpertz & Heger
Acoustical Consultant VSA Associates
Size 133,476 square feet

Materials and Sources
Appliances Miele (range and hood) mieleusa.com; Jenn-Air (refrigerator) jennair.com
Exterior Wall Systems Mangaris (wood screen); Metal Sales Manufacturing Corp. (corrugated metal siding) metalsales.us.com
Finishes Polygal (polycarbonate panels) polygal.com; Daltile daltile.com
Glass PPG Industries (Solarban 60) ppg.com
Gypsum Georgia-Pacific (DensShield) gp.com
HVAC First Co. (fan coils) firstco.com; Armstrong Air (heat pump) armstrongair.com
Lighting Delray Lighting delraylighting.com
Masonry Orco Block Co. (burnished CMU) orco.com
Millwork Marina Woodcraft (custom millwork) marinawoodcraftinc.com
Paints Dunn-Edwards Paints (low-VOC paint) dunnedwards.com
Parking Control System Amana
Roofing Sarnafil (single-ply PVC roof) sarnafilus.com
Security System Siedle siedleusa.com
Site and Landscape Stonewear (Zena planters) stonewear.com
Windows, Curtainwalls, Doors Torrance Aluminum (residential windows and doors) torrancealuminum.com; Bristolite Skylights bristolite.com, United States Aluminum (commercial storefronts) usalum.com; Timely Industries (residential interiors) timelyframes.com; Arm-r-lite (overhead vertical lift door) arm-r-lite.com

About the Author

Mimi Zeiger

Mimi Zeiger is a Los Angeles-based journalist and critic. The author of New Museums, Tiny Houses and Micro Green: Tiny Houses in Nature, she teaches in Art Center’s Media Design Practices MFA program and is co-president of the Los Angeles Forum for Architecture and Urban Design.   

No recommended contents to display.

Upcoming Events

  • Design Smarter: Leveraging GIS, BIM, and Open Data for Better Site Selection & Collaboration

    Live Webinar

    Register for Free
  • Slate Reimagined: The Surprising Advantages of Slate Rainscreen Cladding

    Webinar

    Register Now
  • The State of Residential Design Today: Innovations and Insights from RADA-Winning Architects

    Webinar

    Register for Free
All Events