Friends School

San Francisco / Pfau Long Architecture

6 MIN READ
The thermal towers are the core of the natural ventilation system for the San Francisco Friends School.

Tim Griffith

The thermal towers are the core of the natural ventilation system for the San Francisco Friends School.

When the San Francisco Friends School opened its doors eight years ago, it did so with a mission to foster academic excellence, as well as to educate children in Quaker values of social responsibility. So it’s only fitting that when the school decided to expand into a larger space, it looked to reuse an existing structure instead of building from the ground up. The school hired Pfau Long Architecture—a local firm with a commitment to sustainability—to remake the historic Levi Strauss & Co. factory into a center for learning.

The old factory was built soon after the 1906 earthquake and fire, and it required massive structural retrofitting. The factory’s wood construction was controversial at the time, and not solid enough by today’s standards. Pin beams were placed around the wood columns to support the building, and the brick column foundations were demolished and replaced with steel. Seismic bracing was added throughout and left exposed. “The old building is treated with complete honesty and the new systems are added with complete frankness, which is kind of a Quaker idea,” says Pfau Long principal Peter Pfau.

Aesthetic changes were made as well—including the removal of Wild West saloon–style trim on the building’s exterior. But some elements were preserved, including the wooden factory floor. Jeans magnate Levi Strauss had his employees lay the floor rather then lay them off during the Great Depression, and the stains and scuffs of years as a working factory remain in place. “The contractors wanted to sand them down,” Pfau says, “but I said no way. This way the history is alive in the building.”

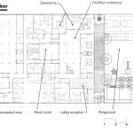
New elements were added to modernize the building while still keeping it sustainable—including four thermal towers, one on each corner of the building (see page 97). Using these towers to control natural ventilation and airflow, the architects were able to avoid installing traditional HVAC systems, except in the bathrooms and a computer server room. The natural ventilation system and a radiant heating system are both controlled by a direct digital-control building management system, which monitors temperature and air quality.

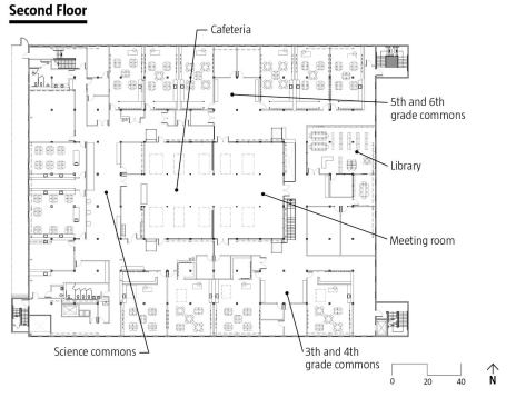
The renovated building is organized around a series of communities, defined by age or subject. The kindergartners, first, and second graders are on the ground level, for example, and all science classes take place in the second-floor science commons. This organization is for expediency’s sake, but also in the hopes that the younger children will be inspired by the enthusiasm and work of the older ones. Also on the second floor is a library and a large meeting room, where the students and faculty—in the Quaker tradition—can sit in silent reflection. The room can be opened to a cafeteria next door to house larger events and all-school assemblies. Finishes throughout the interiors are mostly limited to painted white surfaces, light wood, and glass.

The building isn’t finished yet: Classrooms on the third floor were completed in time for the start of the school year, but construction on an indoor gymnasium and an art commons are still under way. But despite the work in progress, student art and projects adorn the walls, and the children clearly have made the space their own.


Thermal TowersThe thermal towers are the core of the natural ventilation system in the school. Located in all four quadrants of the building, the shafts of the towers extend down into the floor plates and are lined with vents at each floor level. These vents, as well as the those at the top of the towers and above the doors of each classroom, are controlled by the building’s direct digital control (DDC) system, which manages the building’s temperature and energy use.

The top of each tower has glass walls that allow sunlight to enter. An untreated steel plate is “charged” by solar energy and creates enough heat that the air naturally rises and flows out through the topmost tower vents. This air movement creates a draw that pulls air out from the lower floors through the building, creating active natural ventilation. Sensors in various rooms trigger the DDC system to open and close vents and skylights to control airflow and maintain a comfortable temperature.

Normally, a building façade would require installation of trickle vents so that small amounts of air could flow into the space even when windows are closed. In the case of the Friends School, says Pfau Long Architecture principal Peter Pfau, “the old façade leaks so much that we didn’t have to.”

The towers were part of the discussion with the client from the initial meeting and something that Pfau had wanted to implement for quite some time. “Using thermal towers and natural ventilation meant we eliminated duct work,” Pfau says, “which is more respectful of the building’s historic character.”


Project Credits

Project San Francisco Friends School—San Francisco
Client San Francisco Friends School
Architect Pfau Long Architecture­, San Francisco—Peter Pfau (principal-in-charge); Kami Kinkaid (project manager); Natalie Kittner (job captain)
Historic Architect Page & Turnbull
Landscape Miller Co.
Structural Engineer Forell/Elsesser Engineers
M/E/P Engineers Timmons Design Engineers
Geotech & Environmental Treadwell & Rollo
Civil KCA Engineers
Telecom, Security, A/V, Acoustical Shen Milsom Wilke
Phase 2 Acoustical Nigel Breitz Acoustics
Code Rolf Jensen & Associates
Lighting Revolver Design
Theater Auerbach Pollock Friedlander
Waterproofing Simpson, Gumpertz & Heger
Specifications JPM
Signage Public
Contractor Plant Construction
Electrical Decker Electric
Electrical/Security The Engineering Enterprise
Elevator Edgett Williams Consulting Group
Size 80,000 square feet


Toolbox

Thermal Towers
Corbel Reinforcement Plates
Simpson Strong Tie
strongtie.com
Pfau Long Architecture worked with Simpson Strong Tie to customize a piece of hardware that would allow moment connections to be made in the existing wood structure without drilling through the beams. When the structure was built, the beams were not physically connected to the wood columns with any hardware. This customized plate minimized the labor and cost involved in a retrofit, while still retaining the original structure.

Custom Radiators in Cooling Towers
Runtal Radiators
runtalnorthamerica.com
The thermal towers work like chimneys, drawing warm air up and out of the building, and drawing cool air from the perimeter. Normally this is accomplished with a solar-heated steel plate, but on cloudy days, or when the plate doesn’t create enough heat on its own, custom heaters pump out warm air to achieve the same effect.

Fire Smoke Dampers
Ruskin
ruskin.com/fsd
The dampers are installed above each classroom door to keep smoke out in case of fire. But these dampers also are an intrinsic part of the building’s natural ventilation system. The vents are controlled by the building’s direct digital control (DDC) system, and are opened and closed automatically to allow airflow to regulate temperature and indoor air quality.

Radiant Floor Heating Control
Zurn
zurn.com
This control allows the radiant floor heating system sensors to communicate with the building’s DDC building management system. This means that not only can the DDC system control the opening of vents and skylights, and thus control airflow through the building, but it also can control how hot each section of radiant flooring gets and disperse heat through the building in the cooler months.

About the Author

Katie Gerfen

Katie Gerfen is the former editor-in-chief of ARCHITECT, as well as the former editor of Custom Home.

No recommended contents to display.

Upcoming Events

  • Slate Reimagined: The Surprising Advantages of Slate Rainscreen Cladding

    Webinar

    Register Now
  • The State of Residential Design Today: Innovations and Insights from RADA-Winning Architects

    Webinar

    Register for Free
  • Specifying Smarter with Copper-Clad Aluminum (CCA) Metal-Clad Cable

    Webinar

    Register for Free
All Events