Commercial

Federal Center South Building 1202, Designed by ZGF Architects

A new home for the Seattle office of the U.S. Army Corps of Engineers reinvigorates a Superfund site.

7 MIN READ

The site for Seattle’s newly opened Federal Center South Building 1202 has taken a drubbing over the years, positioned as it is on the banks of the Duwamish Waterway—a highly industrialized urban estuary that earned an unenviable place on the Environmental Protection Agency’s Superfund list. Occupied originally by a string of organizations with, at best, spotty environmental records (Ford Motor Co., the U.S. Department of Defense, and Boeing), the existing WWII-era building represented the organizational and environmental miscues of past generations. So, when the U.S. General Services Administration (GSA) set out to replace it with a new federal office for the U.S. Army Corps of Engineers (USACE), it targeted ambitious green standards as a way to create a model for reclaiming this toxic ecology.

With the new structure, the design/build collaboration between ZGF Architects and Sellen Construction sought not only a sustainable approach to construction, but also to the experience of the user. Since moving into the old building more than 30 years ago, the USACE had been confined to a space with 100,000-square-foot floor plates and no operable windows. What this expansive footprint made difficult, 6-foot-high cubicle partitions squelched altogether: Natural air and daylight stood no chance of penetrating this space.

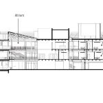
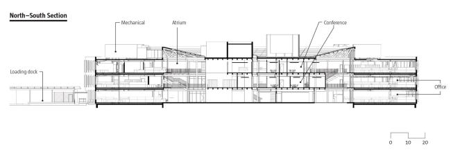
Setting out to reverse this effect, the design team under­took extensive massing studies, and determined that an oxbow-shape plan would allow sunlight to reach the majority of the interior spaces, while limiting the western exposure that would drive up solar heat gains. “We considered a lot of variations, but this particular shape really helped to keep peak loads down,” ZGF partner Allyn Stellmacher, AIA, says.

Individual offices and open-plan workspaces line the perimeter of the new building, giving everyone plenty of exposure to daylight. To boost light levels, offices and conference rooms are located around a skylit, garden-filled atrium.

The atrium “provides an amenity for the employees, but it also does multiple things for the building’s energy systems,” says ZGF’s high-performance green building specialist Chris Flint Chatto, Assoc. AIA, citing its role in venting the natural convection exhaust generated in the perimeter offices. The atrium provides measurable energy-performance benefits, but it also renders the workspace qualitatively more pleasant. Now used as a shared communal space, the atrium has become an important connective tissue between departments that were previously segregated. “I’ve worked here for a few years now, and I’ve been meeting people that I’ve never known or interacted with,” says Robert Paulson, a USACE project manager. “There’s a lot of kinetic energy throughout the building,” he adds. “The elevators don’t get used that often, since people now use the building’s many stairs.”

The foundations themselves also integrate different systems. Because the building sits on sedimentatious soil, its piles reach 150 feet deep. Not content to devote that material and energy to a single purpose, the team coupled the piles with hydronic loops for geothermal systems. But the systems are not all below-grade: Chilled sails provide radiant cooling to the interior and a phase-change material tank keeps loads low. And with 100 percent outside air intake, the working environment is noticeably fresher. As part of the contract with the USACE, the GSA will monitor energy performance each month during the first year. Though the first month’s numbers have not yet been compiled, GSA project manager Rick Thomas has heard unofficial reports from the independent group that monitors the numbers, saying, “They look good.”

Even with impressive quantitative objectives, the team was determined to push beyond the metrics that have come to define sustainable design. “We had an ambitious model for energy efficiency,” Stellmacher says. But with every decision, “we were always focused on the workplace environment.”


Project Credits
Project Federal Center South Building 1202, Seattle
Client U.S. General Services Administration (GSA)
Tenant U.S. Army Corps of Engineers
Architect ZGF Architects, Seattle—Allyn Stellmacher, AIA, Robert Zimmerman, AIA (partners-in-charge); John Chau, AIA, Dan Simpson (design principals); Todd Stine, AIA (project manager); Daniel Brindisi, AIA, Elizabeth Grace, Justin Rabe (project architects); Michael Steinberg (project designer); Kimberly Scott, Lisa Schettler (space planning); John Breshears, AIA, Christopher Flint Chatto, Assoc. AIA (high-performance green building specialists); Randal Bennett, Ellen Campbell, AIA, Marc Chavez, AIA, Melissa Eby, Brian Geller, Assoc. AIA, Gabriel Hanson, Assoc. AIA, Stephanie Hsie, Glen Justice, AIA, Kirsten Justice, Heather Karch, AIA, Bertha Martinez, AIA, Camila Obniski, Frances Orona, Chris Peterson, Timothy Pfeiffer, Franco Rosete, AIA, Jonah Ross, Molly Simmons, AIA, Elizabeth Stroshane, Jessica Swann, Asmund Tweto, Assoc. AIA (design team); David Fedyk, Curtis Ma, Maria Angela Mills, Leslie Morison, Chloe Mitchell, Heidi Schindler, Jill Sandnes, Tomoko Uno, James Wise, Mary Ann Shepherd, Erin Zangari (team)
Interior Designer ZGF Architects
Mechanical Engineer WSP Flack & Kurtz; University Mechanical
Structural and Civil Engineer KPFF Consulting Engineers
Electrical Engineer Lane Coburn & Associates; Sequoyah Electric
Geotechnical Engineer Hart Crowser & Associates
Construction Manager Heery
General Contractor Sellen Construction
Landscape Architect Site Workshop
Lighting Designer WSP Flack & Kurtz
High Performance Design Built Ecology
Signage, Wayfinding, and Graphics Studio SC
Acoustics Greenbusch Group
Elevator Lerch Bates
Life Safety Rolf Jensen & Associates; Tuazon Engineering
Size 209,000 square feet
Cost $65 million (construction); $72 million (project cost) Materials and Sources
Access Flooring Tate Access Floors tate.com
Acoustical Panel Ceilings Armstrong Ceiling Systems armstrong.com; F-Sorb f-sorb.com; Decoustics Limited decoustics.ca
Acoustical Wall Panels Snap-Tex Northwest Inc. naptex.com
Acoustical Wall Panels, Fabrics Carnegie carnegiefabrics.com; Knoll knoll.com
Building Management Systems and Services Siemens siemens.com
Carpet Tiling Shaw Contract Group shawcontractgroup.com; Mannington Commercial mannington.com/commercial/
Concrete: Polished Sellen Construction sellen.com
Cornerguards JL Industries activarcpg.com/jl-industries/
Decorative Formed Metal Forms + Surfaces forms-surfaces.com
Entrance Floor Grilles Nystrom nystrom.com
Exterior Stainless Steel Shingles Millenium Tiles millenniumtiles.com
Fiber Reinforced Plastics and Laminates Panolam Industries Intl. panolam.com
Glass Northwestern Industries (typical exterior) nwiglass.com; DeaMor (atrium skylight and entrance canopy) deamor.com; Walters and Wolf (ribbon windows and curatinwall) waltersandwolf.com
Glass Coatings Guardian Industries www.guardian.com
Horizontal Louver Blinds Levolor levolor.com
HVAC Innovent (air handling units) innoventair.com; HydroTherm (condensing boilers) hydrothermkn.com; Phase Change Material Products (phase change materials) pcmproducts.net; Carrier (heat recovery chiller) carrier.com; Runtal Radiators (wall radiators) runtalnorthamerica.com; Barcol-Air USA (chilled beams) barcolairusa.com; Nailor Industires (fan coil units) nailor.com
Insulation Knauf Insulation knaufinsulation.us
Insulated Cold Formed Steel Headers Envirobeam envirobeam.com
Interior Painting Glidden glidden.com; Parker Paint Color Life parkerpaint.com; Sherwin Williams sherwin-williams.com
Lighting Control Systems Lutron lutron.com
Lighting ALKCO alkco.com; Bega U.S. bega-us.com; DesignPlan designplan.com; Focal Point Lights focalpointlights.com; Gotham Architectural Down Lighting gothamlighting.com; Illuminating Resource illumres.com; Insight insightlighting.com; Integrated Illumination Systems i2systems.com; Lighting Group Northwest alights.com; RW/Harvco erwlighting.com; Santa Cole santacole.com; Sylvania sylvania.com
Masonry and Stone Mutual Materials (ground face CMU) mutualmaterials.com; Quarry S/E (crushed black pebble) lakeveiwstone.com; Stone Sculptures (atrium) stonesculptures.com
Metal USS POSCO Industries (exterior cold-formed) ussposco.com; ASC Steel Deck (metal decking) ascsd.com
Millwork Custom
Overhead Coiling Grilles Cornell cornelliron.com
Paints and Finishes Benjamin Moore & Co. benjaminmoore.com; Comex Group hecomexgroup.com; Formica formica.com; Glidden glidden.com; Miller millerpaint.com; Nevamar nevamar.com; Parker Paint Color Life parkerpaint.com; Rodda roddapaint.com; Sherwin Williams sherwin-williams.com; Wilsonart International wilsonart.com
Plaster Niehaus Construction Services (decorative cast plaster) ncs-stl.com; USG usg.com; National Gypsum nationalgypsum.com
Plastic Laminates Formica formica.com; Nevamar nevamar.com; Wilsonart International wilsonart.com

Plumbing Fixtures American Standard americanstandard-us.com; Bemis Manufacturing Co. (plastic toilet seats) bemisseats.com; Dearborn Brass dearbornbrass.com; Elkay elkayusa.com; Haws hawsco.com; Kohler kohler.com; McGuire Manufacturing Co. mcguiremfg.com; Truebro truebro.com; Zurn Industries zurn.com
Plumbing and Water System American american-water-systems.com; Englehart engelhart.com; FNW fnwvalve.com; Harris; NIBCO nibco.com; ProFlo proflo.com; Romac romac.com; Tyler; Uponor uponor-usa.com; Victaulic victaulic.com; Viega viega.com; Watts watts.com
Resilient Base and Accessories Johnsonite johsonite.com
Roller Window Shades Mecho Shade Systems mechoshade.com
Roofing Johns Manville jm.com; Soprema soprema.us; Xero Flor (green roof system) xeroflora.com
Rubber Tile Flooring Capri Cork capricork.com

Seating By owner
Slatwall Marlite marlite.com
Skylights Sunoptics Skylights sunoptics.com
Solid Surfacing Material Caesarstone caesarstoneus.com; Pental Granite and Marble pentalonline.com
Sound Masking System Logison Acoustic Network www.logison.com
Supergraphics GlassPro glas-pro.com
Tiling American Olean Tile (locker room shower floor) americanolean.com; Arizona Tile (executive washroom) arizonatile.com; Casa Dolce Casa (floor at locker rooms) casadolcecasa.com; Crossville (locker room shower walls) crossville.com; United Tile (backsplashes) unitedtile.com; Viva (toilet room walls and base, locker room walls and base) vivatiles.co.uk
Upholstery Spinneybeck Leather spinneybeck.com
Water Reclamation System AMIAD Filtration Systems amiadusa.com
Woodwork G.R. Plume (structural) grplume.com; Northwest Millwork (architectural) northwestmillwork.com; Sellen (architectural)
Wood Storefronts Washington Hardwoods (interior) washingtonhardwoods.com

About the Author

No recommended contents to display.

Upcoming Events

  • Build-to-Rent Conference

    JW Marriott Phoenix Desert Ridge

    Register Now
  • Reimagining Sense of Place: Materiality, Spatial Form, and Connections to Nature

    Webinar

    Register for Free
  • Homes that Last: How Architects Are Designing a Resilient Future

    Webinar

    Register Now
All Events