Energy.Environment.Experiential Learning

Calgary, Alberta, Canada / Perkins+Will

5 MIN READ

For much of the year, the University of Calgary in Alberta is pretty bleak—the weather cold, the landscape barren, and the campus devoid of much architectural interest. Enter Peter Busby, Intl. Assoc. AIA, and his design for the 264,050-square-foot, $145.5 million (CAD) Energy.Environment.Experiential Learning (EEEL) center. “We wanted the building to stand out,” says University of Calgary director of campus planning Jonathon Greggs of the five-story structure, which boasts a glass-and-aluminum exterior that gleams in the high-plains sunlight. Busby adds,“We made it shiny and added color. I’ve raised four kids and I know what attracts them.”

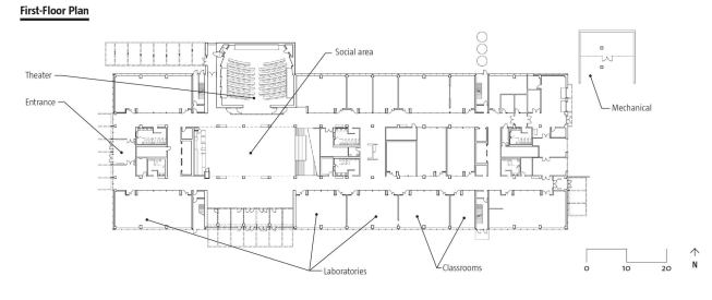
The building brings together six different disciplines in one building, three each from the science and engineering departments. Sited near the north edge of the campus, EEEL serves as a new gateway to the university. And while laboratories for chemistry, biology, bioscience, and civil, mechanical, and chemical engineering make up the core of EEEL’s program, its social spaces are the main event.

University planners created a narrative as part of the program statement, stipulating that an inviting stair should connect the first three levels where undergraduates could engage in peer-to-peer learning. Busby, Perkins+Will, and their joint-venture firm, Dialog, embraced that demand, creating a simple atrium plan for the building, centered around a five-story space lined with labs on its north and south sides. The stair connecting the first and second floors stretches the full width of the atrium, narrowing slightly as it continues to the third floor. Students have embraced the stair as a place to study, converse, see, and be seen. The labs that line both sides of the space enjoy maximum glazing so that natural light enters from the north and south, putting the building’s occupants on display. “It’s opportunistic and serendipitous,” Greggs says.

The university called, rather vaguely, for a “sustainable building” that would not compromise the program. Busby and his team targeted a LEED Platinum goal and “we had to be determined,” he says. Among the building’s environmentally conscious elements: earth tubes that heat and cool the main theater, radiant floor and ceiling systems, and a high-performance envelope with triple glazing. “It’s one of the most efficient lab buildings in North America,” Busby says. “It already meets the 2030 Challenge.” Large touchscreens at the south entrance and on each floor of the building will display the building’s energy metrics. Standing in the building on a 12 C (53 F) February day, Greggs noted, “it’s probably heating itself today. We’re just moving the air around.”

The façades are clad in a system of aluminum panels that are modeled differently on each side, expressing the building’s environmentalism as part of its “shiny” aesthetic. On the north side, the panels angle up to reflect the ambient light and to brighten the surface. On the south side, they angle down and reflect direct sunlight onto the adjacent plaza that’s mostly shaded by nearby buildings. The east and west panels are canted sideways toward the north, cutting down on reflections while capturing ambient light. Horizontal aluminum fins shade windows on the south side of the building, and these same elements are used diagonally across glazing on the east and west sides of the building, introducing another geometry into the façade while effectively shading with the least obstruction to the windows. Bright-green solar shutters on the north and south façades add color to the building while denoting double-height spaces within; motors move those on the south façade to block the sun.

It’s still in its first academic year of occupancy, but EEEL seems to be meeting expectations. “Many students are saying, ‘I want to learn my stuff here,’ ” project manager-designer Rick Piccolo says. But Busby is more interested in the longer-term effects on the community. “You’re training the occupants to behave better,” he says. “It’s a culture shift that happens over time.”


Project Credits

Project Energy.Environment.Experiential Learning, Calgary, Alberta, Canada
Client The University of Calgary
Architect and Interior Designer Perkins+Will, Vancouver, British Columbia, Canada—Peter Busby, Intl. Assoc. AIA (managing director); Rick Piccolo, (project manager-designer); Eric Stedman (associate); Patrick Schilling, Aneta Chmiel (architects); Alex McCumber (intern architect); Soren Schou (industrial designer); Michael Driedger (sustainability building adviser).
Joint-Venture Architect Dialog, Calgary, Alberta, Canada—Ken Johnson (associate); Robert Veniere, Robert Jim, Jim Goodwin, Kate Jones, Peter Atkinson (project team); Madeleine Schmidts (interior designer)
Mechanical Engineer Dialog—Tim McGinn
Structural Engineer Dialog—Norm Webster, Dwain Babiak RJC, Ralph Hildenbrandt, Ryan Wilmer
Electrical Engineer SMP—Kamal Parmar
Civil Engineer Aecom—Bob Vanduivenbooden
Project Manager Duke Projects—Gary Duke, Bill Evans
Construction Manager and General Contractor EllisDon Corp.—Douglas Smith, Wayne Tritthardt
Landscape Architect O2 Planning + Design—Doug Olsen, Michael Magnan
Building Envelope Anton Vlooswyk Building Envelope Engineering
Code Consultant Sereca Fire Consulting—Keith Calder
Acoustic Consultant FFA Consultants in Acoustics and Noise Control
Quantity Surveyor Spiegel Skillen + Associates
Size 264,050 square feet
Cost $145.5 million (CAD, construction cost)

Materials and Sources

Building-Management Systems and Services Siemens siemens.com
Ceilings Armstrong armstrong.com/commceilingsna
Concrete EllisDon Corp. ellisdon.com
Curtainwall Contract Glaziers contractglaziers.com
Flooring Concrete topping
Glass Trulite pdcglass.com
HVAC Trotter & Morton trotterandmorton.com
Lighting-Control Systems Siemens siemens.com
Masonry and Stone Thibeault Masonry
Metal Ital Steel
Plumbing and Water System Trotter & Morton trotterandmorton.com
Roofing Western Weather Protectors
Structural System Cast-in-place concrete, steel frame at roof penthouses and canopies
Windows, Curtainwalls, and Doors Contract Glaziers contractglaziers.com; Schüco schueco.com; Alumicor alumicor.com

About the Author

Edward Keegan

ARCHITECT contributing editor Edward Keegan, AIA, is a Chicago architect who practices, writes, broadcasts, and teaches on architectural subjects.

No recommended contents to display.

Upcoming Events

  • Build-to-Rent Conference

    JW Marriott Phoenix Desert Ridge

    Register Now
  • Reimagining Sense of Place: Materiality, Spatial Form, and Connections to Nature

    Webinar

    Register for Free
  • Homes that Last: How Architects Are Designing a Resilient Future

    Webinar

    Register Now
All Events