David Chipperfield Architects: Anchorage Art Museum

Anchorage, Alaska/David Chipperfield Architects

5 MIN READ

It’s an ocean, a continent, and a far cry from Berlin to Anchorage, Alaska, but London-based David Chipperfield Architects was working on the renovation of Friedrich August Stüler’s Neues Museum and the expansion of the Anchorage Museum at about the same time. If the architects were responding to the grandeur of history in urbanistically dense, culturally loaded Berlin, they responded to a different form of grandeur in Anchorage—the Cugach Mountains—and to another urbanism: a sprawling frontier city with wood-frame houses sprinkled among commercial mid-rises.

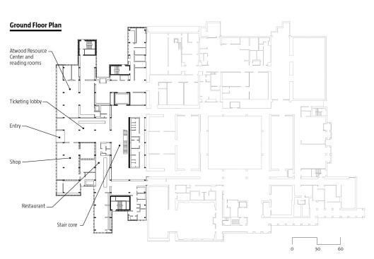
The commission called for a nearly 90,000-square-foot expansion to the existing museum, a composite building with a single-story original volume transformed by a 1984 Mitchell Giurgola Architects addition. This new expansion had to accommodate galleries and the Smithsonian Arctic Studies Center.

Museums are normally a closed building type, subject to all the issues of art conservation and architectural deference to art, and the existing building followed all the rules: introverted and protective of the treasures inside, it was mute to the city itself and blind to the magnificent nature beyond.

Chipperfield Architects had ambitions for a more extroverted museum that would still respect the art while also responding to the larger context. The architects spent square footage strategically, positioning the addition on the downtown side of the existing structure to give the building a completely new entrance façade and an enhanced civic presence. The program was stacked to rise above the surrounding buildings, creating a height that allows upper floors unobstructed mountain views. A circulation atrium was centered at the back of the addition, allowing the staircase to function as a new core, and fusing the addition to the existing building.

The architects decided to glaze the building, making the museum visually interact with the environment: the mountains can be seen from within, and the galleries and public spaces from outside. “We wanted an open and transparent aesthetic to create a relationship to the city and the landscape,” says Billy Prendergast, associate director of the project. He adds, “Anchorage is neither a brick nor a stone city, like London or Berlin, and stone in any event couldn’t compete with the natural stone of the mountains.”

Chipperfield wrapped each element of the program in an appropriately dimensioned glass cube. Each cube is juxtaposed or stacked in a progressive sequence that forms a promenade up and into the building. As in the Hepworth Wakefield art gallery near Leeds, England—composed of a series of clearly defined rooms that drive the external forms of the building—in Anchorage, Chipperfield particularized spaces per program and sequence. The particular is expressed within a universalized language; bars of program are slipped and stacked, achieving a cubic silhouette in a pyramid four stories tall that achieves a striking, crisp monumentality. Other glass structures in the city are merely generic office buildings. “We rendered the volumes with a continuous surface as pure as possible, to have them read very clearly, without being broken up by big windows,” says Prendergast. “There wasn’t high demand for big spaces, so with the gallery experts, we worked for optimum spaces about 22 feet wide.”

The architects left about 25 percent of the curtain wall transparent. They skinned the building in double-glazed, mirror-fritted glass, with a third interior wall of glass enclosing a heated space 1 foot deep on the transparent areas of the façade to prevent condensation in Alaska’s extreme climate. A long wall on the top floor allows a sweeping view of the mountainous panorama, and window walls on the ground and second floors open public spaces to view from the outside. The building, then, is visually porous, but ambiguously so because the mirror-fritting reflects images of the sky at the same as it admits views into the galleries, creating an intriguingly gauzy surface that plays off the crisp cubic forms.

The building is complex despite its apparent simplicity. Though it has a cool beauty, the surface itself feels soft, and though the language is universal, the massing is particular. The aesthetic may be industrial, but the composition is picturesque.

The payoff of the complexity and variety is that by the time the building delivers viewers to the object at hand in serene and focused galleries, their senses and sensibilities have been primed by an extraordinary building that helps them see extraordinary things.

Project Credits
Project Anchorage Museum, Anchorage, Alaska
Client Anchorage Museum at Rasmuson Center
Design Architect David Chipperfield Architects, London–David Chipperfield (principal); Billy Prendergast (associate director); Mattias Kunz (project architect); Franz Borho, Pedro Castelo, Martin Ebert, Isabelle Heide, Victoria Jessen-Pike, Melissa Johnston, Christian Junge, Peter Kleine, Marina Mitchell-Heggs, Andrew Philips, Julian Sattler, Dominik Schwarzer, Rene Wolter
Architect of Record Kumin Associates, Anchorage–Chip Banister, Daphne Brown, Mike Griffith, Marina Komkov, Jon Kumin, Dana Nunn, Erica White, Ross Timm, Petra Wilm
Associate Structural Engineer Magnusson Klemencic Associates–Greg Briggs, Jay Taylor
Structural Engineer of Record BBFM Engineers–Anne Anderson, Dennis Berry, Colin Maynard, Samantha Spindler
Services Engineer Affiliated Engineers NW–Dean Eriksen, Geoffrey McMahon; RSA Engineering–David Oliver, Warren Williams, Channing Lillo, Mack Bergstedt
Quantity Surveyor Davis Langdon & Seah International–Martin Gordon, Jenny Young
Façade Consultant W.J.Higgins & Associates–Wes Higgins, Michael Cleere, John Griesmer
Lighting Consultant George Sexton Associates–Joe Geitner, Brian McIntyre, George Sexton
Exhibition Designer Ralph Appelbaum Associates–Ralph Appelbaum, Anne Bernard, Miranda Smith, Tim Ventimiglia, Jennifer Whitburn
Landscape Architect Charles Anderson Landscape Architects–Charles Anderson, Michelle Arab, Karen Janosky
Associate Landscape Architect Earthscape–Elise Huggins
General Contractor Alcan General–Terry Fike, Steve Jelinek
Client Advisor RISE Alaska–Sarah Barton, Don Simmons; PACE–Larry Mathis
Size 86,819 square feet

About the Author

Joseph Giovannini

A prominent critic, journalist, author, teacher and architectural designer, Giovannini earned his master's degree at Harvard University's Graduate School of Design and runs his own practice, Giovannini Associates.

No recommended contents to display.

Upcoming Events

  • Reimagining Sense of Place: Materiality, Spatial Form, and Connections to Nature

    Webinar

    Register for Free
  • Homes that Last: How Architects Are Designing a Resilient Future

    Webinar

    Register Now
All Events