Currier Museum of Art

Manchester, N.H. / Ann Beha Architects

3 MIN READ

Unlike many cultural institutions with aspirations to greatness, the Currier Museum of Art in Manchester, N.H., didn’t want to sacrifice the charm of being small when it decided to double its gallery space. “That came through in the focus groups,” says architect Pamela Hawkes, of Ann Beha Architects in Boston. “People in Manchester are not far away from the Museum of Fine Arts in Boston, which is a world-class institution,” she explains. “But in many cases they would rather go to the Currier, because it’s a space where they can interact with art in a more intimate way.”

Taking that charge to heart, the design team studied the two-block site exhaustively, looking at many alternatives for the museum’s expansion. The museum and its architects settled on a 33,000-square-foot solution in two parts: one addition nestled against the southern edge of the original 1929 museum by Beaux-Arts architect Edward Tilton, and the other planted on the north side between two pavilions added in 1982 by Hardy Holzman Pfeiffer Associates. The additions greatly extend the museum’s capabilities and transform the site into a tight, urban campus without inflating the institution to a gargantuan scale. The scope of the $14 million project also included renovating 40,000 square feet of existing space.

Visitors arriving by car enter a spacious landscaped plaza punctuated by Mark di Suvero’s signature steel sculpture, Origins. There they are greeted by the sweeping glass façade of the north addition, revealing a new lobby with ticketing, an expanded museum shop, and visitor services. On the south, replacing a modest formal garden and reflecting pool, three new galleries embrace a new winter garden. Taken together, the contemporary additions reinforce the Beaux-Arts symmetry of the original plan while extending an axis of public spaces centered on the original interior court.

Viewed from outside, the additions maintain a low profile, eschewing the hipped roofs and weighty formal references of the original neoclassical building and its postmodern additions. “We chose to take it to the next generation and do something that was clearly contemporary, but picked up on many of the details—whether it was the granite water table or the strong cornice line,” says Hawkes. Quoins on the historic limestone building, for instance, inspired the treatment of the honed terra-cotta rainscreen that encloses the south addition.

The greatest boons to the museum are the new galleries, designed to meet rigid standards for traveling exhibitions that prohibit ultraviolet light. Daylight is welcome, however, in the center gallery on the south façade, where floor-to-ceiling glass opens to views across the rooftops and steeples of Manchester. The new configuration of galleries allows patrons to make a continuous loop as they pass through exhibits, pausing between galleries to catch glimpses of the outdoors.

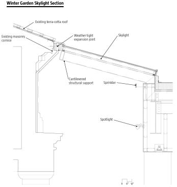
The architects also delivered more than they were asked by introducing the winter garden, a stately-yet-intimate setting for receptions, performances, and everyday use as a café. Sunlight streaming across the original limestone façade and elaborate mosaics creates a certain drama in the space, while suggesting the feeling of an outdoor courtyard. In the center of the room, filtered sunlight passes through acoustically dampened skylights, casting diffused light on the two colorful Sol LeWitt murals commissioned for the building.

Yet for all the experiential richness of the Currier additions, their overall cost was an economical $320 per square foot—a fact not overlooked by a volunteer who complimented Hawkes for making a building that was fitting for New Hampshire. “The Yankee mentality is that you don’t do a lot of glitz,” says Hawkes. “It needs to be solid. It needs to be functional. And every square foot of this building really works.”

About the Author

No recommended contents to display.

Upcoming Events

  • Design Smarter: Leveraging GIS, BIM, and Open Data for Better Site Selection & Collaboration

    Live Webinar

    Register for Free
  • Slate Reimagined: The Surprising Advantages of Slate Rainscreen Cladding

    Webinar

    Register Now
  • The State of Residential Design Today: Innovations and Insights from RADA-Winning Architects

    Webinar

    Register for Free
All Events