Brockman Hall for Physics

Houston/KieranTimberlake

8 MIN READ

Rice University is much admired for its 1910 campus plan by Ralph Adams Cram and the original collection of long, thin, screenlike buildings that he designed in response to Houston’s hot, humid coastal climate. Additions to the 285-acre campus have generally followed Cram’s model of linear, three-story structures that define sequences of elongated, tree-lined outdoor courts. Faced with brick, limestone, colored marble, and sometimes terra-cotta, most of the buildings open out on the leafy landscape with arched, cloistered, ground-level loggias. And while some buildings have been more successful than others in living up to Cram’s nuanced materiality, Rice’s campus has evolved over the last century as a well-organized and splendidly crafted built environment. As a result, says James Timberlake, FAIA, “If you don’t do a building at Rice well, it shows up really, really easily.”

Philadelphia-based KieranTimberlake designed the Brockman Hall for Physics, a 111,000-gross-square-foot research facility that requires sophisticated systems to isolate laboratories from noise, vibration, and fluctuations in temperature and humidity. Rice’s programmatic demands were unprecedented in the firm’s 27-year history, says design partner Timberlake, who describes Brockman Hall as “the most comprehensively and extensively complex building that we’ve done.” Experiments in atomic, molecular, and optical physics are conducted with highly sensitive instruments that measure effects at the nanoscale: Even minute disruptions within the “quiet” lab environment may cause experiments to fail, so systems had to be designed and employed to isolate the laboratory spaces. “This building was all about the science that would live inside,” says Barbara Bryson, associate vice president of Rice’s department of facilities, engineering, and planning. And it had to be designed fast: With a total project cost of $67 million ($11.1 million of which came in the form of federal stimulus funds from the National Institute of Standards and Technology), the project was fast-tracked to be designed, constructed, and occupied in 33 months.

Toolbox: Loggia Columns

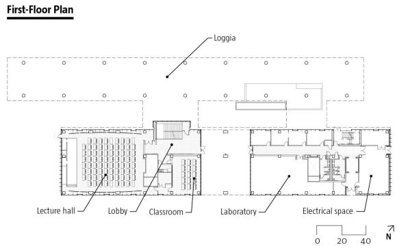
Because the relationship between buildings and green space is critically important at Rice University, the architects designed Brockman Hall to knit seamlessly into the campus’s abundance of mature shade trees. One of the ways that the team at KieranTimberlake achieved this is by raising one of the facility’s two barlike volumes above the ground plane to allow pedestrian pathways to flow underneath. Taking a cue, but only a cue, from the arcades that rhythmically punctuate the university’s original early 20th-century buildings, the architects devised an outdoor loggia defined by tapered, poured-in-place concrete columns.

To ensure optimal execution of the colonnade’s construction, the firm consulted with Fred Langford, an architect who worked in Louis Kahn’s studio on both the Government Center at Dhaka in Bangladesh and the Salk Institute in La Jolla, Calif. Langford returned with detailed working drawings and provided KieranTimberlake and Baker Concrete Construction with instructions on how to build the formwork (one of Langford’s proposed formwork diagrams is shown at left) and place the concrete. After testing multiple mockups, six custom millwork forms were made, with each used three times to cast the 18 columns on site. Standing approximately 17 feet tall, each column has 32 facets and narrows subtly in diameter from 32 inches at the top to 28 inches at grade level.

“Those columns and their form were shaped and tapered to present that sort of light touch to the ground—somewhat mimicking a tree,” design partner James Timberlake, FAIA, says, “so that when you look through the landscape, the columns because of their coloration and their form tend to disappear into the treescape.”

The effect is enhanced by the asymmetrically vaulted ceiling that visually tempers the dominant rectilinear geometry of Brockman Hall. According to Jason Smith, AIA, the firm’s associate in charge of the project, such architectural gestures are “reminiscent of the softening of the best early Rice buildings, which are essentially orthogonal buildings but have that element of grace and slight curvature.”

While KieranTimberlake’s innovative takes on venerated architectural concepts—such as the campus loggia—are fundamentally rooted in Rice’s formal vocabulary, Timberlake says, “I think Brockman truly pushes how one interprets that language and that craft to a 21st-century level, and in that way I think … [it] brings Rice into the 21st century architecturally.”

Sited on a plot that called for tight insertion within the science quadrangle, Brockman Hall is composed of two rectilinear bars that are oriented east to west and aligned parallel to each other. The two are separated by a narrow courtyard that admits natural light to the inner-facing office spaces of the four-story south bar and the three-story north bar. But the latter only has two floors of enclosed space: It is supported by a ground-level loggia lined with 18 tapered concrete columns, which provides a shaded outdoor space for casual gatherings (see Toolbox). A pair of two-story bridges link the bars, but these are programmed with more than just connecting hallways. One has a pair of offices on each floor; the other has a seminar room and collaborative spaces.

Each of Brockman Hall’s uniquely layered façades is tuned not only for solar orientation—the mitigation of heat gain helped the project reach a projected LEED Silver rating—but also to address the context of the facing buildings. They range from a horizontal screen of reddish terra-cotta baguettes on the southern-most façade to fritted glass panels combined with vertical metal fins on the east and west ends; and from glass brick interspersed with ribbons of clay bricks on the first floor of the southern volume to a blue silk-screened curtainwall—with a nonperiodic tiled pattern based on one developed by English physicist Sir Roger Penrose—on the other volume’s northernmost façade, which signifies the enigma of scientific inquiry. Similar iconographics—including classical depictions of the laws of physics and illustrations of theoretical concepts such as Schrödinger’s cat—are cast in the building’s exposed concrete structure.

In contrast to the exterior’s material diversity, the interior spaces—the departmental suite, offices for faculty and student researchers, and labs—are practically austere. Corridors are detailed with mechanical systems running overhead, exposed for easy access yet neatly organized.

A below-grade level houses Brockman’s most sensitive laboratories, sequestered within a hermetically controlled environment and stabilized by a robust structure and a 2-foot-deep slab foundation. Forming the perimeter of this basement are 172 concrete piers, each 42 inches in diameter and reaching a depth of 50 feet. Poured-in-place concrete forms the interior walls.

Here, in a dedicated mechanical room built on a separate slab to minimize vibration in the labs, is where the building plugs into the campus utilities via a tunnel; all except electrical, which feeds from the concrete utility trench into a stainless steel–clad space on the ground floor. Because flooding is common in low-lying Houston, a waterproofing system is sandwiched between concrete layers along the perimeter wall, and a bathtub-like concrete barrier protects the mechanical room. “It’s a Swiss watch down there,” Timberlake says.

According to Timberlake, Brockman Hall represents “one of the more perfect examples” of his firm’s holistic strategy of design. KieranTimberlake “seemed to find inspiration in the overwhelming technical constraints and resonance in the building’s important research mission,” Rice’s Bryson says, noting that other firms might have been daunted by the building’s litany of programmatic demands. “The result is a building that works brilliantly while providing an … elegant home for some of the best physicists in the world.”


Project Credits

Project Brockman Hall for Physics, Houston
Client Rice University
Architect KieranTimberlake, Philadelphia—James Timberlake, FAIA, Stephen Kieran, FAIA (design partners); Jason Smith, AIA (associate in charge); Steven Johns, AIA (project manager); George Ristow, AIA, Casey Boss, AIA (project architects); Chris Macneal, AIA (technical review)
Mechanical/Electrical Engineer CCRD Partners
Structural Engineer Haynes Whaley Associates
Civil Engineer Walter P Moore
Geotechnical Engineer Ulrich Engineers
Construction Manager Gilbane Building Co.
Landscape Architect The Office of James Burnett
Lighting Designer Arup
External Project Manager Linbeck
Lab Consultant Innovate Lab Systems Design
Acoustical Consultant JE Acoustics
Construction Administration Consulting Architect Jackson & Ryan Architects
Specifications Consultant Wilson Consulting
Commissioning/LEED Consultant WorkingBuildings
Fire Protection Consultant Rolf Jensen & Associates
Door Hardware Consultant Assa Abloy
Concrete Design Consultant Frederick Langford, Architect
Size 111,000 square feet
Cost $67 million (total cost)

Materials and Sources

Acoustical System Decoustics decoustics.com; Nelson Industrial nelsonindust.com; Simplex Ceilings simplexceilings.com; Tectum tectum.com
Building Management Systems and Services Siemens siemens.com
Carpet Shaw Contract Group shawcontractgoup.com
Ceilings Armstrong armstrong.com
Concrete Baker Concrete Construction bakerconcrete.com
Electrical Systems Kohler Power kohlerpower.com; Square D
Exterior Wall Systems Admiral Glass Co. (unitized curtainwall) admiralglass.net; Alucobond (composite metal panels) alucobondusa.com; NBK Ceramic (terra-cotta) nbk.de; Oldcastle BuildingEnvelope (storefront) oldcastlebe.com
Fabrics and Finishes KnollTextiles knolltextiles.com
Flooring Daltile (ceramic tile) daltile.com; Mullican Flooring (wood) mullicanflooring.com; Sadlerstone (concrete tile) sadlerstone.com
Glass Viracon viracon.com
Gypsum ClarkDietrich Building Systems dietrichindustries.com; National Gypsum Co. (Gold Bond) nationalgypsum.com; USG Corp. usg.com
HVAC Systems Greenheck Fan Corp. greenheck.com; Haakon Industries haakon.com; Krueger krueger-hvac.com; McQuay International www.mcquay.com
Insulation Dow Chemical Co. building.dow.com; Icynene icynene.com; Thermafiber thermafiber.com
Lighting-Control Systems Crestron Electronics crestron.com
Masonry and Stone Pittsburgh Corning Corp. (glass bricks) pittsburghcorning.com; St. Joe Brick Works (clay bricks) stjoebrickworks.com; W.W. Bartlett
Metal Broome Welding & Machine Co. broomewelding.com
Millwork Hallmark Cabinetry & Millwork; Lab Enterprises (laboratory casework) labenterprises.net
Paints and Finishes Pratt & Lambert prattandlambert.com
Plumbing and Water System Aurora aurorapump.com; Canariis Corp. canariis.com; Geo-Systems USA geosystemsusa.com
Roofing American Hydrotech (fluid-applied roofing) hydrotechusa.com; Johns Manville (membrane roofing) jm.com
Site and Landscape Invisible Structures (Grasspave) invisiblestructures.com; Sadlerstone sadlerstone.com
Waterproofing CETCO cetco.com
Wayfinding Hardman Signs hardmansigns.com
Window Shades MechoShade Systems mechoshade.com

About the Author

No recommended contents to display.

Upcoming Events

  • Build-to-Rent Conference

    JW Marriott Phoenix Desert Ridge

    Register Now
  • Reimagining Sense of Place: Materiality, Spatial Form, and Connections to Nature

    Webinar

    Register for Free
  • Homes that Last: How Architects Are Designing a Resilient Future

    Webinar

    Register Now
All Events