Box Office

Rand Elliott rethinks the office box in Oklahoma City

2 MIN READ
Rand Elliott - Age: 56 - Firm: Elliott + Associates Architects, Oklahoma City - Employees: 17 people - Education: Oklahoma State University

Rand Elliott - Age: 56 - Firm: Elliott + Associates Architects, Oklahoma City - Employees: 17 people - Education: Oklahoma State University

The 3-by-5 card contained fewer than 50 words to guide Rand Elliott, Oklahoma City architect and owner of Elliott + Associates Architects, in designing 1001 West Wilshire, a four-story, 48,000-square-foot office building in the Sooner State’s capital.

Client Christian Keesee had penned a mixture of evocative nouns like “stone, wood, light, texture” and more directive remarks like “protection from the sun,” “favor light from the north,” and “simple lines and materials.” While Keesee respected classical architecture, he thought modern seemed more appropriate in a relatively young state that just next year will be celebrating its centennial.

Modern architecture “is new, vibrant, and strong, like our state,” Keesee said later at the building’s groundbreaking in February 2002. “My hope is that our efforts beginning today will produce a modern masterpiece.”

Elliott was neither fazed by his client’s lofty goal nor surprised.

“Christian is an art collector and a philanthropist as well as the chairman of an oil company and a banker,” Elliott says. “He is cognizant of what goes on in the architecture world and of what buildings should give back. He provided his criteria, and that’s where the process began.”

What started with a few written words ended with a building Keesee likens to an Armani suit in a world of off-the-rack, J.C. Penney–variety office buildings.

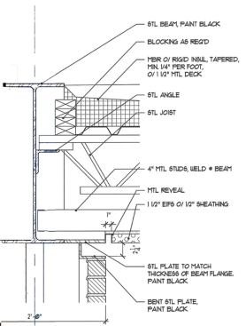
Completed in 2003, the building houses the headquarters—on the second and third floors—of Kirkpatrick Oil, a family-owned company that Keesee’s grandfather, Oklahoma businessman and civic leader John E. Kirkpatrick, founded in 1950. The fourth floor provides offices for Kirkpatrick Bank. The first floor contains limited rental space.

The Project
1001 West Wilshire Blvd.
Oklahoma City
Client: Kirkpatrick Oil Co.
Architect: Elliott + Associates Architects
Project Team: Rand Elliott, Jay Yowell
Engineers: Grossman & Keith Engineering Co. (civil), Eudaley & Associates (structural), United Mechanical (MEP), Lemke Land Surveying (surveyors); Terracon (soils)
General Contractor: Smith & Pickel Construction
Consultants: Brian Dougherty, Landscape Architect
Cost: Withheld at owner’s request
Photographer: Robert Shimer, Hedrich Blessing

About the Author

No recommended contents to display.

Upcoming Events

  • Design Smarter: Leveraging GIS, BIM, and Open Data for Better Site Selection & Collaboration

    Live Webinar

    Register for Free
  • Slate Reimagined: The Surprising Advantages of Slate Rainscreen Cladding

    Webinar

    Register Now
  • The State of Residential Design Today: Innovations and Insights from RADA-Winning Architects

    Webinar

    Register for Free
All Events