Bertram and Judith Kohl Building

Oberlin, Ohio/Westlake Reed Leskosky

7 MIN READ

In leafy Oberlin, ohio, the central Tappan Square is dominated by the town’s namesake college—an example of a town-gown relationship that can’t be ignored. The well-regarded liberal arts school provides lots of architectural interest, with notable buildings by architects ranging in era from Cass Gilbert to William McDonough. “Oberlin is branded by innovation,” says Paul E. Westlake Jr., principal-in-charge of Cleveland-based architecture firm Westlake Reed Leskosky. It was the first American college to regularly admit female and black students, and today it’s positioning itself as number one in green building, having established LEED Silver as the minimum standard for new buildings on campus. “They make sustainable design a challenge to all their designers,” Westlake says of college leaders.

The world-renowned Oberlin Conservatory of Music occupies a corner off Tappan Square. Minoru Yamasaki—best known for the World Trade Center’s towers—designed the original 1963 buildings; his low-scale complex is a series of indoor and outdoor spaces defined by the architect’s signature narrow, pointed arches, rendered in white precast concrete. Westlake Reed Leskosky has added its new Bertram and Judith Kohl Building to the Yamasaki original. The bar-shaped structure attaches to the old complex via a vertical circulation tower and third-story bridge. The building is situated between a parking lot to the east and the Yamasaki complex to the west.

The architects planned the building to create a north-south axis. Accessed from Tappan Square to the north, students proceed through a plaza between the old and new structures, and an exterior stair moves up the Kohl building façade and terminates the axis in another green space: a third-story roof garden. “We wanted to redirect the energy,” project designer Jonathan C. Kurtz says. “It’s a dense, urban landscape—where the rest of the campus is more bucolic.” David H. Stull, dean of the conservatory, notes that the addition’s location behind the Yamasaki complex “isn’t where you’d [choose to] put it—it doesn’t have any street frontage.”

Toolbox

One way to build green is to build lightly on the land—but that strategy runs counter to some of the critical, and hidden, acoustical needs of the Kohl Building. “It’s as dense with materials as you can get,” project designer Jonathan C. Kurtz says. As many as eight (that’s right—eight) layers of gypsum board are used in a single wall assembly, and one composite concrete masonry unit and drywall partition type tops out at 211/2 inches wide.

The wall assemblies vary from floor to floor with the acoustic needs of the space. Separating the third floor offices (which double as teaching spaces) are two sets of metal studs floated on isolation pads, sheathed in different quantities of gypsum board on either side. This is to give more mass to one side of the wall than the other—if the same number of sheets were used, sound waves from one office would cause both sides of the wall assembly to vibrate in tandem. More mass on one side stops the sound waves, providing more acoustic isolation.

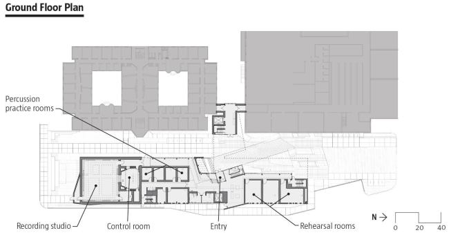
In classrooms, the gypsum boards are separated by masonry walls, adding extra insulation. But the most complex wall system is found in the recording studio. Used for both student and professional recordings, the room must be completely cut off from any sound outside. Nine-inch-thick diffractal panels are placed in a 21-inch-deep acoustical assembly. This is then placed in front of a 12-inch-thick masonry wall, followed by a layer of insulation, a 2-inch air space, and another insulated masonry wall. The total thickness of this system is 4 feet, 1 inch.

The suspended ceilings within the acoustically sensitive areas such as the practice rooms on the first and second floor are equally sophisticated—and complicated. The building’s geothermal radiant heat and cooling system is embedded in the ceiling construction. Mason Industries’ acoustical hangers support BEKA radiant tubing, which is adhered to cement board panels. These panels are then embedded in Knauf Drywall MP75 Projection Plaster. It’s one of the first times that the BEKA system has been installed in the United States, according to principal-in-charge Paul E. Westlake Jr.

Stull isn’t a big fan of the Yamasaki buildings—although the architect “brought natural light into all the spaces through courtyards and windows”—a strategy Stull and the Westlake Reed Leskosky architects tried to reprise. “We wanted to bring nature into the building,” Kurtz says. The team was able to accomplish this through several primary moves. First, the building’s narrow footprint allows ample daylighting in all spaces. Second, a central “terrarium” on the third floor brings light and colorful winter-blooming flowers into the public spaces and adjacent faculty lounge. Third, the south roof garden is always open to the public.

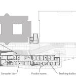
The 37,000-square-foot addition is three stories tall, plus a basement, and houses the jazz studies department. Other facilities include a recording studio, rehearsal and performance spaces, teaching studios, practice rooms, and archives. The building’s program is stacked in a way that makes sensible use of the material mass necessary to acoustically isolate each of these spaces. The ground floor has percussion practice rooms and rehearsal studios that require the densest construction. Standard practice rooms, needing slightly less dense construction, are on the second floor, and offices—the closest the Kohl Building gets to conventional construction—are on the third floor.

While spaces focused on individual students are private and isolated, the public spaces encourage interaction. “We wanted to create unplanned social learning environments,” Kurtz says. Sometimes this is as simple as a bench in the corner of a corridor; other times it’s more elaborate, like the stairs that rise in unison from the ground floor to the third level, both inside and outside.

“The influence of jazz on the building is interesting,” Stull says. “The windows on the east façade are syncopated and the color of the anodized aluminum changes. It’s improvisational.” Paul Westlake has a more straightforward way to describe the intended excitement. “We wanted to design the place where the lights go out last,” he says. In the Kohl Building, they have.


Project The Bertram and Judith Kohl Building, Oberlin, Ohio

Client Oberlin College

Architect, Interior Designer and M/E/P and Structural Engineer Westlake Reed Leskosky, Cleveland—Paul E. Westlake Jr. (managing principal, principal-in-charge); Jonathan C. Kurtz (associate, project designer); Rhonda Hansal (associate, project director); Lyle Satterlee (construction administration); Raymond Kent (associate, theatrical consultant); Matthew J. Murphy (lead mechanical engineer); Megan Blank (mechanical project engineer); Stephanie Banfield (associate, lead structural engineer); Robert J. Smolinski (associate principal, lead electrical engineer); Carmen Mazzant (electrical project engineer)

Civil Engineer KS Associates, Elyria, Ohio—Jeff Keefe

General Contractor Krill Construction, Cleveland—Doug Fishback

Landscape Architect GroundView, Somerville, Mass.—Wilson Martin

Acoustic Consultant Kirkegaard Acoustic Design, Chicago—Dana Kirkegaard

Cost Estimator Project and Construction Services, Cleveland

Size 37,000 square feet

Construction Cost $15.5 million

Project Cost $24 million

Materials and Sources

Acoustical System RPG Diffuser System (panels and diffractals) rpginc.com; Mason Industries (hardware)mason-ind.com

Carpet Lees Carpetsl eescarpets.com

Ceilings Knauf Drywall (MP75 Projection Plaster) www.knaufdrywall.co.uk; BEKAbeka-klima.de/en

Coatings and Sealants L&M Construction Chemicals lmcc.com; FinalFinishfinalfinish.biz

Concrete Akron Concrete Corp. akronconcrete.com; Pompili Precast Concrete pompiliprecastconcrete.com; Mack Industriesmackconcrete.com

Exterior Wall Systems Riverside Group (fabricator) riversidegroup.net; Reynobondreynobond.com

Fabrics Knoll Textiles www.knolltextiles.com; Maharam maharam.com; Verosolverosol.com

Glass Viraconviracon.com

Gypsum National Gypsum nationalgypsum.com; Acme Arsena Co. (contractor)acmearsena.com

HVAC Reliance Mechanical reliancemechanical.com; Mammoth (ground-source heat pumps) mammoth-inc.com;
Munters Corp. (energy recovery ventilator)munters.us

Insulation Fibrex Inc. fibrexinsulations.com; Owens Corning owenscorning.com; Acme Arsena (contractor)

Lighting Control Systems Lutron Electronics Co. (EcoSystem, SoftSwitch 128) lutron.com

Lighting Strand Lighting strandlighting.com; Bega bega-us.com; Color Kinetics colorkinetics.com; The Lighting Quotient ( Elliptipar) thelightingquotient.com; GVA Lighting gvalighting.com; Ledalite ledalite.com; Litelab litelab.com; Metalux by Cooper Lighting metalux-lighting.com; Neoray by Cooper Lighting neoray-lighting.com; Rambusch rambuschlighting.com; Selux selux.com

Masonry and Stone Grand Blanc CMU grandblanccement.com; VIP (contractor) viprestoration.com

Paints and Coatings PPG Industries ppg.com

Renewables Middleton Geothermal Servicesmiddletongeothermal.com

Seating Wenger Corp. wengercor.com; Allermuir allermuir.com; Steelcase steelcase.com; Davis Furnituredavis-furniture.com

Site and Landscape Products Hanover Architectural Products hanoverpavers.com; American Hydrotechhydrotechusa.com

Structural System D&J Structural Contract ; Thomas Steetsifab.com

Walls Dietrich Metal Framing dietrichmetalframing.com; Acme Arsena (contractor)

Windows, Curtain Walls, and Doors Tubelitetubelite.com


About the Author

Edward Keegan

ARCHITECT contributing editor Edward Keegan, AIA, is a Chicago architect who practices, writes, broadcasts, and teaches on architectural subjects.

No recommended contents to display.

Upcoming Events

  • Design Smarter: Leveraging GIS, BIM, and Open Data for Better Site Selection & Collaboration

    Live Webinar

    Register for Free
  • Slate Reimagined: The Surprising Advantages of Slate Rainscreen Cladding

    Webinar

    Register Now
  • The State of Residential Design Today: Innovations and Insights from RADA-Winning Architects

    Webinar

    Register for Free
All Events