As Kahn Intended

After a major renovation, the Yale University Art Gallery finally looks and functions the way its architect, Louis Kahn, wanted.

9 MIN READ

Yale University Art Gallery/Elizabeth Felicella

Dull, gray concrete: This was the misperception that Lloyd DesBrisay fought to dispel as he and colleagues from Polshek Partnership Architects restored Yale University Art Gallery’s Louis Kahn building, widely acknowledged as that architect’s first masterpiece. With its famous triangle-ribbed ceilings and monumental cylinder of a stairwell, the 1953 building, though austere on the outside, is far from dull. But neither is the concrete a simple gray, DesBrisay points out.

“It’s not gray, if you look at it,” he tells me. “It’s got a bit of a pink tone to it.” I step closer, and it’s true—flecks of coral in the concrete blocks give the wall a subtle but definite warmth.

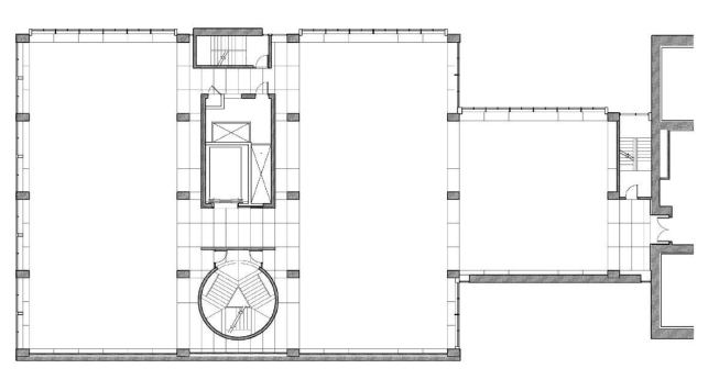
We’re crossing the first floor of the Kahn building, which reopened on Dec. 10 following the three-year, $44 million renovation. My guides are Jock Reynolds, the director of the gallery, and DesBrisay, project architect during the construction phase. Around us, sculptures by Rachel Whiteread and Joseph Beuys rise like solitary islands from the expanse of oak flooring.

This space used to get so cluttered when curators put up temporary exhibitions, “people complained it looked closed,” DesBrisay says. Now the stark geometry of Kahn’s scheme and its interplay of surface textures, light, and shadow are apparent the minute you walk through the unassuming entrance tucked into the gallery’s blank south façade.

The lobby

At one end of the lobby, geometric canvases by Josef Albers and Sol LeWitt offer a visual counterpoint to Kahn’s ceiling. At the other end, contemporary sofas, retro Bertoia chairs, and cubic tables gather beside a black cabinet—a student “media lounge” designed by New York architect Joel Sanders.

Sanders also designed the reception desk, composed of the same black cabinetry, directly in front of the main entrance. The furnishings are unobtrusive, freestanding, and clearly not of Kahn’s vintage, a decision that was deliberate on Sanders’ part.

“What Kahn wanted was a flexible, loftlike space that could be changed,” Sanders explains to me later. “Our project is an updated version of what he was thinking about. Everything in the space breaks down into modular pieces.” Apart from the U-shaped reception desk, which is permanent, everything else can be rolled away for events.

Here, with students lounging and chatting on the sofas, is a good place to get a feel for the surprisingly human scale of Kahn’s design, once miscategorized as Brutalist. Reynolds points out the delicate proportions of the materials Kahn used: floorboards about the length of your foot, 4-inch-by-6-inch concrete blocks that you could hold in your hand. And looking up, even, the rough texture of the concrete humanizes the relentless ceiling grid.

Concrete, glass, and brick

How these materials speak to each other was lost for the four decades prior to Polshek’s renovation. In 1957, Andrew Carnduff Ritchie, a former MoMA curator, was appointed director of the gallery. Ritchie sought what he called a “more neutral effect” than Kahn’s interior offered, and with the help of Paul Rudolph (then chair of Yale’s school of architecture), covered the concrete-block walls in MoMA-reminiscent white Sheetrock. The ceiling remained unaltered—but “when this was white walls, you felt the ceiling like a ton of bricks,” Reynolds says.

Polshek’s team, led by partner Duncan Hazard, stripped away the wall coverings (“which Kahn hated,” Reynolds adds) to expose the concrete blocks. Although staff members never screw or nail anything into them anymore, some minor pockmarks in the blocks, old scars, have been left unpatched. “We didn’t want to pretend [the building] didn’t have a life,” Reynolds explains.

Kahn’s gallery design, commissioned when he was a visiting critic at Yale’s architecture school, was radical, experimental. He housed the electrical and ductworks—keeping them visible—in the hollow tetrahedrons of the ceiling. The gallery was one of the first American buildings with glass curtain walls. But as was often the case in the modernist era, Kahn’s vision outran the technology that was available to him.

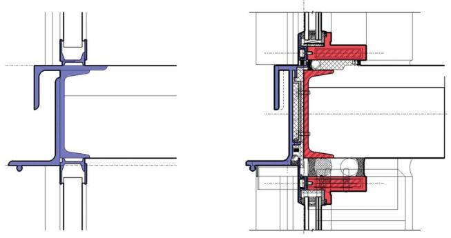
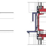
For instance, the glass curtain walls, on the west and north sides of the building, caused problems from the beginning. The original walls were made with straight-bar steel, which expanded as outside temperatures fluctuated, causing the adjacent concrete slabs to crack. As early as the building’s first winter, condensation formed on the inside of the panes and the steel began to rust.

Polshek replaced the benighted steel with an aluminum system that includes a thermal break. The new aluminum extrusions were custom-made to match the appearance of Kahn’s steel, with the rolled edges characteristic of that material. “The exterior is exactly the same,” says DesBrisay as we approach the west wall in the first-floor gallery, which overlooks a paved courtyard. “The interior’s where we had to vary it a bit, for structural reasons.”

The new windows are double-paned insulated glass units—like the originals—but have modern low-emissivity coatings, as well as a UV-blocking interlayer to protect the artwork from sunlight. So that the problems with condensation wouldn’t recur, Polshek and its consultants doubled radiator capacity along the walls and replaced the light-controlling fabric scrims original to the building. The new scrims trap heat from the radiators next to the window wall to help control condensation. Gaps at the top and bottom of the scrims encourage airflow. According to DesBrisay, mechanical engineers ran 11 rounds of computational fluid dynamics (CFD) studies to evaluate the design, and the CFD data was then used to model the wall with Therm 5 software.

About the Author

Amanda Kolson Hurley

Amanda Kolson Hurley is a senior editor at CityLab. A former editor at ARCHITECT, she has contributed to Foreign Policy, The Washington Post, and many other publications. 

No recommended contents to display.

Upcoming Events

  • Design Smarter: Leveraging GIS, BIM, and Open Data for Better Site Selection & Collaboration

    Live Webinar

    Register for Free
  • Slate Reimagined: The Surprising Advantages of Slate Rainscreen Cladding

    Webinar

    Register Now
  • The State of Residential Design Today: Innovations and Insights from RADA-Winning Architects

    Webinar

    Register for Free
All Events