395 Page Mill Road

Palo Alto, Calif. / Studio O+A

4 MIN READ

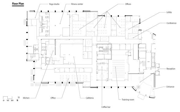
AOL’s new west coast headquarters in Palo Alto, Calif., isn’t a sprawling campus, but rather a renovation of one of many blink-and-you’ll-miss-them tract office buildings that line the byways of Silicon Valley. But walk into the lobby of the reimagined interior designed by San Francisco–based Studio O+A, and you’ll see the well-appointed trappings of a high-tech company: A bank of flat-panel screens mounted to one wall that displays logos and content from the company’s Web venues. A cluster of candy-colored bicycles fetchingly suspended from a column act as sculpture—that is, when they haven’t been checked out by employees to ride around the building or downtown for lunch. What you will not find in the ground-floor offices beyond the reception-desk-cum-ceiling-plane (cleverly curved to recall a skateboard half pipe, which were all the rage when AOL started in the 1980s) are AOL employees. That’s because the tech giant devoted the first floor of its headquarters to incubator office space for fledgling companies, one of which, it hopes, could be the next billion-dollar IPO.

Apple famously started in a garage, and Facebook began in a dorm room, but these days, tech companies are taking a more organized approach to fostering new talent. Venture capitalists (VCs) have made incubators standard fare in Silicon Valley, and spaces for them are designed to encourage collaboration among microcompanies.

VCs “want to capitalize on the prospect of creating cross-fertilization and getting access to other ideas,” says Studio O+A principal Verda Alexander, and such spaces are often small venues within larger VC offices. At AOL’s 395 Page Mill Road, the model is flipped: The 80,000-square-foot ground floor is divided into suites ranging from 500 to 25,000 square feet, along with incubator space, co-working environments, and offices for tenants and VCs. “Incubators by nature need to refresh quickly,” says Studio O+A principal Primo Orpilla, “and they [the companies] will be growing. We design the space to a certain point where they can scale in a suite and then they’re probably going to be looking for their own office space.”

Here, some companies occupy a single office, others have a more-traditional open-office suite of bench seats surrounded by whiteboard walls. The workspaces themselves are designed for flexibility and ease of turnover—“You give them enough to do what they need to do,” Orpilla says—and take their cues from AOL’s own office space, which Studio O+A also designed, upstairs. The designers took great care to connect the suites with an infrastructure of common spaces that encourage collaboration. Hallways are wide, and outfitted with chairs and breakout spaces wherever possible.

Other communal areas are more formalized, but even the requisite coffee bar—designed with a food-truck-inspired pull-up door over the counter—is staffed by entrepreneurs from nearby Stanford University. A shared lecture hall, lined in colorful acoustic panels, can be set up for lunchtime lectures, business updates, or more-social endeavors. And it absolutely works as a multipurpose room: “Sometimes they play soccer in there,” Orpilla says.

Overall, the transformation of an existing building and the creative use of no-nonsense materials may signal a shift for similar high-tech offices. “Pulling back the layers of the space was very much saying: This is the new Valley,” Orpilla says. “This is made for work, and socializing, and the 24/7 economy. This is not about over-building.”


Project Credits

Project 395 Page Mill Road, Palo Alto, Calif.
Client AOL
Interior Designer Studio O+A, San Francisco—Primo Orpilla, Verda Alexander (principals); Denise Cherry (director of design); Perry Stephney (director of projects); David Hunter (senior designer); Justin Ackerman, Caren Currie-McDonald, Sarunya Wongjodsri (designer); Jeorge Jordan (graphic designer); Albert Claxton (project designer)
Mechanical Engineer All Temperature Service
Structural Engineer KPFF Consulting Engineers
Electrical Engineer Howell Electric
Construction Manager Novo Construction—Eric Weinhagen
General Contractor Novo Construction
Landscape Architect Eddie Chau Design
Size 80,000 square feet
Cost Withheld

Materials and Sources

Ceilings Conwed Designscape, an Owens Corning Co. (acoustic ceiling, clouds) conweddesignscape.com; Ecophon Group (acoustic ceiling, perimeter) ecophon.com
Carpet
Flor flor.com
Cork
Expanko Cork expanko.com
Paint
Sherwin Williams (accents) sherwin-williams.com; Glidden Paints (exposed ceiling) glidden.com
Finishes
Abet Laminati (plastic laminate) abetlaminati.com; Formica (plastic laminate) formica.com; Caesarstone US (Quartz surface) caesarstoneus.com
Tile
Daltile daltile.com; Heath Ceramics heathceramics.com; Apavisa www.apavisa.com
Flooring
Allstate Rubber (rubber base) allstaterubber.com; Bolon (rubber flooring) www.bolon.com

About the Author

Katie Gerfen

Katie Gerfen is the former editor-in-chief of ARCHITECT, as well as the former editor of Custom Home.

No recommended contents to display.

Upcoming Events

  • Build-to-Rent Conference

    JW Marriott Phoenix Desert Ridge

    Register Now
  • Reimagining Sense of Place: Materiality, Spatial Form, and Connections to Nature

    Webinar

    Register for Free
  • Homes that Last: How Architects Are Designing a Resilient Future

    Webinar

    Register Now
All Events