A Small Vessel Home in Japan

1 MIN READ
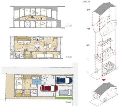
image via nano Architects

image via nano Architects

This ship-like Japanese home would be an ideal dwelling for those who’ve ever dreamed of maritime living.

The “Urban Vessel”, designed by Japanese architecture firm nano Architects, is located besides the Onga River in Fukuoka Nogata, Fukuoka Prefecture in Japan. The wooden 2-story building has approximately 1,110 square-feet of living space, and is home to a married couple with two children.

Unlike traditional home designs, the kitchen and living area are located on the second floor of Urban Vessel. The first floor consists of the master bedroom, laundry area, and a semi open three-car garage.

The novel-looking Urban Vessel also brings life back to Nogata city, a deserted city where many old houses have been abandoned without renovation. Architects of the Urban Vessel got their idea from those abandoned houses, which they described as “moored vessels” floating in the deserted city and dreaming of a new resident to come.

Learn more about this project on nano Architect’s web page.

About the Author

Dian Zhang

Dian works as a data journalist with Hanley Wood's data studio team. Her job includes integrating Metrostudy's research with Hanley Wood's media contents. She graduated from Boston University with a master degree in Business & Economics Journalism. 

No recommended contents to display.

Upcoming Events

  • Design Smarter: Leveraging GIS, BIM, and Open Data for Better Site Selection & Collaboration

    Live Webinar

    Register for Free
  • Slate Reimagined: The Surprising Advantages of Slate Rainscreen Cladding

    Webinar

    Register Now
  • The State of Residential Design Today: Innovations and Insights from RADA-Winning Architects

    Webinar

    Register for Free
All Events