2012 Annual Design Review, Live Category, Award: Daeyang Gallery and House

Steven Holl Architects

1 MIN READ

Category: Live
Award

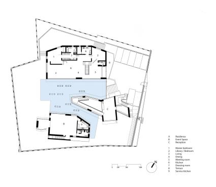
Steven Holl’s Daeyang Gallery and House on a residential hillside outside of Seoul, South Korea, draws inspiration from composer Istvan Anhalt’s 1967 sketch of three fragments of a musical score entitled “Symphony of Modules.” In its built form, Holl’s 10,703-square-foot gallery and house comprises three distinct pavilions—one each for the actual residence, an entry hall, and an event space—all on top of a gallery volume that unifies the structure. The pavilion volumes are tied together by a thin film of water in the form of a shallow reflecting pool on the gallery roof; rectangular skylights under the water allow light to penetrate down to the gallery’s interiors. The datum of the reflecting pool is also evident from the entry gate, with grade-level bamboo-formed concrete walls, which contrast with the treated copper cladding of the pavilions above. Thin skylights in the pavilions’ ceilings echo those in the gallery below, and the charcoal-stained wood interiors in the pavilions, combined with full-height glazing, add light and warmth to the residence and reception areas.

“It’s fantastic the way the project integrates ideas about natural light, water, landscape, and materiality into such a coherent statement.” —Mark Yoes


Project CreditsProject Daeyang Gallery and House, Seoul, South Korea
Client Daeyang Shipping Co.
Architect Steven Holl Architects, New York—Steven Holl, FAIA (design architect); JongSeo Lee (associate-in-charge); Annette Goderbauer, Chris McVoy (project advisers); Francesco Bartolozzi, Marcus Carter, Nick Gelpi, Jackie Luk, Fiorenza Matteoni, Rashid Satti, Dimitra Tsachrelia (project team)
LocalArchitect E.rae Architects—Inho Lee, Minhee Chung, Hyoungil Kim
StructuralEngineer SQ Engineering
MechanicalEngineer Buksung HVAC+R Engineering
LightingConsultant L’Observatoire International
GeneralContractor Jehyo
Size 10,703 square feet
Cost Withheld
Photographer Iwan Baan

About the Author

Deane Madsen

Deane Madsen, Assoc. AIA, LEED Green Associate, is the former associate design editor for ARCHITECT, and still covers architecture and design in Washington, D.C. He earned his M.Arch. at UCLA's Department of Architecture and Urban Design. Follow Deane on Twitter at @deane_madsen.

No recommended contents to display.

Upcoming Events

  • Slate Reimagined: The Surprising Advantages of Slate Rainscreen Cladding

    Webinar

    Register Now
  • The State of Residential Design Today: Innovations and Insights from RADA-Winning Architects

    Webinar

    Register for Free
  • Specifying Smarter with Copper-Clad Aluminum (CCA) Metal-Clad Cable

    Webinar

    Register for Free
All Events