Kate Joyce
The 35,300-square-foot James I. Swenson Civil Engineering Buildi…
Kate Joyce
The 35,300-square-foot James I. Swenson Civil Engineering Buildi…
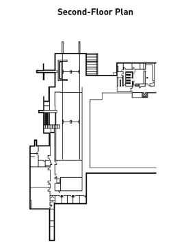
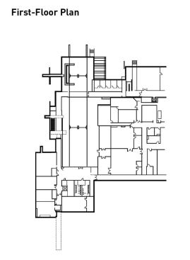
The 35,300-square-foot James I. Swenson Civil Engineering Building stands less than one mile from Lake Superior and bridges two watersheds. Inspired by the facility’s curriculum, project designers from Ross Barney Architects fashioned the LEED Gold–certified building as a pedagogical tool that manifests environmental responsibility. Inside, spaces expose structural connections and an underfloor air distribution system. Outside, rain animates the building façade, falling into reclaimed wood scuppers and cascading into catch basins filled with local stone.
Site
Native and adapted vegetation enhance the project’s landscape and require no permanent irrigation system. Stormwater collection and retention methods such as rain gardens, an underground stormwater retention system, and permeable pavers manage 90 percent of precipitation on site. In addition, 22 percent of the roof surface is landscaped with native plants to reduce stormwater flow rates and filter impurities. Reflective roofing on remaining surfaces mitigates the heat island effect.
Energy
Compared to ASHRAE 90.1-2004, the Swenson building’s estimated energy savings is 34.7 percent, which equates to nearly 38 percent savings in utility costs. Occupancy and daylight sensors and variable-frequency air volume fans lower energy consumption. A ventilated rainscreen system, spectrally selective glazing, and average insulation values of R-14 in various walls and R-37 in the roof help reduce heating demands. The building exceeds the Minnesota Sustainable Building 2030 Law with a 77 percent energy savings.
Water
Stormwater reclamation and treatment strategies include wooden scuppers that direct rainwater into French drains and an underground storage system. Permeable paving and vegetated roofs also help the project retain 90 percent of its stormwater. At least three times a year, 7,500 gallons are pumped into the hydraulics laboratory’s experimental flume, reusing 20 percent of the retained stormwater. Dual-flush toilets, low-water-consumption urinals, and low-flow, metered faucets also contribute to a total projected potable water savings of 50 percent.
Materials and IAQ
Regional and unfinished materials strengthen connections to the environment. The designers used Cor-Ten steel as an interior finish, on the exterior façade and rainscreen panel, and as 3-foot- to 8-foot-tall stormwater catch basins. Reclaimed taconite, a local iron-ore-rich rock mined to create steel, fills the basins and appears in pellets as landscaping mulch and rock for interior gabion walls. Enormous scuppers are fabricated with reclaimed cypress wood from regionally sourced pickle barrels. Solar-tube skylights bring daylight into laboratory areas while clerestory windows, glazing for circulation spaces, and interior walls help spread daylight to 90 percent of spaces.
Architect
“The building is used to train civil engineers, so we wanted to address as many engineering ideas as possible in the project itself. We thought it was important for them to see how stormwater is managed and made building strategies clearly visible so students are completely aware of them throughout the day. We also highlighted local mining industry materials that influence economic drivers for the engineering profession such as wood, concrete, iron ore, and steel.” —Carol Ross Barney, FAIA, design principal at Ross Barney Architects
Jury
“This is one of the projects that attempted to respond and really reduce the water demand from an environmental standpoint, whereas many of the other projects were more focused on energy. I don’t disagree with that, but this one took the treatment of water to the nth degree, which I appreciated. … As water becomes ascendant as an issue to be dealt with, the fact that this building makes a narrative out of its water management is pretty terrific. And frankly, it’s just such a beautiful project.”
For an extended view into Ross Barney’s philsophies on sustainable design as well as a showcase of the firm’s other green projects, click here.
GREEN TEAM
Design architect, interior designer, lighting designer, LEED consultant: Ross Barney Architects, r-barc.com
Architect of Record: TKDA (formerly SJA Architects), tkda.com
Client, owner: University of Minnesota Duluth
Mechanical engineer, electrical engineer: Dunham, dunhamassociates.com
Structural engineer: Meyer Borgman Johnson, mbjeng.com
Civil engineer: MSA Professional Services, msa-ps.com
Geotechnical engineer: American Engineering Testing
General contractor: Stahl Construction Co., stahlconstruction.com
Landscape architect: Oslund and Associates, oaala.com
MATERIALS
Building management systems and services: Siemens, siemens.com
Bulletin boards: Forbo, forboflooringna.com
Carpet, carpet adhesive: Shaw Floors, shawfloors.com
Ceilings: USG, usg.com
Cranes: KoneCranes, konecranes.com
Cor-ten cladding, interior metal cladding: Jamar Co., jamarcompany.com
Countertops: IceStone, icestoneusa.com
Curtainwalls: YKK AP, ykkap.com
Daylighting light tubes: Velux, veluxusa.com
Doors: Algoma Hardwoods, algomahardwoods.com
Exterior wall systems: Hanson Structural Precast, hansonstructuralprecast.com
Flooring: Daltile, daltile.com; Shaw, shawfloors.com
Furniture: Haworth, haworth.com
Glass: OldCastle BuildingEnvelope, oldcastlebe.com
HVAC: TROX, troxtechnik.com; Young Regulator Co., youngregulator.com; Vibro-Acoustics, vibroacoustics.com; Cook; Halton, haltoncompany.com; Daikin McQuay, mcquay.com; TWA, twapanels.ca; Runtal, runtalnorthamerica.com; SIGMA Corp., sigmaproducts.com
Interior walls: USG, usg.com
Lighting: Bega-US, bega-us.com; Nulite, nulite-lighting.com; Focal Point, focalpointlights.com; Cooper Lighting, cooperindustries.com; Ledalite, ledalite.com; Delray Lighting, delraylighting.com
Masonry, concrete and stone: Premier Block, premierblock.com
Millwork: St Germain’s Cabinet, stgermaincabinets.com
Paints and finishes: Sherwin Williams, sherwin-williams.com
Plumbing and water systems: Zurn, zurn.com; Zoeller, zoeller.com; Chronomite, chronomite.com; Blanco Divon, blanco.co.uk; Sloan Valve Co., sloanvalve.com; Speakman Co., speakmancompany.com; Elkay, elkay.com; B&G
Raised access floors: Haworth, haworth.com
Reclaimed wood: Urban Evolutions, urbanevolutions.com
Roofing: GAF, gaf.com; Henry, henry.com
Sealant: BASF, buildingsystems.basf.com
Signage: Designer Sign Systems, designersign.com
Site and landscape products: Prairie Restorations, prairieresto.com
Structural systems: Duluth Steel Fabricators
Windows and doors: Hufcor, hufcore.com; Wilson Doors, wilsondoors.com; Kawneer, kawneer.com

The engineering building at the University of Minnesota, Duluth, won over the 2012 Evergreen Awards judges in the New Construction category with its water-management strategies.

A Q&A with the firm behind the James I. Swenson Civil Engineering Building at the University of Minnesota, Duluth, the Evergreen Award winner in the New Construction category.

A 1974 storehouse is revitalized as a mixed-use development and wins the Evergreen Awards Existing Buildings category.

Lake|Flato revitalized downtown San Antonio, Texas, with the Full Good Warehouse to win the Existing Buildings category in this year’s Evergreen Awards.

An architecture and planning firm breathes new life into an abandoned automotive center and wins the Commercial Interiors category of the 2012 Evergreen Awards.

This Bremerton, Wash., firm won the Evergreen Award in the Commercial Interiors category for the old Sears Automotive Center that they transformed into their new offices.

A student residence designed to European Passive House standards wins the Evergreen Awards residential category for 2012.

The a Q&A with the firm behind the dormitory at Unity College in Unity, Maine, winner of the 2012 Evergreen Award in the Residential category.

PNC’s ambitious new headquarters under construction in Pittsburgh wins the 2012 Evergreen Awards On the Boards category.

Along with Gensler, this firm is the other half of the design team behind the new Tower at PNC Plaza in Pittsburgh, Pa., scheduled to be completed in 2015. In this Q&A, they discuss the project and their philosophy.

We chat with Lazarus, the winner of our 2012 Evergreen Awards Perspective category and HOK’s director of sustainable design, about performance-based design, biomimicry, health, and more.

For the fifth year, ECO-STRUCTURE recognizes excellence in environmental performance and design in the Evergreen Awards competition, and we thank this year’s jury.
No recommended contents to display.