Sugar Mill, Chilmark, Mass.

Merit Award / 3,000 to 5,000 Square Feet

1 MIN READ

This cedar-and-teak dwelling is at home on its hill overlooking the Atlantic Ocean and coastal ponds while also paying playful homage to the sugar mills of the West Indies, where the clients vacation. The three hipped-roof volumes—each focused on a different view—can flex to welcome 20 people for a Fourth of July weekend or two for a mid-winter retreat.

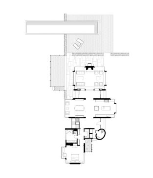
Phil Regan, a principal at Hutker Architects, and project architect James Moffatt devised the elliptical stone marker to soften the corner and guide visitors around it to the front door from a lower parking court. The stonework completes the oval inside, where it houses a fanciful powder room. “People are drawn to the shape, and we like to detail powder rooms in imaginative ways,” Regan says.

Our jury applauded the richness of the materials and the handling of scale. “It’s got really good planning,” said one judge, “and the colors show a tremendous sensitivity.”

Entrant/Architect:Hutker Architects, Vineyard Haven, Mass.
Builder
: Johnson Vineyard Builders, Vineyard Haven
Landscape architect: Kristen Reimann, Landscape Architect, Vineyard Haven
Living space: 3,538 square feet
Site: 4.52 acres
Construction cost: Withheld
Photographer: Brian Vanden Brink

About the Author

No recommended contents to display.

Upcoming Events

  • Design Smarter: Leveraging GIS, BIM, and Open Data for Better Site Selection & Collaboration

    Live Webinar

    Register for Free
  • Slate Reimagined: The Surprising Advantages of Slate Rainscreen Cladding

    Webinar

    Register Now
  • The State of Residential Design Today: Innovations and Insights from RADA-Winning Architects

    Webinar

    Register for Free
All Events