Studio Prize: The Architectonics of Music, Advanced Studio VI

This iteration of a long-running graduate-level studio at Columbia University's Graduate School of Architecture, Planning and Preservation examined how the work of composer Edgard Varèse could be translated into architecture.

4 MIN READ

See all of the 2018 winners of the Studio Prize.


Studio Brief | Twelve students, divided into teams of two, were asked to design a music performance and research center to celebrate the work of the French-American composer Edgard Varèse, using a brief selection of his music as inspiration. After an initial period of investigation into the relationship between music and architecture, each team designed large-scale study models as their final project.

Investigation | Edgard Varèse was a leading figure in the early 20th century musical avant-garde, and is considered one of the forefathers of electronic music. Born in Paris, he spent most of his life in New York, on Sullivan Street in Lower Manhattan. He also had a close affiliation with architecture—in 1936, the Dutch corporation Philips chose him to write a piece of music for its Le Corbusier–designed pavilion at the 1958 Brussels World’s Fair.

Varèse’s relationship with architecture made it easy for Steven Holl, FAIA, who is a tenured professor of architecture at Columbia University’s Graduate School of Architecture, Planning and Preservation, to select him and his music as the focus of a recent course in his popular Architectonics of Music studio, offered to first-year masters in architecture students. “Music is an engulfing experience,” Holl says, explaining why he created the studio. “You can turn away from painting or sculpture, but music engulfs you—just like architecture.”

Holl began teaching the Architectonics of Music intermittently in 1986, and has co-taught it every year since 2010 with adjunct assistant professor Dimitra Tsachrelia, Assoc. AIA, who is also an associate at Steven Holl Architects, and married to Holl. Each studio focuses on a different composer, though the structure of the class remains the same.

This year, the students were asked to design their venues for a specific site: a vacant lot not far from Varèse’s home on Sullivan Street. Beyond programmatic requirements for an archive, library, performance space, and support facilities, Holl had the students choose a portion of Varèse’s music as inspiration. For example, drawing on Varèse’s incorporation of “found objects” in the form of everyday sounds into his music, one team used abstracted versions of household objects like soda cans and light bulbs to inform how they shaped balconies, elevators, and other features of the interiors.

The judges praised Holl and his studio for de-centering the traditional approach to academic design exercises. “Studios that take students out of what they think architecture is … are really important,” said Jennifer Yoos, FAIA.

Student Work |

Edgard Varèse Music Center—Found Objects
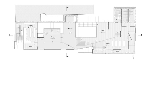
Lirong Tan and Xiaodan Ma looked to Varèse’s incorporation of sounds recorded in the street into his musical compositions as inspiration for their design, using a collection of ordinary objects—including a soda can, a light bulb, and other found items—to shape the spaces and volumes within the building. A curtainlike cladding envelops and organizes these spaces, and creates a soft edge between city and building.

Lirong Tan and Xiaodan Ma

Lirong Tan and Xiaodan Ma

Lirong Tan and Xiaodan Ma

Lirong Tan and Xiaodan Ma

Lirong Tan and Xiaodan Ma

Lirong Tan and Xiaodan Ma

Lirong Tan and Xiaodan Ma



Edgard Varèse Music Center—Ionization
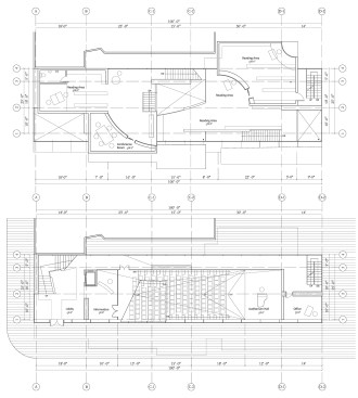
Kutay Biberoglu and Ziqing Nie found inspiration in Varèse’s 1931 piece “Ionisation,” in which the composer drew from Cubism to fragment collections of sounds into different timbres, expanding and splitting them to create a larger whole. Likewise, Biberoglu and Nie transformed and fragmented traditional architectural elements for their design, including space, color, and acoustics. They started with two spaces that they repeat over and over to form the larger complex, and then went through a series of spatial iterations to create a collection of unique environments.

Kutay Biberoglu and Ziqing Nie

Kutay Biberoglu and Ziqing Nie

Kutay Biberoglu and Ziqing Nie

Kutay Biberoglu and Ziqing Nie

Kutay Biberoglu and Ziqing Nie

Kutay Biberoglu and Ziqing Nie

Kutay Biberoglu and Ziqing Nie

Kutay Biberoglu and Ziqing Nie



Edgard Varèse Music Center—Events & Trigger
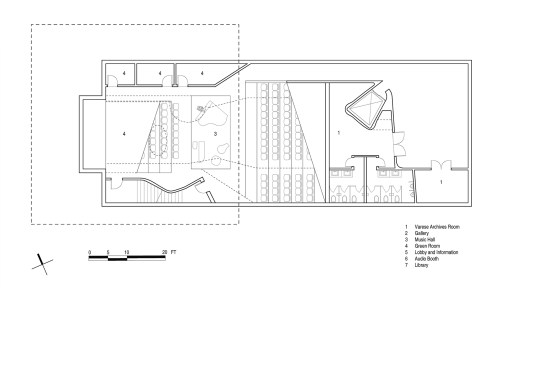
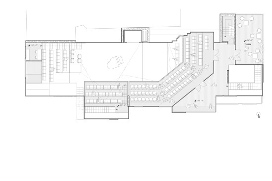
Zhenggu Zhou and Jian Zheng focused on “Poème Electronique,” the piece that Varèse composed for the 1958 Brussels World’s Fair. After analyzing the electronic elements in the composition, Zhou and Zheng created a Rube Goldberg machine that uses a rolling ball to simulate various sounds, and then translated the movement of that ball into the spatial elements of their design for a music center. They connect larger spaces such as an auditorium, library, and archive using smaller “trigger” spaces that direct movement through the building, which were influenced by the short transitions that connect and lead to longer movements in Varèse’s piece.

Zhenggu Zhou and Jian Zheng

Zhenggu Zhou and Jian Zheng

Zhenggu Zhou and Jian Zheng

Zhenggu Zhou and Jian Zheng

Zhenggu Zhou and Jian Zheng

Zhenggu Zhou and Jian Zheng


Studio Credits |
Course: The Architectonics of Music, Advanced Studio VI
School: Columbia University, Graduate School of Architecture, Planning and Preservation
Level: M.Arch., with pre-professional degree, year one; M.S. Advanced Architectural Design (AAD) with
pre-professional degree, one-year program; M.Arch, year three (Columbia University joins their M.Arch. third-year students with the AAD students)
Duration: Spring 2018 semester
Instructor: Steven Holl, FAIA (tenured professor of architecture); Dimitra Tsachrelia, Assoc. AIA (adjunct assistant professor of architecture); Raphael Mostel (composer, studio adviser)
Students: Kutay Biberoglu, Xiaodan Ma, Ziqing Nie, Lirong Tan, Jian Zheng, Zhenggu Zhou (submitted projects); Yu Cao, Hongsuk Lee, Suliuyi Li, Nika Mo, Konrad Ka Chin Tai, Haoxiang Wei
Techniques/Tools: advanced physical model making (CNC milling, 3D printing and casting); advanced 3D modeling and rendering (V-Ray for Rhino); video editing (Adobe Premiere Pro); photography; writing

About the Author

Clay Risen

Clay Risen is an editor at The New York Times op-ed section and the author, most recently, of The Bill of the Century: The Epic Battle for the Civil Rights Act (Bloomsbury Press, 2014). Along with regular articles for the Times, his freelance work has appeared in publications like Smithsonian, Metropolis, Fortune, and The Atlantic. Risen returns to the ARCHITECT fold after a brief hiatus, during which he wrote American Whiskey, Bourbon & Rye: A Guide to the Nation’s Favorite Spirit (Sterling Epicure, 2013). In the past, he has covered the legacies of critics Ada Louise Huxtable and Herbert Muschamp for ARCHITECT, as well as written criticism of his own about an interpretive center addition to the Vietnam Veterans Memorial in Washington, D.C., social housing built in interwar Germany, and how to fix the Pritzker Prize on the eve of that award’s 30th anniversary.

No recommended contents to display.

Upcoming Events

  • Build-to-Rent Conference

    JW Marriott Phoenix Desert Ridge

    Register Now
  • Reimagining Sense of Place: Materiality, Spatial Form, and Connections to Nature

    Webinar

    Register for Free
  • Homes that Last: How Architects Are Designing a Resilient Future

    Webinar

    Register Now
All Events