Yingst Retreat, Empire, Mich.

custom / more than 3,000 square feet / grand

2 MIN READ

salmela architect, duluth, minn.

Surprising as it may seem, the requirements that gave rise to the Yingst Retreat were rather conventional: lots of light, room for guests, a view of the lake. “The program was pretty normal,” says architect David D. Salmela, FAIA. The result, however, is an intriguing compound that combines elements of dwelling, environmental sculpture, and installation art.

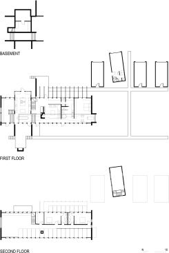
A deliberately direct driveway plunges to an entry court populated by four obscure, coal-black boxes: three garages and a workshop. The workshop steps out of line with its partners, opening a narrow passage to an inner courtyard and the house.

The house brackets its barlike length between end walls of white masonry that Salmela likens to “white swans on black water.” An exposed structure of laminated columns marches the length of the building, which steps downhill toward the lake. Terracelike levels define spaces both indoors and outdoors, where sculptural elements—a freestanding chimney, a sauna, and a pavilion one judge dubbed “the Mystery Critter”—draw one out into the landscape.

Our judges were taken with the project’s “moody, lyrical” quality, calling the scheme “abstract yet functional.” As one noted, the insertion of built forms into the natural environment “integrates play and discovery on the site.”


Project Credits
principal in charge / project architect: David D.Salmela, FAIA, SALMELA Architect, www.salmelaarchitect.com
general contractor: James Anderson, James Anderson Builders, Maple City, Mich.
landscape architect: Shane Coen, ASLA, Coen+Partners, Minneapolis
project size: 3,661 square feet
site size: 10 acres
construction cost: $429 per square foot
photography: Peter Bastianelli-Kerze, except where noted

Product Details
bathroom and kitchen cabinets: Architectural Elements of Michigan www.aemichigan.com; bathroom and kitchen fittings: Dornbracht Americas www.dornbracht.com; bathroom fixtures: Neptune www.bainsneptune.com, TOTO USA www.totousa.com; cooktop, oven/range: Wolf Appliance www.wolfappliance.com; dishwasher: ASKO North America www.askousa.com; doors, windows: Loewen www.loewen.com; exterior siding: Richlite Co. (Skatelite) www.skatelite.com; flooring (carpet): InterfaceFLOR www.flor.com; flooring (ceramic tile/stone/concrete): Evergreen Slate Co. www.evergreenslate.com; framing: PorterCorp (PorterSIPs) www.portersips.com, Timberweld www.timberweld.com; garage doors: Clopay Building Products Co. www.clopay.com; hardware: Häfele America Co. www.hafele.com/us; hvac equipment: GeoFurnace Heating & Cooling www.geofurnace.com; kitchen fixtures: Julien www.julien.ca; lighting fixtures: Cooper Lighting (Halo) www.haloltg.com, Crescent/Stonco www.stoncolighting.com, Moooi www.moooi.com; paints/stains/wall finishes: BioShield Paint Co. www.bioshieldpaint.com; refrigerator: The Liebherr Group www.liebherr-appliances.com; stove: NIPPA Sauna Stoves www.nippa.com; skylights/roof windows: VELUX-America www.velux.com

View the next 2010 rada winner.

About the Author

Bruce D. Snider

Bruce Snider is a former senior contributing editor of  Residential Architect, a frequent contributor to Remodeling. 

Upcoming Events

  • Design Smarter: Leveraging GIS, BIM, and Open Data for Better Site Selection & Collaboration

    Live Webinar

    Register for Free
  • Slate Reimagined: The Surprising Advantages of Slate Rainscreen Cladding

    Webinar

    Register Now
  • The State of Residential Design Today: Innovations and Insights from RADA-Winning Architects

    Webinar

    Register for Free
All Events