the assembly building at clipper mill, baltimore

adaptive reuse / grand

2 MIN READ

cho benn holback + associates, baltimore

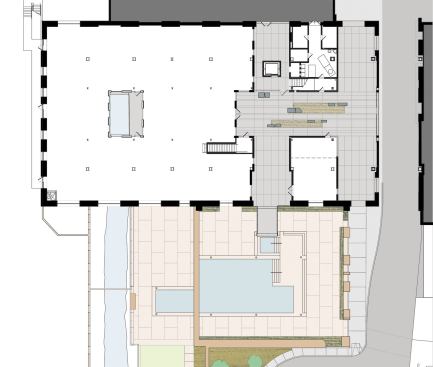
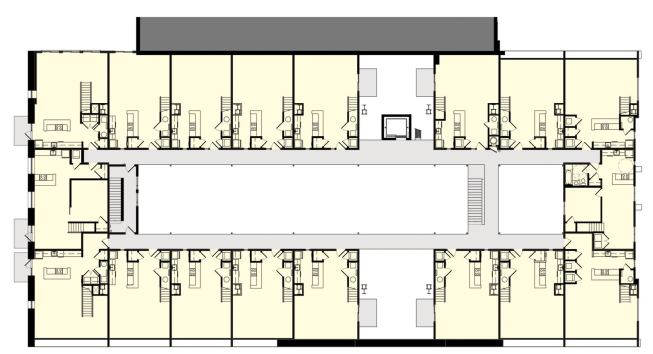
So many urban loft conversions all but obliterate the building’s sense of history. This one celebrates it as a ruin, rough edges and all. Built circa 1890, this part of the historic mill complex had been slowly disintegrating when a fire burned the roof off, leaving only a masonry-and-steel shell. In an effort that David Benn, AIA, likens to putting a ship in a bottle, the design team inserted a ground-level concrete plinth that houses office space. Above are two floors of two-level loft units that align with the existing double-height arched windows. Light filters into the commercial core through pyramid skylights cut into a second-story open-air courtyard. Lit at night, they glow upward like jewels.

The architects opened another three-story light well that exposes a basement-level stream. “We cut an opening into the stream, so theoretically you could be sending a fishing line down,” Benn explains, “but it looks more like the sewers of Paris, with a cobbled bottom.” To make living there even more fun, a hike-and-bike greenway also runs through the renovated building.

The jury applauded the firm for preserving a sense of the original shell. “These buildings are being demolished so fast, and to keep this is great,” said one judge.

principal in charge: David Benn, AIA, Cho Benn Holback + Associates
project architects: Davin Hong and Robert Lyon, Cho Benn Holback + Associates
developer / general contractor: Tim Pula, Struever Bros. Eccles & Rouse, Baltimore
project size: 62,794 square feet
site size: 17 acres
construction cost: $125 per square foot
rental price: $1,240 to $2,040 per unit per month
units in project: 36
photography: Patrick Ross Photography, except where noted

product specs
bathroom plumbing fixtures:Crane Plumbing; bathroom and kitchen cabinets: Masco Builder Cabinet Group (Merillat); countertops:Wilsonart International; dishwasher, range: Electrolux Home Products (Frigidaire); entry doors:Bunting Door & Hardware Co.; exterior siding:CENTRIA Architectural Systems; flooring (vinyl):Armstrong World Industries; garbage disposer:Whirlpool Corp.; hardware:DORMA Architectural Hardware, Yale Residential Security Products; hvac equipment:A.O. Smith Corp., YORK; skylights/roof windows:The Vistawall Group (Naturalite); windows:Kawneer North America, MI Windows and Doors

About the Author

Cheryl Weber

Cheryl Weber, LEED AP, is a senior contributing editor to Custom Home and a frequent contributor to Builder. 

Upcoming Events

  • Design Smarter: Leveraging GIS, BIM, and Open Data for Better Site Selection & Collaboration

    Live Webinar

    Register for Free
  • Slate Reimagined: The Surprising Advantages of Slate Rainscreen Cladding

    Webinar

    Register Now
  • The State of Residential Design Today: Innovations and Insights from RADA-Winning Architects

    Webinar

    Register for Free
All Events