Residence e2, Washington, D.C.

renovation / merit

2 MIN READ

robert m. gurney, faia, washington, d.c.

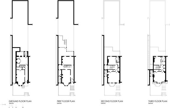
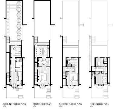
The clients for this Washington, D.C., renovation have young children and a modern art collection—both of which tend to thrive in open floor plans. But the original 1876 house in the city’s Georgetown neighborhood was “a series of very small, compartmentalized spaces,” according to architect Robert M. Gurney, FAIA. He ended up gutting the deteriorating house and reconfiguring the plan with larger, fewer rooms that better accommodate the owners’ lifestyle.

Gurney didn’t want to lose the project’s historic character, though, so he had all of the wood and plaster moldings within the existing home’s footprint matched and remade. He stripped off an old addition on the back of the house and replaced it with a light-filled new one of steel and glass. “It’s a synthesis of the new and modern with the old,” he says.

The judges agreed. “There’s a coherence to the whole,” said one.


Project Credits
principal in charge / project architect / landscape designer: Robert M. Gurney, FAIA, Robert M. Gurney, FAIA, www.robertgurneyarchitect.com
project designer: Claire L. Andreas, Assoc. AIA, Robert M. Gurney, FAIA
general contractor: Adam Prill, Prill Construction Group, Bethesda, Md., www.prillconstruction.com
interior designer: Thérèse Baron Gurney, ASID, Baron Gurney Interiors, Washington, D.C.
project size: 3,600 square feet
site size: 0.8 acre
construction cost: Withheld
photography: Maxwell MacKenzie

Product Details
bathroom fittings and fixtures: Waterworks www.waterworks.com; dishwasher: KitchenAid www.kitchenaid.com; garbage disposer: In-Sink-Erator www.insinkerator.com; hvac equipment: Trane www.trane.com; kitchen fittings and fixtures: Bulthaup Corp. www.bulthaup.com, Waterworks www.waterworks.com; lighting fixtures: Artemide U.S.A. www.artemide.us, BEGA/US www.bega-us.com, Crescent/Stonco www.stoncolighting.com, Lightolier www.lightolier.com; refrigerator: The Liebherr Group www.liebherr-appliances.com

View the next 2010 rada winner.


About the Author

Upcoming Events

  • Build-to-Rent Conference

    JW Marriott Phoenix Desert Ridge

    Register Now
  • Reimagining Sense of Place: Materiality, Spatial Form, and Connections to Nature

    Webinar

    Register for Free
  • Homes that Last: How Architects Are Designing a Resilient Future

    Webinar

    Register Now
All Events