private residence, rural minnesota

renovation / merit

1 MIN READ

meyer, scherer & rockcastle, ltd., minneapolis

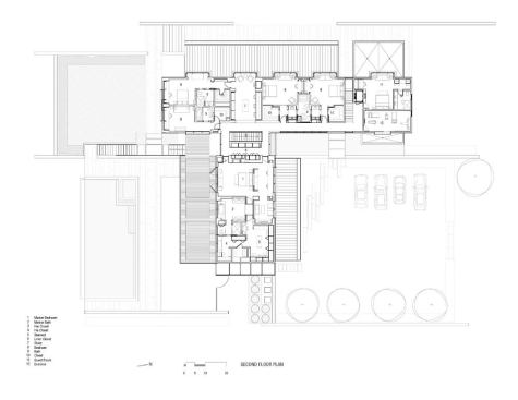
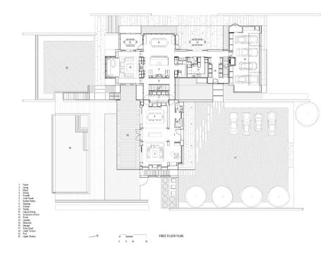
Before its remodel and addition, this project consisted of a 1930s cottage, a garage/workshop, and a root cellar. The buildings lacked any unifying organization, and the small cottage had tiny rooms, bad windows, and lousy heating. “The cottage was plain and looked good from the outside,” says architect Thomas Meyer, “but no one cared about the inside.”

His plan called for a new integration and relationship among the little buildings, and a new master bedroom addition. He stripped the existing structures just enough to allow substantive changes, including a new kitchen, entry, stair, fireplace, and bathrooms for the cottage. He converted the root cellar into the master bath/dressing area and connected it to the master bedroom addition. And he tucked a caretaker’s office and another bathroom into the updated workshop/garage. New windows help link all the structures visually.

“The buildings have a New England quality,” says Meyer, who likens them to a “village of gabled roofs.” The judges called them “playful and sweet”

project architect: Christine Albertsson, Meyer, Scherer & Rockcastle, Ltd.
land planner: Bob Close, Close Landscape Architecture, St. Paul, Minn.
general contractor: Peter Hagstrom, R. Hagstrom Builder, Lake Elmo, Minn.
landscape architect: Bob Close, Close Landscape Architecture, St. Paul
interior designer: Lynn Barnhouse and Jodi Klammer, Meyer, Scherer & Rockcastle
project size: 2,100 square feet before; 3,100 square feet after
site size: 250 acres
construction cost: Withheld
photographer: Peter Kerze

About the Author

Upcoming Events

  • Slate Reimagined: The Surprising Advantages of Slate Rainscreen Cladding

    Webinar

    Register Now
  • The State of Residential Design Today: Innovations and Insights from RADA-Winning Architects

    Webinar

    Register for Free
  • Specifying Smarter with Copper-Clad Aluminum (CCA) Metal-Clad Cable

    Webinar

    Register for Free
All Events