nest house, hurricane valley, ark.

custom / 3,500 square feet or less / merit

1 MIN READ

rockhill and associates, lecompton, kan.

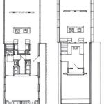
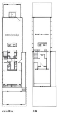
This retirement house in rural Arkansas is unlike anything you’ll see in Florida or Arizona, but for the homeowners it makes perfect sense. “They had a strong appreciation for what we do,” says principal in charge Dan Rockhill, “and felt they could live with something different.”

Faced with a limited budget, Rockhill and project architect David Sain used off-site steel prefabrication as much as possible and filled in with site work. The clients, who are avid bird watchers, wanted to live in the trees, so the house rests on thin steel pilings and features large glass panels to bring the outside in. The glass faces east, but because it’s placed high in the trees, solar heat gain is not an issue, Rockhill says.

To meet budget, the design keeps the material palette straightforward. A woodburning stove provides warmth when necessary, and ceiling fans temper summer heat. Siding from locally grown oak is installed as a rainscreen, and corrugated metal roofs protect the outside. Said one judge appreciatively, “The structure is refined in an un-self-conscious way.”

principal in charge / general contractor: Dan Rockhill, Rockhill and Associates
project architect: David Sain, Rockhill and Associates
project size: 1,280 square feet
site size: 8 acres
construction cost: Withheld
photography: Aaron Dougherty

product specs
bathroom and kitchen plumbing fittings:Moen; bathroom plumbing fixtures:TOTO USA; bathroom and kitchen cabinets, countertops:IKEA; kitchen plumbing fixtures:Blanco America; roofing:GenFlex Roofing Systems

About the Author

Upcoming Events

  • Design Smarter: Leveraging GIS, BIM, and Open Data for Better Site Selection & Collaboration

    Live Webinar

    Register for Free
  • Slate Reimagined: The Surprising Advantages of Slate Rainscreen Cladding

    Webinar

    Register Now
  • The State of Residential Design Today: Innovations and Insights from RADA-Winning Architects

    Webinar

    Register for Free
All Events