Montrose Residence, Montrose, Calif.

outbuilding / merit

1 MIN READ

montrose residence, montrose, calif.
los angeles
warren techentin architecture

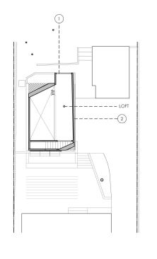
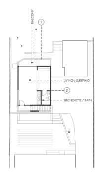
Stacking a guest apartment atop an existing garage, this backyard structure adds a workshop, overflow living space, and solar electricity to a maxed-out family home. The building’s angular, vertically oriented envelope works within the site’s constraints—which included a large shade tree—to secure views and optimize solar exposure. Rainscreen siding shades the exterior, while a remote-controlled skylight promotes stack effect–driven passive cooling. Our jury noted the project’s positive effect on its site. One judge said, “It activates the gardens in a very sculptural way.”

View all 2012 RADA winners.


project credits

principal in charge: Warren Techenten, AIA, LEED AP, Warren Techentin Architecture; general contractor: Simon Sage, Expert Builders, Burbank, Calif.; project size: 484 square feet; site size: 1.1 acres; construction cost: $227 per square foot; photography: Nicholas Cope.


product details

bathroom and kitchen fittings: Kohler, www.kohler.com; bathroom and kitchen fixtures: Kohler; cooktop: Miele, www.miele.com; countertops: Caesarstone, www.caesarstone.com; flooring: Ultimate Bamboo; green products: Firestone Rubbergard roofing (recyclable), www.firestonebpco.com, Sheetrock gypsum board (recycled), www.usg.com; hardware: Baldwin, www.baldwinhardware.com; hvac equipment: Carrier, www.carrier.com; insulation: Bonded Logic, www.bondedlogic.com; kitchen cabinets: Ikea, www.ikea.com; oven and refrigerator: General Electric, www.geappliances.com; roofing: Johns Manville, www.jm.com; skylights: Velux, www.velux.com; solar energy system: Uni-Solar, www.uni-solar.com

About the Author

Bruce D. Snider

Bruce Snider is a former senior contributing editor of  Residential Architect, a frequent contributor to Remodeling. 

Upcoming Events

  • Design Smarter: Leveraging GIS, BIM, and Open Data for Better Site Selection & Collaboration

    Live Webinar

    Register for Free
  • Slate Reimagined: The Surprising Advantages of Slate Rainscreen Cladding

    Webinar

    Register Now
  • The State of Residential Design Today: Innovations and Insights from RADA-Winning Architects

    Webinar

    Register for Free
All Events