Montecito Residence, Santa Barbara, Calif.

custom / more than 3,000 square feet / merit

1 MIN READ

olson kundig architects, seattle

Subdued and stunning are two adjectives not often uttered in the same sentence, but that’s how the judges described this project. “It’s like a wedding chapel in Japan,” said one. “It’s sculptural but fits in, and is part of the path.”

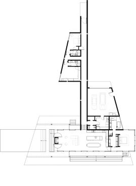
And what a destination it is. Set in the fire-prone Toro Canyon, the house responds to big views and extreme environmental conditions. Its hardscrabble concrete and steel blend into the land, and its form harvests the elements—sun and wind—that create potential hazards. The overhanging roof provides shade and sheds water for a future cistern, its tail kicking up toward the view and prevailing breezes. “That’s where the 18-foot Dutch door comes in,” explains Tom Kundig, FAIA. “The upper portion can be opened, allowing breezes to flow through while maintaining security. Operating both together opens the spine dramatically for the entry sequence, building to the main box that strings the main rooms along the edge of the bluff.”

A judge noted appreciatively that the design “understands approach and arrival and is modest, considering what the land is worth.”


Project Credits
principal in charge: Tom Kundig, FAIA, Olson Kundig Architects, www.olsonkundigarchitects.com
project manager: Elizabeth Bianchi Conklin, AIA, LEED AP, Olson Kundig Architects
general contractor: Bob Young, Young Construction, Santa Barbara, Calif., www.youngconst.com
interior designer: Debbie Kennedy, Olson Kundig Architects
project size: 3,786 square feet
site size: 10 acres
construction cost: Withheld
photography: Nikolas Koenig, except where noted

Product Details
paints/stains/wall finishes: Benjamin Moore & Co. www.benjaminmoore.com; windows: Fleetwood Windows & Doors www.fleetwoodusa.com

View the next 2010 rada winner.

About the Author

Upcoming Events

  • Design Smarter: Leveraging GIS, BIM, and Open Data for Better Site Selection & Collaboration

    Live Webinar

    Register for Free
  • Slate Reimagined: The Surprising Advantages of Slate Rainscreen Cladding

    Webinar

    Register Now
  • The State of Residential Design Today: Innovations and Insights from RADA-Winning Architects

    Webinar

    Register for Free
All Events