Modular 4, Sustainable Residence, and Prescott Passive House, Kansas City, Kan.

Single-Family Housing / Grand

4 MIN READ

studio 804
lawrence, kan.

The judges bestowed one collective Grand award on the three entries from Studio 804, the University of Kansas design/build program led by Dan Rockhill. “We want to encourage this direction,” said one juror, commending the studio’s “continued research” into single-family housing solutions.

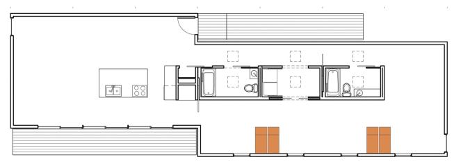
With each project, Rockhill and his students have explored a different facet of residential design and building, often expanding on the previous year’s effort. In 2007, they created Modular 4, a prefab, 1,500-square-foot home in Kansas City, Kan. The next year they shifted their focus away from residential work and onto a sustainable prototype for an arts center in tornado-devastated Greensburg, Kan. “That building really charted the course for our interest in LEED,” Rockhill notes. The studio’s 2009 project, the Sustainable Residence in Kansas City, achieved a LEED Platinum rating. And its 2010 undertaking, the affordable Prescott Passive House (again in Kansas City), not only reached LEED Platinum status, but also is a certified Passive House.

Studio 804’s consistent push for attractive, eco-friendly housing impressed the judges. “We’re trying to prove that you don’t have to give up good design to do sustainable work,” Rockhill says. He and his students have succeeded at that effort time and again. Currently, they’re working on another sustainable project, the new Center for Design Research at the University of Kansas.

Our sister publication, ecohome, highlighted the Prescott Passive House as an affordable spec house for qualified buyers. Read the article.


Click here to see all 2011 rada winners.

Project Credits

principal in charge: Dan Rockhill, Studio 804
project architect / general contractor / developer / land planner / landscape designer / interior designer: Studio 804
project size: 1,500 square feet (Modular 4), 2,400 square feet (Sustainable Residence), and 1,700 square feet (Prescott Passive House)
site size: 0.5 acre (Modular 4), 0.2 acre (Sustainable Residence), 0.2 acre (Prescott Passive House)
construction cost: $133 per square foot (Modular 4), $150 per square foot (Sustainable Residence), $93 per square foot (Prescott Passive House)
sales price: $200,800 (Modular 4), $325,000 (Sustainable Residence), $159,000 (Prescott Passive House)
photography: Courtesy Studio 804

product details

modular 4

bathroom and kitchen cabinets: IKEA, www.ikea.com; bathroom fittings: Kohler, www.kohler.com; bathroom fixtures: Aquarius, www.aquariusproducts.com, Kohler, www.kohler.com; countertops: PaperStone, www.paperstoneproducts.com; Fisher & Paykel, www.fisherpaykel.com; doors: Häfele America Co., www.hafele.com/us, Loewen, www.loewen.com, Raydoor, www.raydoor.com; exterior siding: Alcoa Architectural Products, www.alcoa.com, Bozovich Timber Products, www.bozovich.com; flooring: BuildDirect, www.builddirect.com; garage doors: Amarr Garage Doors, www.amarr.com; garbage disposer: InSinkErator, www.insinkerator.com; hardware: Cottin’s Hardware and Rental, www.cottinshardware.com, Häfele America Co., www.hafele.com/us; hvac equipment: Kansas Trane Service, www.kansastrane.com; insulation: Central Fiber Corp., www.centralfiber.com; kitchen fixtures: Kohler, www.kohler.com; lighting fixtures: Con-Tech Lighting, www.con-techlighting.com; oven: Frigidaire, www.frigidaire.com; paints/stains/wall finishes: Sherwin-Williams, www.sherwin-williams.com; refrigerator: Factory Direct Appliance, www.kcfda.com; roofing: WeatherBond, www.weatherbondroofing.com; skylights: Velux, www.velux.com; windows: Loewen, www.loewen.com

sustainable residence

bathroom and kitchen cabinets: EcoUrban, www.ecourbancollection.com; bathroom fittings: Fluid SSI, www.sustainablesolutions.com; bathroom fixtures: Caroma, www.caromausa.com; cooktop, dishwasher, oven, and refrigerator: Electrolux, www.electroluxusa.com; countertops: Richlite, www.richlite.com; doors: Raydoor, www.raydoor.com, Serious Materials, www.seriousmaterials.com; exterior siding: Cikel, www.cikel.com, VaproShield, www.vaproshield.com; flooring (ceramic tile, stone, or concrete): Diamond Tech Tiles, www.dttiles.com, Geiger Ready Mix, www.geigerreadymix.com; flooring (wood): Cikel, www.cikel.com; garage doors: Real Carriage Door, www.realcarriagedoors.com; garbage disposer: InSinkErator, www.insinkerator.com; hardware: Häfele America Co., www.hafele.com/us; hvac equipment: ClimateMaster, www.climatemaster.com; insulation: Central Fiber Corp., www.centralfiber.com; kitchen fixtures: Fluid SSI, www.sustainablesolutions.com; lighting fixtures: Con-Tech Lighting, www.con-techlighting.com, WattStopper, www.wattstopper.com; paints/stains/wall finishes: Sherwin-Williams, www.sherwin-williams.com; roofing: Cikel, www.cikel.com, Metal Sales, www.metalsales.us.com; skylights: Velux, www.velux.com; solar energy system: BMK Plumbing & Solar, www.bmkplumbingsolar.com; windows: SeriousWindows, www.seriouswindows.com

prescott passive house

bathroom and kitchen cabinets: IKEA, www.ikea.com; bathroom and kitchen fittings: Kohler, www.kohler.com; bathroom fixtures: Caroma, www.caromausa.com; cooktop, dishwasher, kitchen fixtures, and oven: Electrolux, www.electroluxusa.com; countertops: Richlite, www.richlite.com; doors: Serious Materials, www.seriousmaterials.com, Zech, www.zech.cc/en; exterior siding: VaproShield, www.vaproshield.com; flooring (wood): Superior Wood Flooring, www.superiorbambooflooring.com; garbage disposer: InSinkErator, www.insinkerator.com; hardware: Häfele America Co., www.hafele.com/us; hvac equipment: Daikin, www.daikin.com, Ultimate Air Inc., www.ultimateair.com; insulation: Central Fiber Corp., www.centralfiber.com; lighting fixtures: Con-Tech Lighting, www.con-techlighting.com; paints/stains/wall finishes: Benjamin Moore, www.benjaminmoore.com; skylights: Velux, www.velux.com; windows: Zech, www.zech.cc/en

About the Author

Upcoming Events

  • Design Smarter: Leveraging GIS, BIM, and Open Data for Better Site Selection & Collaboration

    Live Webinar

    Register for Free
  • Slate Reimagined: The Surprising Advantages of Slate Rainscreen Cladding

    Webinar

    Register Now
  • The State of Residential Design Today: Innovations and Insights from RADA-Winning Architects

    Webinar

    Register for Free
All Events