Lily Lake Residence, Dalton, Pa.

Custom / More Than 3,000 Square Feet / Grand

2 MIN READ

bohlin cywinski jackson
wilkes-barre, pa.

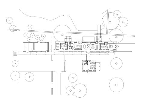
“Sublime” is how a judge described the relationship between an old stone cottage and a long, linear house that hovers behind it, like a mirage in the rolling terrain.

The clients wanted their new house to assimilate the old one. Peter Q. Bohlin, FAIA, took cues from the raw materials of this early 1900s agrarian landscape: farm structures, high grass, and a pattern of dry-laid stone walls. He placed a wood-and glass house between the cottage, now renovated as a library and loft, and a new pond. A delicate glass passageway joins the structures, lining up the cottage’s front door with a massive fireplace in the new house. Light streams down its stone face from skylights on either side.

The low-slung house unspools along an existing stone wall. Two lattice-clad rooms, inspired by corncribs, pop out of the narrow footprint. One is the study, extended by a deck over the pond. The other, a guest bedroom, pushes toward a great maple tree along the wall. “The lattice makes it a special room, perfect for resting or reading in the afternoon, with a sliding door facing the water,” Bohlin says.

Our panelists appreciated that the new house defers to the original, but each has its own identity. “The design restores the old stone farmhouse and then just quietly makes it a grand estate,” a judge said.


Click here to see all 2011 rada winners.

Project Credits

principal in charge: William D. Loose, AIA, Bohlin Cywinski Jackson
principal for design: Peter Q. Bohlin, FAIA, Bohlin Cywinski Jackson
project manager: Todd Howard, Bohlin Cywinski Jackson
general contractor: Warren Breig III, Breig Brothers, Dalton, Pa.
landscape architect: Michael Vergason, Michael Vergason Landscape Architects, Alexandria, Va.
project size: 5,960 square feet
site size: Withheld
construction cost: Withheld
photography: Nic Lehoux.

product details

bathroom fittings and fixtures: Kohler, www.kohler.com; countertops: Vermont Structural Slate Co., www.vermontstructuralslate.com; dishwasher: Miele, www.mieleusa.com; doors and windows: Tradewood Windows and Doors, www.tradewoodindustries.com; flooring: Endless Mountain Stone Co., www.endlessmountainstone.com, Vermont Structural Slate Co., www.vermontstructuralslate.com; garage doors: Designer Doors, www.designerdoors.com; hardware: FSB, www.fsbna.com; insulation: Fomo Products, www.fomo.com; kitchen fittings: Blum, www.blum.com, Hansgrohe, www.hansgrohe-usa.com, Reveal Designs, www.reveal-designs.com; kitchen fixtures: Blanco, www.blancoamerica.com; lighting fixtures: Ardee Lighting, www.ardeelighting.com, B-K Lighting, www.bklighting.com, Bruck Lighting Systems, www.brucklighting.com, Lumière, www.lumierelighting.com; oven: Wolf, www.wolfappliance.com; paints/stains/wall finishes: Cabot, www.cabotstain.com, Penofin, www.penofin.com; refrigerator: Sub-Zero, www.subzero.com; roofing: Carlisle SynTec, www.carlisle-syntec.com, Revere Copper Products, www.reverecopper.com; skylights: AIA Industries, www.aiaindustries.com

About the Author

Upcoming Events

  • Design Smarter: Leveraging GIS, BIM, and Open Data for Better Site Selection & Collaboration

    Live Webinar

    Register for Free
  • Slate Reimagined: The Surprising Advantages of Slate Rainscreen Cladding

    Webinar

    Register Now
  • The State of Residential Design Today: Innovations and Insights from RADA-Winning Architects

    Webinar

    Register for Free
All Events