hover craft

1 MIN READ

Three young architects with a passion for craftsmanship launched their new design/build firm and this 6,000-square-foot interiors project nearly simultaneously. “Most of these modern designs require learning as you go when building them, anyway,” says principal Vincent Petrarca, Associate AIA. “We knew we could build our designs as well as a more experienced contractor because it’s all new with each house, and we see the whole picture and can anticipate how things need to be exactly.”

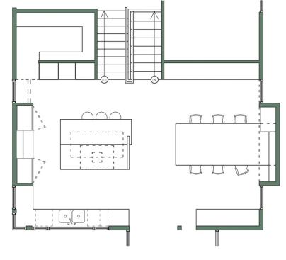
The soaring story-and-a-half kitchen condenses functions so the room can remain open to outdoor views. Geared to a serious cook, the work zone circulates around a large double-sided island, containing a cook-top and stainless steel surround, and a concrete eating bar. Across from the cooktop is a concrete prep counter with integrated trivet and butcher block. Clear maple cabinets with custom designed drawers support the hefty countertops. Reveals and toekicks, however, create the illusion that the slabs hover independently in space.

Opposite the workstation, a dining table of thick maple planks cantilevers from the wall just beneath the gas fireplace. Honed concrete panels dress up the manufactured firebox and echo a concrete half-wall that shields the kitchen island from view. “The same materials were used in both spaces,” says Petrarca, “but we put them together differently to signify distinct functions.”

architect / general contractor:

Vincent Petrarca and Charles Holden, Tonic Design/Tonic Construction, Raleigh, N.C.

cabinetmaker: Hardwood Designs, Raleigh

concrete and range hood fabricator:

Cheng Design, Berkeley, Calif.

exterior architecture: Frank Harmon Architect, Raleigh.

resources:
dishwasher: Miele; hardware: D-Line; plumbing fixtures: Dornbracht, Elkay, Grohe; oven: Gaggenau; refrigerator: Sub-Zero; towel warmers: Myson.

Upcoming Events

  • Build-to-Rent Conference

    JW Marriott Phoenix Desert Ridge

    Register Now
  • Reimagining Sense of Place: Materiality, Spatial Form, and Connections to Nature

    Webinar

    Register for Free
  • Homes that Last: How Architects Are Designing a Resilient Future

    Webinar

    Register Now
All Events