House for locavore farmers, geyserville, calif.

renovation / merit

2 MIN READ

house for locavore farmers, geyserville, calif.
cooper joseph studio
new york

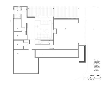
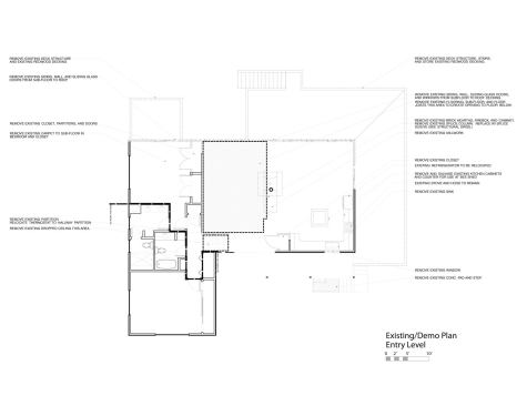
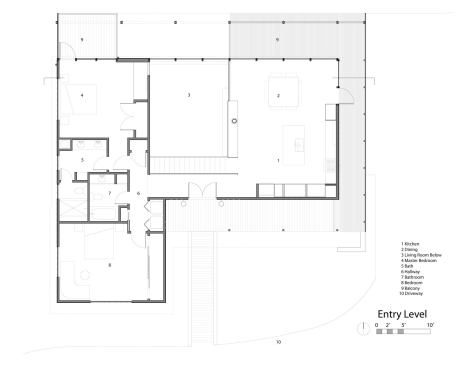
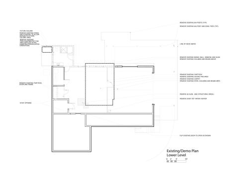
The judges admired this dramatic transformation of a formerly generic house in northern California. “They didn’t just expand, they reworked it,” one juror said. Architects Wendy Evans Joseph, FAIA, LEED AP, and Chris Cooper, AIA, LEED AP, removed the existing north façade and a porch that blocked sight lines, designing a new ipe porch to frame and highlight spectacular views. They also opted to open up the inside of the two-story house, cutting away chunks of wall and ceiling to create more dynamic volumes.

Sustainable strategies included installing a remote solar array, reusing demolition waste from the remodel elsewhere on the property, and remaking the landscaping to facilitate small-scale farming and beekeeping. Joseph also credits builder David Warner for his and his staff’s dedication to the project. “They brought a lot of craftsmanship, a lot of construction expertise,” she says.

View all 2012 RADA winners.


project credits

principals in charge/interior designers: Wendy Evans Joseph, FAIA, LEED AP, and Chris Cooper, AIA, LEED AP, Cooper Joseph Studio; architect of record: Heidi Richardson, Richardson Architects, Mill Valley, Calif.; general contractor: David Warner and Craig Smith, Redhorse Constructors, San Rafael, Calif.; structural engineer: Karen Tysinger, Tysinger & Associates, Novato, Calif.; landscape designer: Peter Jacobsen, Jacobsen Landscaping, Cloverdale, Calif.; project size: 2,200 square feet (after renovation); site size: 25 acres; construction cost: Withheld; photography: Elliott Kaufman Photography.


product details

bathroom fittings and fixtures/kitchen fittings: Kohler, www.kohler.com; countertops: Silestone, www.silestoneusa.com; dishwasher: Bosch, www.bosch.us; flooring tile: Nemo, www.nemotile.com; kitchen fixtures: Julien, www.julien.ca; lighting fixtures: Artemide, www.artemide.us, Bega, www.bega-us.com, Delray, delraylighting.com, Rambusch, www.rambusch.com; range: Viking, www.vikingrange.com; paints/stains/wall finishes: Benjamin Moore, www.benjaminmoore.com; refrigerator: Sub-Zero, www.subzero-wolf.com

About the Author

Upcoming Events

  • Design Smarter: Leveraging GIS, BIM, and Open Data for Better Site Selection & Collaboration

    Live Webinar

    Register for Free
  • Slate Reimagined: The Surprising Advantages of Slate Rainscreen Cladding

    Webinar

    Register Now
  • The State of Residential Design Today: Innovations and Insights from RADA-Winning Architects

    Webinar

    Register for Free
All Events