Hollywood Hills Residence, Los Angeles

renovation / merit

2 MIN READ

griffin enright architects, los angeles

Griffin Enright Architects choreographed a series of simple moves that brought space, light, and architectural interest to this ordinary California home. The firm’s work “totally subsumed a rather banal house and made it extraordinary,” one judge observed.

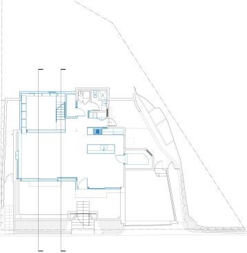
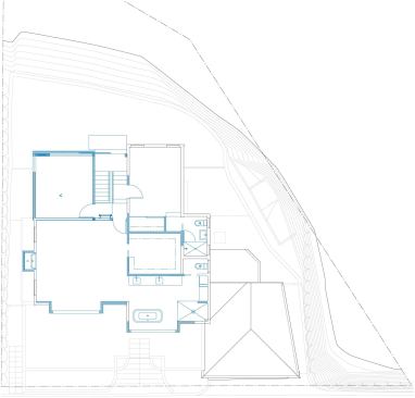
Located on a steep hilltop overlooking Hollywood, the circa 1940s tract home had dark, chopped-up spaces and a poor indoor/outdoor connection, despite various renovations, says Margaret Griffin, AIA. She and partner John Enright, AIA, LEED AP, stripped the house, retaining reusable elements where possible; eliminated four walls on the ground floor; inserted a two-room addition; and pushed the staircase to the back. “The new location of the stair allowed us to seamlessly unify the five different levels of the house,” Griffin explains.

Large sliding and folding doors open up the house to the front courtyard, and two large street-facing window boxes bring light to the second-floor master suite. The high-contrast palette of dark- and light-colored materials offered a means of “playing with spatial volume,” she adds.


Project Credits
principals in charge: Margaret Griffin, AIA, and John Enright, AIA, LEED AP, Griffin Enright Architects
project architect: Margaret Griffin, AIA; general contractor: Art Lopez, design plus construction (dcon), Los Angeles
landscape architect / interior designer: Margaret Griffin, AIA, Griffin Enright Architects
project size: 1,900 square feet (before), 2,300 square feet (after)
site size: Approximately 0.1 acre
construction cost: Withheld
photography: Benny Chan/Fotoworks

Product Details
bathroom fittings: Hansgrohe (Axor) www.axor-design.com, Kohler Co. www.kohler.com; bathroom fixtures: Duravit USA www.duravit.us, Kohler Co. www.kohler.com; cooktop: Gaggenau www.gaggenau.com; countertops: DuPont (Corian) www.corian.com; dishwasher: Bosch Home Appliances www.bosch-home.com; doors, windows: Fleetwood Windows & Doors www.fleetwoodusa.com; hardware: Omnia Industries www.omniaindustries.com; hvac equipment: Electrolux Major Appliances www.electroluxappliances.com; kitchen fittings: Dornbracht Americas www.dornbracht.com; kitchen fixtures: Just Manufacturing www.justsinks.com; lighting fixtures: BEGA/US www.bega-us.com, Birchwood Lighting www.birchwoodlighting.com, Con-Tech Lighting www.con-techlighting.com, DaSal Industries www.dasalindustries.com, Liton Lighting www.liton.com; oven/range: Miele www.miele.com; refrigerator: Sub-Zero www.subzero.com; skylights/roof windows: Sun Valley Skylights www.sunvalleyskylights.com

View the next 2010 rada winner.


About the Author

Upcoming Events

  • Design Smarter: Leveraging GIS, BIM, and Open Data for Better Site Selection & Collaboration

    Live Webinar

    Register for Free
  • Slate Reimagined: The Surprising Advantages of Slate Rainscreen Cladding

    Webinar

    Register Now
  • The State of Residential Design Today: Innovations and Insights from RADA-Winning Architects

    Webinar

    Register for Free
All Events