culinary connection

2 MIN READ

Geoff Prentiss, AIA, knowingly calls the owner of this San Juan Islands retreat a “major cook.” That knowledge comes from personal experience—the homeowner is also his cousin.

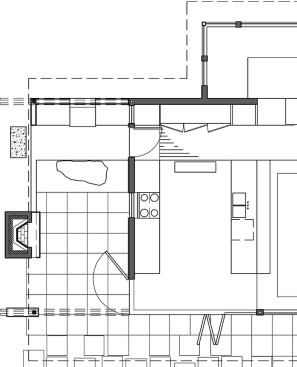
“He does it all himself, but he wants to be engaged with other people” while working, Prentiss says of his client’s cooking habits. With those requirements in mind, the architect designed indoor and outdoor kitchens with a strong flow and visual connection between them. Indeed, indoors and out are tightly linked throughout the plan.

“As you move through the house, you move through the landscape,” Prentiss says. He means that literally, because the main house, the sleeping cabin, and the guesthouse are separate buildings planted (sod roof and all) at a visual remove from one another. The buildings are relatively small—collectively they comprise just 2,824 square feet—but the divided arrangement allows the kitchen to live large, straddling both interior and exterior entertaining areas.

An extra-wide aisle between the island and cooking station offers ample room for mingling inside, while a 4-foot gap between the cabinets’ edge and a disappearing door system encourages guests to segue outside. The extra elbow room on either side of the doors “really blurs the indoor-outdoor distinction,” Prentiss says. Level changes further connect and define the areas in and around the kitchen. The main work zone of the interior kitchen shares a plane with outdoor built-in seating areas. But the pantry and refrigerator are a step above, in line with a raised built-in barbeque station just outside. Prentiss says that “letting the kitchen spread out allows it to flow easily with the rest of the house.”

Cabinets and other interior built-ins have furniture-like detailing, delicate reveals, and raw side-panel edges. “They give the house personality while defining the function of different spots within it,” he says.


View corresponding bath.


architect/landscape architect: Prentiss Architects, Seattle

general contractor: Ravenhill Construction, Friday Harbor, Wash.

resources: bathroom fittings and fixtures: Lacava; dishwasher: Miele; kitchen fittings and fixtures: Dornbracht; oven: Wolf; patio doors: Quantum Windows & Doors; refrigerator: Sub-Zero

photography: Jeff Mason

About the Author

Shelley D. Hutchins

Shelley D. Hutchins, LEED AP, writes about residential construction and design, sustainable building and living, and travel and health-care issues.

Upcoming Events

  • Reimagining Sense of Place: Materiality, Spatial Form, and Connections to Nature

    Webinar

    Register for Free
  • Homes that Last: How Architects Are Designing a Resilient Future

    Webinar

    Register Now
All Events