Coffou Cottage, Michigan City, Ind.

custom / 3,000 square feet or less / merit

2 MIN READ

brininstool + lynch, chicago

Privacy was the primary objective for this weekend retreat. A quarter-mile from Lake Michigan’s bustling southern shore—and only an hour from Chicago—it occupies a blissfully quiet meadow surrounded by woodland. Architect Brad Lynch heightened the sense of remove with a building that hides its lamp under—or perhaps behind—a bushel.

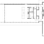
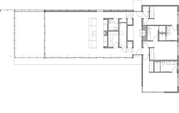
As one approaches, Lynch notes, “It seems almost like a hidden agricultural building.” A red cedar screen shelters the entry elevation, yielding only at the front door. Inside, a linear entry hall joins two barlike forms, one containing bedrooms and the other a kitchen/dining/living space that extends into a large screen porch.

By locating the fireplace in the entry hall, Lynch freed sight lines in the living space. Upon entering the latter, he reports, “Bang! All you see is the forest and greenery and nature.”

Our judges summed up their view in a single word: “Sweet.”


Project Details
principal in charge / project architect: Brad Lynch, Brininstool + Lynch, www.brininstool-lynch.com
general contractor: Tom Mulcahy, Mulcahy Builders, Michigan City, Ind.
project size: 2,800 square feet
site size: 1.5 acres
construction cost: $243 per square foot
photography: Christopher Barrett/Hedrich Blessing Product Details
bathroom and kitchen fittings: KWC America www.kwcamerica.com; bathroom fixtures: Kohler Co. www.kohler.com, TOTO USA www.totousa.com; cooktop, garbage disposer: KitchenAid www.kitchenaid.com; countertops: Stone Source www.stonetechonline.com; dishwasher: Bosch Home Appliances www.bosch-home.com; doors, windows: Vetter Windows & Doors www.vetterwindows.com; exterior siding: James Hardie Building Products www.jameshardie.com; flooring (ceramic tile/stone/concrete): Questmark Flooring www.questmarkflooring.com, Stone Source www.stonetechonline.com/main.htm; hardware: d line North America www.dline.com, Rockwood Manufacturing Co. www.rockwoodmfg.com, Schlage Lock Co. www.schlage.com; kitchen cabinets: Arclinea Chicago www.arclineachicago.com; kitchen fixtures: Blanco www.blancoamerica.com; lighting fixtures: B-K Lighting www.bklighting.com, Gammalux Systems www.gammalux.com, Juno Lighting www.junolighting.com, Nulite Lighting www.nulite-lighting.com; oven/range: GE Consumer & Industrial www.ge.com; paints/stains/wall finishes: Benjamin Moore & Co. www.benjaminmoore.com; refrigerator: Sub-Zero www.subzero.com

View the next 2010 rada winner.

About the Author

Bruce D. Snider

Bruce Snider is a former senior contributing editor of  Residential Architect, a frequent contributor to Remodeling. 

Upcoming Events

  • Design Smarter: Leveraging GIS, BIM, and Open Data for Better Site Selection & Collaboration

    Live Webinar

    Register for Free
  • Slate Reimagined: The Surprising Advantages of Slate Rainscreen Cladding

    Webinar

    Register Now
  • The State of Residential Design Today: Innovations and Insights from RADA-Winning Architects

    Webinar

    Register for Free
All Events