clean sweep

2 MIN READ

These homeowners wanted big remodeling bang on a moderate budget. Designer Kevin Alter suggested focusing their dollars on frequently used spaces such as the kitchen and master bath while choosing simple but effective upgrades (like new windows and fewer moldings) for other spaces. Alter kept construction costs to around $113 per square foot and still gave his clients a high-end look. He says he intentionally spent time finding cost-effective alternatives because “it’s really important to me to provide architecture to real people.”

Alter’s big savings secret? Get the builder invested in the project. “We often bring contractors or craftsmen on early to work with their skills,” he explains. “Contractors come up with solutions that are less expensive but result in the same detail.”

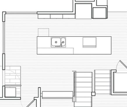
True to his word, Alter selected “beautiful, yet affordable” cherry veneer (used throughout the house) and worked with cabinetmaker-cum-general contractor Joseph Zambarano to design easily fabricated flat-panel doors in sizes that required fewer cuts. The cabinets look expensive, though, with their seemingly continuous-grain pattern across their fronts. Grooves cut around each door eliminate the need for hardware, resulting in another savings. Engineered quartz countertops in a peaceful blue-gray hue quiet the cherry’s lively grain. The countertop wraps around one end of the island and drops to the floor, adding interest but not big bucks.

Knocking down walls and integrating the entry foyer with the kitchen gave the owners more elbow room and an open relationship to other public areas. But it also raised concerns about how to keep things tidy. Alter responded with ample storage, spreading out elements a bit more than usual to reinforce an orderly appearance. “The owners like to cook but don’t mind taking that extra step from fridge to sink so another person has room to walk by,” he says. “Plus, lots of counter space lets someone sit and read the paper while someone else cooks.”

designer: Alterstudio, Austin, Texas

general contractor: Joseph Zambarano, Austin

resources: cooktop, dishwasher, and convection and steam ovens: Miele; countertops: U.S. Quartz Products (CaesarStone USA); faucets: KWC America (kitchen) and Dornbracht Americas (bath); refrigerator: KitchenAid; shower fixtures: Danze; sink: Blanco America; tile (bath): Lueders Limestone

About the Author

Shelley D. Hutchins

Shelley D. Hutchins, LEED AP, writes about residential construction and design, sustainable building and living, and travel and health-care issues.

Upcoming Events

  • Design Smarter: Leveraging GIS, BIM, and Open Data for Better Site Selection & Collaboration

    Live Webinar

    Register for Free
  • Slate Reimagined: The Surprising Advantages of Slate Rainscreen Cladding

    Webinar

    Register Now
  • The State of Residential Design Today: Innovations and Insights from RADA-Winning Architects

    Webinar

    Register for Free
All Events