Cedar Street Residence, Tempe, Ariz.

Renovation / Grand

2 MIN READ

colab studio
tempe

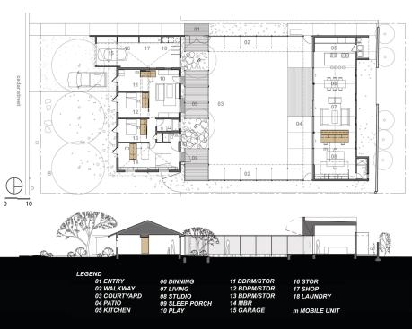
This addition to a 1950s ranch house encloses more space outdoors than indoors. Devoting the existing structure to a garage, four bedrooms, and a playroom, architects and owners Maria Salenger, AIA, and Matthew Salenger designed a separate kitchen/living/dining structure that also is the studio for their three-person firm. Joined by covered walkways and polycarbonate-clad garden walls, the two buildings frame a green courtyard that serves as a flexible outdoor living room. The configuration is novel in this suburban milieu, but the Salengers’ execution and detailing—make it eminently practical.

Light rusted steel columns support polycarbonate roofs for protection from the Arizona sun, while an operable polycarbonate awning controls south light at the kitchen/office structure. Reflective surfaces make the courtyard seem even larger than it is. Interiors are bone simple, divided largely with movable millwork “boxes” that easily are shifted to reconfigure spaces. “Sometimes we need just two bedrooms, and sometimes we need five,” Matthew Salenger explains. “When we’re entertaining, the office space disappears.”

Calling the outcome “amazing,” our judges remarked on how much the project accomplished while leaving the envelope of the existing house essentially untouched. More than a gut remodel, one noted, it serves as a model for “rebuilding your suburban lot to capitalize on your square footage.”


Click here to see all 2011 rada winners.

Project Credits

principal in charge / project architect / landscape designer: Maria Salenger, AIA, andMatthew Salenger, colab studio
general contractor: Rich Fairbourn, Build Inc., Phoenix
project size: 2,222 square feet
site size: 0.25 acre
construction cost: Withheld
photography: Bill Timmerman

product details

bathroom and kitchen cabinets: IKEA, www.ikea.com; bathroom fittings and fixtures: IKEA, www.ikea.com, Kohler, www.kohler.com; cooktop: Jenn-Air, www.jennair.com; dishwasher: Bosch, www.bosch.com; doors, skylights, and windows: Arcadia, www.arcadiainc.com; flooring (ceramic tile, stone, or concrete): Solomon, www.solomoncolors.com; garbage disposer: Waste King, www.waste-king.com; hvac equipment: Trane, www.trane.com; kitchen fittings: Grohe, www.grohe.com; kitchen fixtures: Franke, www.franke.com; lighting fixtures: Bega, www.bega-us.com; oven: Kenmore, www.kenmore.com; paints/stains/wall finishes: Sherwin-Williams, www.sherwin-williams.com; refrigerator: Whirlpool, www.whirlpool.com; roofing: Sprayfoam Southwest, www.roofingsouthwest.com; translucent wall/roof panels: PALRAM, www.palram.com

About the Author

Bruce D. Snider

Bruce Snider is a former senior contributing editor of  Residential Architect, a frequent contributor to Remodeling. 

Upcoming Events

  • Design Smarter: Leveraging GIS, BIM, and Open Data for Better Site Selection & Collaboration

    Live Webinar

    Register for Free
  • Slate Reimagined: The Surprising Advantages of Slate Rainscreen Cladding

    Webinar

    Register Now
  • The State of Residential Design Today: Innovations and Insights from RADA-Winning Architects

    Webinar

    Register for Free
All Events