B+W House, Minneapolis

Custom / 3,000 Square Feet or Less / Merit

1 MIN READ

b+w house, minneapolis
julie snow architects
minneapolis

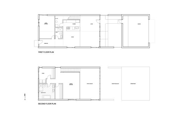
Architect Julie Snow, FAIA, and her clients conceived the concrete-enclosed ground level of this Minneapolis house after a visit to Donald Judd’s boxy sculptures in Marfa, Texas. Judd’s work inspired the walls that extend past the building envelope to surround a landscaped garden, providing privacy on a tight lot. “The project works with the scale of the neighborhood and the close proximity of the neighbors,” a judge said.

It’s not easy to achieve a sense of lightness in a concrete house, but Snow managed to do so by using wood and plaster for the upper level and by opening up the garden-facing wall with glass doors. This latter strategy basically doubles the first floor’s living space. The owners can even enjoy their garden during Minneapolis’ frigid winters, thanks to an outdoor firepit. “The house is an urban sanctuary,” Snow says.

View all 2012 RADA winners.


project credits

principal in charge: Julie Snow, FAIA, Julie Snow Architects; general contractor: Mike Wallein, Daiku Corp., Oakdale, Minn.; landscape architects: Matt Olson and Mike Brady, ROLU, rosenlof/lucas, Minneapolis; project size: 2,400 square feet; site size: 0.11 acre; construction cost: Withheld; photography: Dean Kaufman.


product details

bathroom fittings: Whitehaus, products.whitehauscollection.com; cooktop/refrigerator: Electrolux, www.electrolux.com; countertops: Hanwha Surfaces, www.hanwhasurfaces.com; exterior siding: Thermomass, www.thermomass.com; kitchen fittings/fixtures: BLANCO, www.blancoamerica.com; lighting fixtures: Prandina, www.prandina.it; paints/stains/wall finishes: Pratt & Lambert, www.prattandlambert.com; range hood: Jenn-Air, www.jennair.com; windows: Arcadia, www.arcadiainc.com

About the Author

Upcoming Events

  • Design Smarter: Leveraging GIS, BIM, and Open Data for Better Site Selection & Collaboration

    Live Webinar

    Register for Free
  • Slate Reimagined: The Surprising Advantages of Slate Rainscreen Cladding

    Webinar

    Register Now
  • The State of Residential Design Today: Innovations and Insights from RADA-Winning Architects

    Webinar

    Register for Free
All Events