ablution seclusion

1 MIN READ

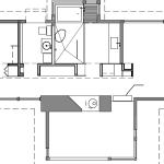
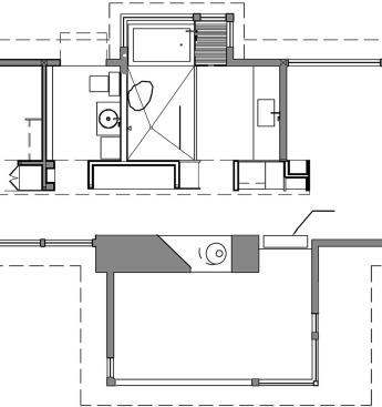
While connecting the kitchen to the rest of the house was a program priority, Prentiss had the opposite goal for the sleeping cabin’s bath. He wanted to create an escape from daily life. And so he did. Walking 100 yards through the woods from the main house to the cabin gives the homeowners time to transition to the “serene and clean experience” of this Japanese-inspired bathing oasis. “Everything in this space is a destination or about the process of getting to your destination,” Prentiss says.

No doubt the room’s primary destination is the stainless soaking tub, surrounded on three sides by glass and scenic views. Seamless glazing in one corner offers uninterrupted panoramas, while the other end has operable casements for capturing refreshing breezes. The dropped ceiling above the tub leaves just enough headroom for getting in and out, so bathers can nestle into their liquid perch.

A soffit across the top of the bath’s main wall, thick with built-in storage units, gives the room scale. Clear glass connects the soffit with the ceiling, so the bathing area doesn’t feel too closed in. A hemlock ceiling and fir cabinetry provide a warm contrast to the edgy, hygienic vibe of stainless steel fixtures and fittings, concrete flooring, and plaster-veneer walls. Notably, materials often intersect and overlap without touching, tempering the hard edges with a fluid quality.


View Corresponding ktichen.


About the Author

Shelley D. Hutchins

Shelley D. Hutchins, LEED AP, writes about residential construction and design, sustainable building and living, and travel and health-care issues.

Upcoming Events

  • Design Smarter: Leveraging GIS, BIM, and Open Data for Better Site Selection & Collaboration

    Live Webinar

    Register for Free
  • Slate Reimagined: The Surprising Advantages of Slate Rainscreen Cladding

    Webinar

    Register Now
  • The State of Residential Design Today: Innovations and Insights from RADA-Winning Architects

    Webinar

    Register for Free
All Events