“Front Flats demonstrates what can be accomplished at scale today when disparate technologies, which have been available, are integrated at a high level.” —Juror Bradford Prestbo, FAIA
Philadelphia’s Kensington neighborhood has been called the largest open-air narcotics market for heroin on the East Coast. But as the area steadily gentrifies, it seeks a different cause célèbre: net-zero living.
In 2017, local architecture/development firm Onion Flats purchased the lot across from its office, located along the elevated rail tracks between Fishtown, a neighborhood that had fully gentrified into a hip arts and dining destination, and Kensington, which was beginning to follow suit. Noticing that the area lacked affordable apartments, Onion Flats designed and built Front Flats, a four-story, multifamily residential prototype for economical, net-zero, resilient design. With 28 units—450-square-foot one-bedroom units and 320-square-foot studios—and rents below market rate, the development targets recent college graduates, service industry workers, and empty nesters fleeing the suburbs.
In a sense, Front Flats is mimetic. Photovoltaic panels wrap its roof and façades, advertising the energy savings happening within. “We treated the solar panels as a material in many ways,” says Onion Flats president and CEO Timothy McDonald. Suspended 24 inches beyond the building exterior, the translucent bifacial panels fulfill three functions: They let natural light pass through inside, provide occupants privacy, and generate power—enough for Front Flats to be at times net positive.

Hannah Yoon
Front Flats, in Philadelphia's Kensington neighborhood, by Onion Flats

Hannah Yoon
Detail of Front Flats connection to existing adjacent building

courtesy Onion Flats
High-performance packaged HVAC and dehumidification unit designed into kitchen cabinetry
Behind the PV arrays, prefabricated, super-insulated wall panels clad the building exterior—their specification reduced construction time by half. An innovative plumbing strategy placed water recirculation lines inside hot water supply lines, cutting heat loss by half, and decentralized the building’s hot water source with multiple air-source heat-pump water heaters—which are all electric, naturally. Each apartment comes with its own compact Minotair HVAC and dehumidification unit, which uses no outside condensers and circulates indoor air through antimicrobial and HEPA air filters. McDonald says this decentralized approach is simpler, more economical, and easier to maintain than conventional methods.
Perhaps the team’s biggest challenge was to design living units that would rent for less than their competitors, even though construction costs would be comparable. Front Flats’ high performance has proven a draw to younger generations—particularly when they learn utilities are included in the rent.
Still, filling out the units out proved challenging because the development opened just two months before the onset of the COVID-19 pandemic in the U.S. But following a summer social media campaign touting the energy recovery ventilators’ 24/7 air-scrubbing capabilities, the remaining units were gone within a month.

VHT Studios
Front Flats, Kensington, Philadelphia

courtesy Onion Flats
Detail of "solar veil" façade

courtesy Onion Flats
The multifunctional "solar veil" serves to produce energy and provide shading and privacy.

courtesy Onion Flats
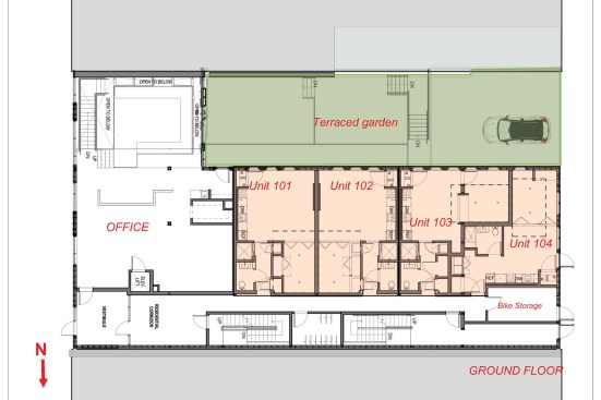
Ground floor plan: entry, office, apartments

courtesy Onion Flats
Linear bathroom organization with "corner door" closing off shower and living space; and transforming hallway into bathroom space

courtesy Onion Flats
Energy model of projected energy consumption and production and 12 months of actual energy consumption demonstrating a net-positive energy residential building.

courtesy Onion Flats
Prefabricated high-performance envelope panels with structure, air-barrier, rigid insulation, weather-resistant barrier and windows/doors installed

courtesy Onion Flats
Terraced courtyard; corten steel ground floor; bifacial solar photovoltaic façade above

courtesy Onion Flats
Basement office space overlooking terraced courtyard

courtesy Onion Flats
High-performance packaged HVAC and dehumidification unit designed into kitchen cabinetry
Project Credits
Project: Front Flats
Location: Philadelphia
Client/Owner: Onion Flats
Architects: Onion Flats Architecture, Philadelphia . Howard Steinberg, Timothy McDonald, Kara Haggerty-Wilson (project architects); Dan Addis, Jonathan Doran (project designers)
Architect of Record: Onion Flats
Structural Engineer: Larsen & Landis Structural Engineers
MEP Engineer: Kitchen & Associates Services
Civil Engineer: Ruggiero Plante Land Design
Geotechnical Engineer: GeoStructures, Inc.
Construction Manager: Josh Harris, Patrick McDonald
General Contractor: Onion Flats Construction
Leasing Agent and Chief Financial Officer: Johnny McDonald
Green Roof: GRASS, Inc. (Onion Flats Construction)
Solar Installation: GRASS (Onion Flats Construction)
Solar Design and Energy Monitoring: Celentano Energy Services . Ron Celentano
Certified Passive House Consultant: Onion Flats Architecture . Kara Haggerty Wilson
Hot Water Design: Gary Klein and Associates
Passive House Certification Agency: Passive House Institute U.S.
Size: 25,000 square feet
Cost: $4.5 million
Materials and Sources
Building Management Systems/Services: Celentano Energy Services
Exterior Wall Systems: Build Smart
Flooring: T&G Flooring (solid white OA)
HVAC: Minotair Ventilation
Insulation: Rockwool
Photovoltaics: CivicSolar, Inc.; Sunpreme Inc.
Plumbing/Water System: Rheem (hybrid pump water heater): Viega (pipe-in-pipe recirculation system)
Roofing: GRASS (green roof); Topline Construction (TPO roofing membrane)
Software: Autodesk Revit
Structural System: Wood
Windows/Curtainwalls/Doors: Alpen High Performance Products
-
R+D Award: Long Range Glass
A team from the University of Michigan and Arcgeometer is shaping glass for broader acoustic and optic qualities.
-
R+D Award: Tangential Timber
A team from After Architecture and the University of Virginia School of Architecture proposes a construction application for non-linear wood through the development of a digital fabrication workflow.
-
R+D Award: V-Soleil
Architecture Research Office collaborated with Heintges Consulting Architects & Engineers to develop V-Soleil, a curtain-like terra-cotta brise soleil inspired by the organic forms.
-
R+D Award: Tortuca
A collaborative research team initiated and led by Masoud Akbarzadeh, the director of the Polyhedral Structures Laboratory and assistant professor of architecture at the Weitzman School of Design, created an ultra-thin hollow glass structure, which spans 10.5 feet.
-
R+D Award: E-games-lab—eFargo
A team from the University of Minnesota College of Design and North Dakota State University created an interactive game to help reduce carbon emissions and energy use to fight climate change.
-
R+D Award: Kaleidoscope—Embodied Carbon Design Tool
Payette created a simple and straightforward tool that allows designers to compare the embodied carbon across a range of façade and interior systems.