Private Residence, Sebastopol, Calif.

Merit Award / Less Than 3,000 Square Feet

1 MIN READ

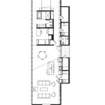
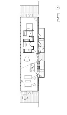
When architects Mary Griffin and Eric Haesloop first saw the land for this northern California project, they knew just how to site the house. They placed it over a slight dip in the landscape, so that it acts as a bridge between two existing stands of redwoods. Decks at either end flow into landscaped paths that lead to a pool and a garage/office. “I like the way it sits lightly on the land,” said one judge.

By pulling the decks to the sides of the house, Griffin and Haesloop were able to free up the long, glass rear façade to take in mountain vistas. “There’s no deck furniture between you and the view,” Griffin explains. A glass-sided pop-up above that wall connects the view with the home’s entryway and helps define the dining area in the open floor plan. The opposite wall provides extra structural support while holding floor-to-ceiling bookcases, as well as the main portion of a galley kitchen.

Project Credits
Entrant/Architect:
Turnbull Griffin Haesloop Architects, San Francisco
Builder:Sawyer Construction, Sebastopol, Calif.
Landscape architect:Landscape Office, San Rafael, Calif.
Structural engineer: Fratessa Forbes Wong, Oakland, Calif.
Living space: 1,800 square feet
Site: 2.5 acres
Construction cost: Withheld
Photographer: David Wakely Photography

About the Author

No recommended contents to display.

Upcoming Events

  • Design Smarter: Leveraging GIS, BIM, and Open Data for Better Site Selection & Collaboration

    Live Webinar

    Register for Free
  • Slate Reimagined: The Surprising Advantages of Slate Rainscreen Cladding

    Webinar

    Register Now
  • The State of Residential Design Today: Innovations and Insights from RADA-Winning Architects

    Webinar

    Register for Free
All Events