The Ubuntu Center

Port Elizabeth, South Africa / Field Architecture

2 MIN READ

Site
A flat and bare plot in Port Elizabeth, South Africa, a major seaport.

Program
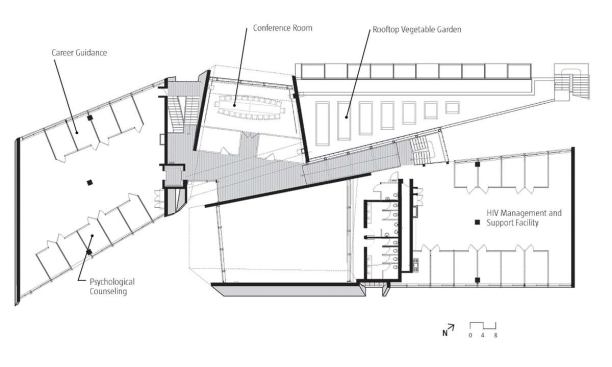
A $6 million, 20,980-square-foot community center featuring an HIV and tuberculosis clinic, a general wellness center, career guidance and computer facilities, a soup kitchen, and multipurpose space.

Solution
Field Architecture created a series of connected, trapezoidal forms that house education, health, and social services for the 400,000 residents of Zwide Township, one of the ghettos where the South African government forcibly relocated nonwhites during the apartheid era. Working within a two-story height limit, the architects deployed a palette of construction materials including a cast-in-place concrete shell and an exterior sunscreen made from gum poles, a common local building material that helps make the center’s unconventional form culturally accessible to the community. “The complex of forms is sophisticated and articulate while nonetheless being friendly,” Henry Urbach noted. Eric Höweler agreed, adding, “It is extremely elegant, but the formal moves are very instrumental.”

While fulfilling the center’s service-based mission, Field Architecture attempted to minimize the potential social stigmatization of users: the areas for HIV/tuberculosis testing and treatment, for example, are directly adjacent to community areas such as the cafeteria and the theater and multipurpose hall. “It makes an urban space, a collecting space, a place you would want to walk to even if you weren’t going for an appointment,” said Georgeen Theodore.

The jury especially appreciated the project’s public, architectural recognition of HIV and AIDS. “This is particularly relevant for South Africa, where there has been a denial of the AIDS crisis,” Lars Lerup said. “So this is radical, both in its form and its placement in a community where AIDS is a real problem.”

Project Credits
Project: The Ubuntu Center, Port Elizabeth, South Africa
Client: Ubuntu Education Fund
Architect: Field Architecture, Palo Alto, Calif.—Stan Field, Jess Field (principals); Andy Lin, Jeff Pilotte, Mark Johnson (project team)
Project Manager/Local Architect: John Blair/NOH Architects
Contractor: SBT Construction
Structural Engineer: ILISO Consulting
Quantity Surveyor: Rousseau Probert Elliott

About the Author

Katie Gerfen

Katie Gerfen is the former editor-in-chief of ARCHITECT, as well as the former editor of Custom Home.

No recommended contents to display.

Upcoming Events

  • Design Smarter: Leveraging GIS, BIM, and Open Data for Better Site Selection & Collaboration

    Live Webinar

    Register for Free
  • Slate Reimagined: The Surprising Advantages of Slate Rainscreen Cladding

    Webinar

    Register Now
  • The State of Residential Design Today: Innovations and Insights from RADA-Winning Architects

    Webinar

    Register for Free
All Events