John H. Daniels Faculty of Architecture, Landscape, and Design

Office dA with Adamson Associates Architects

2 MIN READ

What If You Actually Could Teach an Old Building Some New Tricks?
John H. Daniels Faculty of Architecture, Landscape, and Design / Office dA with Adamson Associates Architects

Site
A 1909 masonry building, designed by Burke, Horwood & White, on the University of Toronto campus.

Program
A new skin that reconfigures the building entry sequence and new spaces added onto and within the original building.

Solution
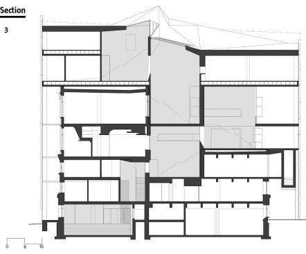
The building that houses the university’s architecture school sits on a corner site at the edge of campus, but it doesn’t engage with the streetscape effectively. Office dA (with architect of record Adamson Associates Architects) solved this problem with a skin of glass panels that reorients the entry sequence to the corner of two major streets, giving the building more prominence on both. At the entry point, the skin lifts to reveal the original building, and a combined stairway and ramp that snakes to the original main entrance. The double-skin system has insulated glass units that are engineered to optimize thermal performance.

Behind the new façade is an addition to the existing five-story building that adds another two stories of studio and library space. “It maximizes the density by building up. It’s a good solution,” juror Stan Allen said. Skylights installed in a green roof let ample daylight into the core, and a series of double-height flexible spaces are added onto and retrofitted into the original building. Usable for critiques and lectures and as lounges, these spaces also provide staircases, allowing for increased social interaction between staff and students, creating a greater sense of community than the existing building allows.

Project Credits

Project John H. Daniels Faculty of Architecture, Landscape, and Design, Toronto
Client University of Toronto
Design Architect Office dA, Boston—Nader Tehrani (design principal, principal in charge); Monica Ponce de Leon (design principal); Daniel Gallagher (project architect); Lisa Huang (project coordinator); Arthur Chang, Melissa Harlan, Natsuki Meada, Harry Lowd, Remon Alberts, Catie Newell, Rich Lee, Jonathan Palazzolo, Masoud Akbarzadeh, Sulaiman Albader, Abrar Al-Ebrahim, Jeff Dee, Brandon Clifford, Abdulwahab Almazeedi, Wadha Al-Massad, Ebrahim Alawadhi, Suzy Costello (design team)
Architect of Record Adamson Associates Architects—David Jansen (principal in charge); Ann Daniel, Dominic Virdo (project team)Structural Engineer Halcrow Yolles—Barry Charnish
Sustainability Consultant Atelier Ten—Nico Kienzl, John An
Mechanical Engineer The Mitchell Group—Phil Bastow
Electrical Engineer Mulvey & Banani—Joe Berardi
Landscape Architect Coen + Partners—Shane Coen (principal in charge); Stephanie Grotta, Bryan Kramer (project team)
Code Consultant Leber|Rubes—Dave Syrett
Elevator Consultant Soberman Engineering—Jon Soberman
Size 71,365 square feet (existing), plus 20,990 square feet (new addition)

About the Author

Katie Gerfen

Katie Gerfen is the former editor-in-chief of ARCHITECT, as well as the former editor of Custom Home.

No recommended contents to display.

Upcoming Events

  • Design Smarter: Leveraging GIS, BIM, and Open Data for Better Site Selection & Collaboration

    Live Webinar

    Register for Free
  • Slate Reimagined: The Surprising Advantages of Slate Rainscreen Cladding

    Webinar

    Register Now
  • The State of Residential Design Today: Innovations and Insights from RADA-Winning Architects

    Webinar

    Register for Free
All Events