Oberfeld Residence, Los Angeles

Custom Home / More Than 5,000 Square Feet

2 MIN READ

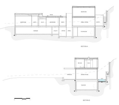
This custom home’s narrow hillside site posed a challenge for Studio Pali Fekete architects (SPF:a). The property had a 16-foot height limit, which was too low for the two-story residence the owner wanted. Luckily, though, that owner happens to be top-notch custom builder Mauricio Oberfeld, who is accustomed to pulling off hard-to-manage feats. He and SPF:a’s Zoltan E. Pali decided to lower the buildable area by 6 feet, thus creating a bit more headroom. They then suspended the property’s pool over the hillside to create a bigger deck area. The drama doesn’t stop once you enter the house: a glass-and-concrete-enclosed entry foyer (shown on page 11) purposely confuses the boundary between indoors and outdoors. “The idea is that you actually haven’t come in yet, even though you’re in,” Pali says. The judges felt the project balanced daring design with livability. “It’s a functional take on modern architecture,” one juror said.


Entrant/Architect: Studio Pali Fekete architects (SPF:a), Culver City, Calif.; Builder: Dugally Oberfeld, Bel Air, Calif.; Landscape architect: Andrea Cochran Landscape Architecture, San Francisco; Interior designer: Simon Hamui Interiors, Mexico City; Living space: 9,800 square feet; Site: 0.7 acre; Construction cost: Withheld; Photographer: Bruce Damonte Photography.


Resources: Bathroom fittings: WETSTYLE, www.wetstyle.ca; Bathroom fixtures: Boffi, www.boffi.com, Hansgrohe, www.hansgrohe-usa.com; Cooktop: Gaggenau, www.gaggenau.com; Countertops: Caesarstone, www.caesarstoneus.com; Dishwasher: Miele, www.mieleusa.com; Exterior siding: SWISSPEARL, www.swisspearl.com; Flooring (carpet): Karastan, www.karastan.com, Bentley Prince Street, www.bentleyprincestreet.com; Flooring (wood): Mafi, www.mafi.at/us/index/; Garbage disposal: InSinkErator, www.insinkerator.com; Hardware: Valli & Valli, www.vallivalli-us.com; HVAC equipment: York, www.york.com, Carrier, www.residential.carrier.com; Kitchen cabinets: Gruppo Del Tongo, www.gruppodeltongo.com; Kitchen fittings: Franke, www.franke.com, Mountain, www.mountainplumbing.com; Kitchen fixtures: BLANCO, wwwblancoamerica.com; Lighting fixtures: Niche Modern, www.nichemodern.com, Moooi, www.moooi.com; Range: Wolf, www.subzero-wolf.com; Paints/stains/wall finishes: Farrow & Ball, www.farrow-ball.com; Refrigerator: Thermador, www.thermador.com; Skylights: Lane-Aire, www.lane-aire.com; Windows: Fleetwood, www.fleetwoodusa.com

About the Author

No recommended contents to display.

Upcoming Events

  • Design Smarter: Leveraging GIS, BIM, and Open Data for Better Site Selection & Collaboration

    Live Webinar

    Register for Free
  • Slate Reimagined: The Surprising Advantages of Slate Rainscreen Cladding

    Webinar

    Register Now
  • The State of Residential Design Today: Innovations and Insights from RADA-Winning Architects

    Webinar

    Register for Free
All Events