Natural Talent Design Contest Finalists Announced

2 MIN READ

Late in August, the U.S. Green Building Council (USGBC) and the Salvation Army’s EnviRenew program in New Orleans announced the finalists of the 2010 Natural Talent Design Competition. The annual contest offers students and young design and building professionals the chance to apply sustainable design concepts to community building projects. This year’s competition focused on the ongoing efforts to rebuild New Orleans.

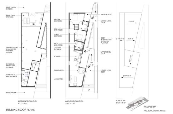
Size, sustainability, affordability, and aging-in-place all were important elements of the competition. Entrants were challenged to design an 800-square-foot home for an elderly resident in New Orleans’ Broadmoor neighborhood that meets the LEED for Homes Platinum requirements and is ADA compliant, with a projected cost of no more than $100,000. Designs also had to demonstrate long-term and short-term affordability, provide a high quality of life, and demonstrate replicable strategies for affordable, efficient, and low-impact design.

Four concepts—three designed by teams and one by an individual—were selected from a field of 49 semi-finalists by the competition jurors:

Emerging Professional Team: The Little Easy, by FreeGreen.com, USGBC Connecticut Chapter, and ZeroEnergy Design, USGBC Boston Chapter.
Emerging Professional Team: RAMPed Up, by Buro Happold Consulting Engineers and Rogers Marvel Architects, Urban Green Council of the USGBC New York City Chapter.
Student Finalist Team: E.A.S.Y. House, by Wuijoon Ha, architecture student, Carnegie Mellon University, USGBC Green Building Alliance Pittsburgh.
Student Finalist Team: Broadmoor Residence, by Greenboy Design, USGBC Hawaii Chapter.

The four designs will be built by EnviRenew and Broadmoor Development Corp., as part of EnviRenew’s large-scale green home building program in New Orleans. Each home will then enter the competition’s measurement and verification phase and will be graded based on energy efficiency, water reuse, occupant comfort, and indoor air quality, as well as their affordability, achievement of LEED Platinum certification, and adherence to the established budget.

One design will be selected as the winner and announced Nov. 16–19 during the Greenbuild International Conference and Expo in Chicago.

Complete design boards, renderings, and concept details of the competition winners may be viewed on the Open Architecture Network: Little Easy, RAMPed Up, E.A.S.Y. House, and Broadmoor Residence.

About the Author

No recommended contents to display.

Upcoming Events

  • Design Smarter: Leveraging GIS, BIM, and Open Data for Better Site Selection & Collaboration

    Live Webinar

    Register for Free
  • Slate Reimagined: The Surprising Advantages of Slate Rainscreen Cladding

    Webinar

    Register Now
  • The State of Residential Design Today: Innovations and Insights from RADA-Winning Architects

    Webinar

    Register for Free
All Events