Falmouth, Mass., Residence

Custom Kitchen / Grand Award

2 MIN READ

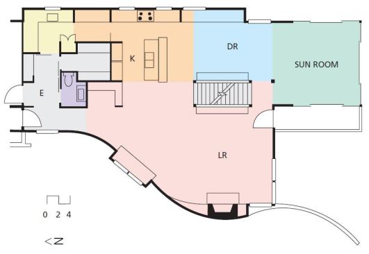
Designing for his family of four, Mark Hutker made the kitchen the focal point of their new house. With two busy teenagers and a firm whose offices are separated by an hour-long ferry ride, he wanted to encourage family togetherness at home even when everyone had a different agenda. The resulting kitchen acts as an attractive yet functional hub that relates visually and acoustically to all living spaces. “And surprisingly the kitchen looks about like it does in the photos all of the time,” chuckles the architect and homeowner.

In order to achieve (and maintain) that picturesque appearance, Hutker divided the kitchen into three work areas and gave each one a distinct look. “My goal was to create vignettes that began and ended in a definite way,” he says. The breakfast station with fridge, coffee maker, drawers of dishes, and a cereal cabinet recesses into an ash wood core. The core also contains a pantry, coat closet, laundry, and a computer work area with an opening into the kitchen so that when the kids do homework “their parents can see their pain.” The cooking area pops out beyond exterior walls, letting upper cabinets with appliance garages below sit sideways to leave room for big, east-facing windows. Meal prep and cleanup take place at the kitchen island, where a raised custom table hides messes.

Project Credits
Entrant/Architect/Interior designer:
Hutker Architects, Vineyard Haven, Mass.
Builder: Carpenters & Company, Vineyard Haven
Project size: 3,000 square feet
Construction cost: $220 a square foot
Photographer: Brian Vanden Brink

Resources: Bathroom cabinets: Cape Cod Fabrications; Bathroom plumbing fittings/fixtures: Grohe and Kohler; Dishwasher: Miele; Entry doors/patio doors/windows: Eagle; Fireplace: Isokern; Garage doors: Overhead Door; Hardware: Baldwin and Emtek; Interior doors: Trustile; Kitchen cabinets: Poggenpohl; Kitchen plumbing fittings/fixtures: Elkay and Grohe; Oven: Fisher Paykel; Paints: Cabot; Refrigerator: Sub-Zero; Undercounter beverage center: U-Line; Washer/dryer: Miele.

About the Author

Shelley D. Hutchins

Shelley D. Hutchins, LEED AP, writes about residential construction and design, sustainable building and living, and travel and health-care issues.

No recommended contents to display.

Upcoming Events

  • Design Smarter: Leveraging GIS, BIM, and Open Data for Better Site Selection & Collaboration

    Live Webinar

    Register for Free
  • Slate Reimagined: The Surprising Advantages of Slate Rainscreen Cladding

    Webinar

    Register Now
  • The State of Residential Design Today: Innovations and Insights from RADA-Winning Architects

    Webinar

    Register for Free
All Events