Desert Panorama House, La Quinta, Calif.

Custom Home / More Than 5,000 Square Feet

2 MIN READ

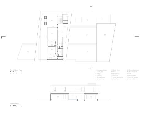
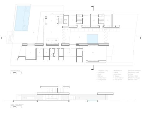
The Desert Panorama House stands atop a knoll in the mountain-ringed Coachella Valley, and it responds to the scale of the landscape with expansive gestures of its own. Two massive stone walls describe the east-west view axis, supporting equally substantial white-stucco floor and roof elements. “We’re framing spaces with these parallel walls,” explains architect Austin Kelly. In addition to directing attention toward the distant peaks, “they feel kind of primitive … related directly to the rock in the mountains.” Floor-to-ceiling operable glass panels—including a 90-foot-long sliding assembly that defines the north and west boundaries of the kitchen/dining/living room—bridge the building’s solid elements without compromising their monolithic independence. White terrazzo spans from indoors to outdoors, extending the floor planes toward the horizon. The jury admired this “interlacing of exterior and interior,” calling the building “brilliant in its flow of space.” Said one judge, “its translucence with the landscape is amazing.”­


Entrant/Architect/Interior designer: XTEN Architecture, Culver City, Calif.; Builder: M.A.P. Development, Manhattan Beach, Calif.; Landscape architect: Pamela Burton & Co., Santa Monica, Calif.; Living space: 7,900 square feet; Site: 0.87 acre; Construction cost: Withheld; Photographer: Steve King.


Bathroom and kitchen cabinets: Modulo Cucine, www.modulocucine.com; Bathroom fittings: Gessi, www.gessi.it, Hansgrohe, www.hansgrohe-usa.com; Bathroom fixtures: Agape, www.agapedesign.it, Hansgrohe; Cooktop: Viking, www.vikingrange.com; Dishwasher, oven, and refrigerator: Miele, www.mieleusa.com; Doors: Fleetwood, www.fleetwoodusa.com; Garbage disposer: Insinkerator, www.insinkerator.com; Hardware: Ashley Norton, www.ashleynorton.com, Soss Hinges, www.soss.com; HVAC equipment: Mitsubishi, www.mehvac.com, Anemostat, www.anemostat.com; Kitchen fittings: Dornbracht, www.dornbracht.com; Kitchen fixtures: Julien, www.julien.ca; Lighting fixtures: RSA, www.cooperindustries.com, Se’Lux, www.selux.us; Paints/stains/wall finishes: Benjamin Moore, www.benjaminmoore.com; Windows: Metal Window Corp., www.metalwindowcorp.com

About the Author

Bruce D. Snider

Bruce Snider is a former senior contributing editor of  Residential Architect, a frequent contributor to Remodeling. 

No recommended contents to display.

Upcoming Events

  • Build-to-Rent Conference

    JW Marriott Phoenix Desert Ridge

    Register Now
  • Reimagining Sense of Place: Materiality, Spatial Form, and Connections to Nature

    Webinar

    Register for Free
  • Homes that Last: How Architects Are Designing a Resilient Future

    Webinar

    Register Now
All Events