Custom Home of the Year

Barrio Historico House, Tucson, Ariz.

2 MIN READ

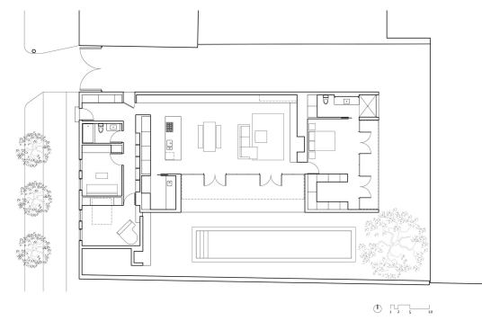
Passers-by in Tucson’s Barrio Historico district won’t miss a beat when they see our 2012 Custom Home of the Year, but it’s still a showstopper. Almost within arm’s reach of the sidewalk, its stucco façade follows the centuries-old pattern of the neighborhood, quietly supporting the streetscape while barely hinting at the riches that lie within. “We’ve always been interested in courtyard houses,” says architect Kathy Hancox, “and we love that about the barrio. You never quite know what’s behind the entry door; there’s that mystery.” Hancox and partner Michael Kothke played skillfully on that mystery, creating a private world whose austere tranquility is only heightened by the lively public realm just beyond its walls.

Commissioned by clients relocating from the East Coast, the house carefully filters input from the outside world, buffering the sights and sounds of the street with a suite of office and guest spaces that spans the front of the building. “That sets up the foil for this ‘wow’ moment,” Kothke explains. A short entry hall opens onto the house’s main living space, a brilliantly daylit great room that incorporates an elegantly austere side courtyard and lap pool. “Once you’re inside,” he says, “it’s about the sky and the pool and the changing light conditions.”

The control and manipulation of natural light figures prominently throughout the house. A narrow skylight washes the living area’s windowless north wall, balancing illumination from the courtyard. Deep glass soffits shelter patios at the living room and the rear-facing master bedroom, while creating soft reflections overhead. The white stucco exterior takes on the color of the sky. “At dusk, before the sky turns color, the walls almost dissolve into the sky,” Hancox says. “At other times, they can be hot pink, or they can be blue.” In a bravura move, the architects captured a rooftop vista with a periscope—yes, a periscope—that projects an image of the distant Tucson mountains onto a mirror that spans the width of the kitchen.

The house’s deft balance of traditional form and modern application, subtle detail and dramatic gesture made our jury’s deliberations an agreeable affair. “The contextual fabric really fits the street,” said one judge, “then you go inside and it just opens up. As far as regional modernism goes, it’s great.” Another called it, “amazing. You would never guess from the exterior what’s going on in there.”

About the Author

Bruce D. Snider

Bruce Snider is a former senior contributing editor of  Residential Architect, a frequent contributor to Remodeling. 

No recommended contents to display.

Upcoming Events

  • Design Smarter: Leveraging GIS, BIM, and Open Data for Better Site Selection & Collaboration

    Live Webinar

    Register for Free
  • Slate Reimagined: The Surprising Advantages of Slate Rainscreen Cladding

    Webinar

    Register Now
  • The State of Residential Design Today: Innovations and Insights from RADA-Winning Architects

    Webinar

    Register for Free
All Events