Travis Dubreuil
2012 Bath/Merit: 73rd Street Penthouse, New York, by Turett Coll… 2012 Bath/Merit: 73rd Street Penthouse, New York, by Turett Collaborative Architects, New York Located beneath a large skylight, this glass-box master bath serves as a natural lighting fixture.
Travis Dubreuil
Electric privacy glass permits modesty at the touch of a switch.
Travis Dubreuil
The bath separates the master bedroom from a private study, but … The bath separates the master bedroom from a private study, but its transparency creates the sense of a single continuous space.
Travis Dubreuil
A wall tiled with Vals stone, quarried in Switzerland, rises thr… A wall tiled with Vals stone, quarried in Switzerland, rises through two floors of the apartment.
Travis Dubreuil
A carved stone lavatory cantilevers from the tiled wall.
Travis Dubreuil
The solid-surface floor folds down, into a sunken tub/shower, an… The solid-surface floor folds down, into a sunken tub/shower, and up, forming a pedestal that holds plumbing controls and a tray for soap and shampoos.
Courtesy Turett Collaborative Architects
Courtesy Turett Collaborative Architects
Art Gray
2012 Kitchen/Merit: Appleton Living, Venice, Calif., by Minarc, … 2012 Kitchen/Merit: Appleton Living, Venice, Calif., by Minarc, Santa Monica, Calif. With upper cabinets limited to a single end wall, the kitchen opens to light and views along its two outside walls.
Art Gray
Two long counters serve as the room’s work surfaces. The steel… Two long counters serve as the room’s work surfaces. The steel stair casts a “shadow” of smooth stones.
Art Gray
The stair nearly disappears in profile.
Art Gray
A wall of sliding glass doors opens the kitchen to a covered ver… A wall of sliding glass doors opens the kitchen to a covered veranda.
Art Gray
2012 Bath/Merit: Appleton Living, Venice, Calif., by Minarc, Sa… 2012 Bath/Merit: Appleton Living, Venice, Calif., by Minarc, Santa Monica, Calif. A walnut millwork “box” separates the bath from the master bedroom.
Art Gray
A floating partition shields the shower and toilet areas.
Art Gray
Glass doors and a glass clerestory surround the millwork element… Glass doors and a glass clerestory surround the millwork element.
Art Gray
The bath opens onto a private courtyard. With four children in t… The bath opens onto a private courtyard. With four children in the family, the clients also take in rescue dogs.
Michael Biondo
2012 Kitchen/Merit: Neutra Glen Residence, Stamford, Conn., by J… 2012 Kitchen/Merit: Neutra Glen Residence, Stamford, Conn., by Joeb Moore + Partners, Greenwich, Conn. This remodeled kitchen represents an effort to project the vocabulary of Richard Neutra—the house’s original architect—into the present day.
Michael Biondo
The project clearly distinguishes between new and restoration.
Michael Biondo
Stainless steel columns—so slender that they are practically t… Stainless steel columns—so slender that they are practically two-dimensional—mark the path of the partition that isolated the original kitchen from the living and dining areas.
Michael Biondo
Knife-edge stainless steel counters top the gloss-white base cab… Knife-edge stainless steel counters top the gloss-white base cabinets. The uppers are acid-washed steel.
Michael Biondo
The new columns are nearly invisible when viewed head-on.
Michael Biondo
Blackened steel plate wraps the doorway to the house’s back ha… Blackened steel plate wraps the doorway to the house’s back hall.
Courtesy Joeb Moore + Partners
The original kitchen.
Courtesy Joeb Moore + Partners
The kitchen in axonometric view.
Dominique Vorillon
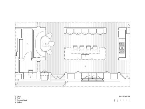
Oriented toward a family room/screening room and open to an outd… Oriented toward a family room/screening room and open to an outdoor pool deck, this kitchen balances illumination with a large skylight over its work area.
Dominique Vorillon
With its walls devoted to storage cabinets and a concealable hom… With its walls devoted to storage cabinets and a concealable home office, the kitchen concentrates counter space on two large islands.
Dominique Vorillon
Cooking and dining areas enjoy a clear view of the screen.
Dominique Vorillon
A view of the kitchen/family room from the pool deck.
Josh Russell
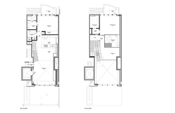
The floor plan.
Dan Rockhill
The new bath revives the spirit of an original porch that had be… The new bath revives the spirit of an original porch that had been walled in since the arrival of indoor plumbing.
Dan Rockhill
Simple forms, utilitarian components, and abundant south light l… Simple forms, utilitarian components, and abundant south light lend this new bath an astringent clarity.
Dan Rockhill
The house before the project began.
Dan Rockhill
The lavatory was fabricated from salvaged agricultural equipment… The lavatory was fabricated from salvaged agricultural equipment. The fittings were an eBay bargain. Windows are all salvaged warehouse sash.
Dan Rockhill
The Little Farmhouse is surrounded by acres of protected open la… The Little Farmhouse is surrounded by acres of protected open land.
Courtesy Rockhill and Associates
Floor plan
Asa Gilmore
Changes in cabinet depth indicate a subtle shift from living spa… Changes in cabinet depth indicate a subtle shift from living space to kitchen.
Asa Gilmore
The ktichen is tucked beneath an exposed steel staircase.
Asa Gilmore
The metal stair leads from the second-floor main living space to… The metal stair leads from the second-floor main living space to a reading loft. Custom cabinetry throughout the home stores kitchen and laundry supplies, as well as other secrets.
Asa Gilmore
The homeowners’ program demanded a minimalist space with an ho… The homeowners’ program demanded a minimalist space with an honest expression of its structure and materials.
Asa Gilmore
A Murphy bed adds master suite to the list of uses already in pl… A Murphy bed adds master suite to the list of uses already in play for this open kitchen/dining/living space.
Asa Gilmore
Beyond the sleek Murphy bed, etched glass pocket doors screen th… Beyond the sleek Murphy bed, etched glass pocket doors screen the combination bath/laundry/closet in this hardworking space.
Asa Gilmore
Hawkins & Associates
The project's floor plans.
Lorin Klaris Photography
2009 Kitchen/Merit: Riverbank Residence, Stamford, Conn., by Joe… 2009 Kitchen/Merit: Riverbank Residence, Stamford, Conn., by Joeb + Partners, Architects, Greenwich, Conn. Striking contrasts —ebonized floors and white cabinets, a mobile island and fixed appliances, contemporary stainless steel and traditional wood —punctuate the elegant room.
Lorin Klaris Photography
The vertical lines of a custom leather banquette are echoed in t… The vertical lines of a custom leather banquette are echoed in the elegantly slim legs of the round breakfast table.
David Sundberg/Esto www.esto.com
Joeb + Partners, Architects
The kitchen’s floor plan.
Minarc
Minarc
The kitchen wall is solid black lava stone. The material reflect… The kitchen wall is solid black lava stone. The material reflects Iceland’s volcanic topography and suggests a kind of black box theater for the owner’s live/work space.
Minarc
The stainless steel countertop along the room’s textured stone… The stainless steel countertop along the room’s textured stone wall lifts to reveal a recessed sink and cooktop.
Minarc
Minarc
Minarc
A black lava rock detail flows unobtrusively from wall to floor … A black lava rock detail flows unobtrusively from wall to floor in the kitchen and bathroom.
Minarc
The project’s floor plan.
Thomas M. Barwick
By night, the glowing bath cube becomes a destination for guests… By night, the glowing bath cube becomes a destination for guests in need and a night-light for owners.
Thomas M. Barwick
By day, the floor's river light projects watery reflections thro… By day, the floor's river light projects watery reflections throughout the room.
chadbourne + doss architects
Paul Burk
Paul Burk
Clint Larkan/www.cmlds.com
The shower’s parallel “wet” and “dry” benches allow a … The shower’s parallel “wet” and “dry” benches allow a caretaker to stay dry while helping the client’s son bathe.
Clint Larkan/www.cmlds.com
The room’s dark Wenge wood cabinets and backlit canopies provi… The room’s dark Wenge wood cabinets and backlit canopies provide a stark contrast to the muted beiges and grays of the bath’s slip-resistant porcelain tile and fireslate countertops, sinks, and benches. The fixtures and fittings were chosen for their simp
John Todd
Floors and raised counter are bamboo, and the cabinetry is made … Floors and raised counter are bamboo, and the cabinetry is made of verticalgrain white fir veneer from a certified source and a low-formaldehyde MDF substrate.
John Todd
Interior specs were guided by the clients’ green leanings.
John Todd
The 24-inch-wide refrigerator is a high-efficiency European mode… The 24-inch-wide refrigerator is a high-efficiency European model with a freezer on the bottom.
Bill Timmerman
Part of the bath’s serene solution is ample storage.
Bill Timmerman
Wide drawers with recessed aluminum handles hold quotidian bathr… Wide drawers with recessed aluminum handles hold quotidian bathroom supplies; glass shelves behind a stainless steel shower screen house shampoo and soap.
Jeffrey Jacobs
Cutout handles and casters on birch plywood cabinetry elevate bu… Cutout handles and casters on birch plywood cabinetry elevate budget-conscious material in this architect’s own kitchen. A splurge on Brazilian cherry flooring underscores the kitchen zone within the larger, maple-floored room.
Jeffrey Jacobs
A splurge on Brazilian cherry flooring underscores the kitchen z… A splurge on Brazilian cherry flooring underscores the kitchen zone within the larger, maple-floored room.
Cameron Campbell
A painted MDF base raises the vessel lav off the lower-than-stan… A painted MDF base raises the vessel lav off the lower-than-standard countertop height and up to a more comfortable position.
Cameron Campbell
The molding, trim, and wood floors in the bath match the Craftsm… The molding, trim, and wood floors in the bath match the Craftsman look found throughout the home, while sleek materials, such as highly polished black granite, glass, brushed stainless steel, and slate, make the tub/shower/sink combo contrastingly contem
Cameron Campbell
A long trench drain with a perforated stainless cover prevents w… A long trench drain with a perforated stainless cover prevents water overflow in the open shower.
Cesar Rubio
Black granite, laminated glass, and oak floors stained black cre… Black granite, laminated glass, and oak floors stained black create elegant, ethereal spaces that float beneath the chaotic roofscape of this Victorian attic.
Cesar Rubio
Kitchens and baths continue to be some of the most popular rooms where industry pros and homeowners alike focus their attention. It’s no wonder, then, that the kitchen and bath categories in our annual residential architect Design Awards tend to foster some of the toughest competitions and most animated discussions among judges. We’ve assembled past winners in these contentious categories to show you projects that have earned the highest regard of your peers. These winning kitchens and baths differ vastly in style but are all filled with elegant touches and clever innovations including lavish multipurpose kitchen islands, hidden-away appliances, salvaged farm equipment bath fixtures, and movie-set quality lighting design.
Enjoy perusing the RADA kitchen and bath winners from 2004 through 2012. And if you have a kitchen or bath that stands up to these award-winning designs, entries are being accepted for our annual Residential Architect Design Awards competition.