University of Oregon John E. Jaqua Academic Center for Student Athletes

Eugene, Ore.

2 MIN READ

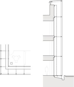
Zimmer Gunsul Frasca Architects • The jury was tiring of the all-glass building trend when it paused on the University of Oregon John E. Jaqua Academic Center for Student Athletes. Zimmer Gunsul Frasca Architects transformed a parking lot on the edge of campus into a glazed structure with four nearly identical façades situated in a reflecting pool. A custom curtain-wall assembly—a layer of monolithic glass separated from the interior insulating glass by a stainless steel screen—wraps the perfectly square floor plan.

Crystalline and elegant on the outside, the project offers 40,000 square feet of state-of-the-art learning facilities on the inside: an auditorium, study areas, offices, a library, a computer lab, and student lounges. Natural light bathes the carefully detailed and furnished spaces. Innovative art installations and eye-catching environmental graphics celebrate the achievements of UO alums—jocks and bookworms alike. “It’s a project that follows through on the interior,” juror Scott Kilbourn noted, with an unwitting sports reference.


Project Credits

University Of Oregon, John E. Jaqua Academic Center For Student Athletes, Eugene, Ore.
Client University of Oregon
Architect Zimmer Gunsul Frasca Architects, Portland, Ore.—Bob Packard (partner-in-charge); Gene Sandoval (design partner); Jan Willemse (technical design partner); Robert Snyder (project manager); Jennifer Russina, Walker Templeton, Yoshiyuki Watanabe (project designers); Trent Thelen (landscape architect, “The Green”); Man Hui Chan (graphic designer); Larry Bruton, John Breshears, Dieneke Kniffin, Rich Moore, Erica Rinella, Lee Kilbourn, Brian Stevens, Ryan Thomson, Robert Petty, Johah Ross (design team)
Interior Architect Firm 151—Randy Stegmeier (principal interior architect); Jenn Ward (interior architect)
Contractor
Hoffman Construction Co.
Structural Engineer KPFF Consulting Engineers
M/E/P Engineer Interface Engineering
Façade Engineer Arup
Civil Engineer Harper Houf Peterson Righellis
Geotechnical Engineer GRI Geotechnical & Environmental Consultants
Landscape Architect Charles Anderson Landscape Architecture
Acoustics Altermatt Associates
A/V Systems Interface; Delta AV
Code Consultants Rolf Jensen & Associates
Artists/Craftspeople Rosa Serra, Basil Childers, Bob Lambie, Lamer Woodworking, Tice Industries
Size 40,000 square feet
Cost Withheld
Photography Pete Eckert

About the Author

Mimi Zeiger

Mimi Zeiger is a Los Angeles-based journalist and critic. The author of New Museums, Tiny Houses and Micro Green: Tiny Houses in Nature, she teaches in Art Center’s Media Design Practices MFA program and is co-president of the Los Angeles Forum for Architecture and Urban Design.   

No recommended contents to display.

Upcoming Events

  • Design Smarter: Leveraging GIS, BIM, and Open Data for Better Site Selection & Collaboration

    Live Webinar

    Register for Free
  • Slate Reimagined: The Surprising Advantages of Slate Rainscreen Cladding

    Webinar

    Register Now
  • The State of Residential Design Today: Innovations and Insights from RADA-Winning Architects

    Webinar

    Register for Free
All Events