St. Nicholas Antiochian Orthodox Church

Springdale, Ark.

1 MIN READ

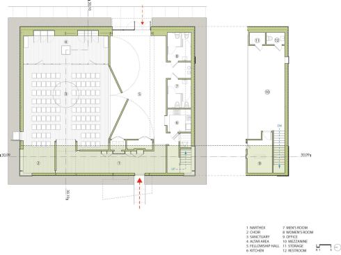
Marlon Blackwell Architect • Architecture is, at its best, transformative. In Springdale, Ark., Marlon Blackwell Architect took that idea to a new level, turning an existing metal shop into an Eastern Orthodox church. The design team extended the building (by only 10 feet), added a tower, and reclad it in box-ribbed metal panels, turning the humble structure into what juror Donna Robertson termed “a focal point for the community.” Juror Yolande Daniels appreciated the project’s restraint and “liked its simplicity. It’s like the America that doesn’t usually work with architects,” she said. And all of the jurors appreciated the design team’s out-of-the-box thinking, which allowed the project to be completed for $100 per square foot and included another transformation: turning a defunct satellite dish (obtained in trade for two cases of beer) into a dome over the 100-seat sanctuary.


Project Credits

Saint Nicholas Antiochian Orthodox Church, Springdale, Ark.
Owner/Client St. Nicholas Antiochian Orthodox Church
Architect of Record Marlon Blackwell Architect, Fayetteville, Ark.—Marlon Blackwell (principal); Meryati Blackwell, Jon Boelkins, Bradford Payne, Stephen Reyenga, Gail Shepherd (project team)
Civil Engineer Bates & Associates
Structural Engineer Myers Beatty Engineering
General Contractor Lourie Construction
Size 3,052 square feet (ground level), 720 square feet (mezzanine)
Cost $100 per square foot
Photography Timothy Hursley

About the Author

Katie Gerfen

Katie Gerfen is the former editor-in-chief of ARCHITECT, as well as the former editor of Custom Home.

No recommended contents to display.

Upcoming Events

  • Future Place

    Irving, TX

    Register Now
  • Archtober Festival: Shared Spaces

    New York City, NY

    Register Now
  • Snag early-bird pricing to Multifamily Executive Conference

    Newport Beach, CA

    Register Now
All Events