NYC School Construction Authority: Mott Haven Campus

Bronx, N.Y. / Perkins Eastman

2 MIN READ

Category: Grow
Honorable Mention

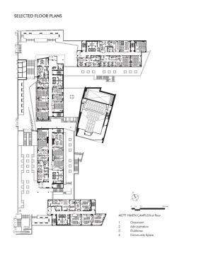
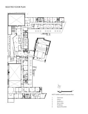
In New York, space is always at a premium. So when faced with high demand for classrooms, the New York City Department of Education turned to an old rail yard—17 to 30 feet below grade—for additional space. Perkins Eastman designed the $137 million Mott Haven Campus to accommodate four distinct schools on the brownfield site, clustered around a shared 600-seat performing arts space and sports field. Each school (all of which have grades 9–12, and one of which also has K–4 students) has its own identity, with a separate color scheme, entry, classrooms, and dining facilities.

The jury lauded the campus for creating a sense of place for the students, especially in light of “all the issues that come up with being in that kind of densely compacted area,” said juror Ted Landsmark, who also noted that projects like the Mott Haven Campus can create incentive for public authorities to follow the example. “Urbanistically it does some good things,” juror Raymund Ryan said. “it creates a kind of haven inside with this shared space.”


Project Credits

NYC School Construction Authority: Mott Haven Campus, Bronx, N.Y.
Client New York City School Construction Authority
Architect Perkins Eastman, New York—Aaron Schwarz, FAIA (principal-in-charge); Perry Nunez, Christine Schlendorf (project managers); Ernesto Vela, Joseph Iannucci, Melissa Schroeder, Kate Hanenberg (design team)
Associate Architect Alexander Gorlin Architects—Alexander Gorlin, FAIA
M/E/P Engineers WSP Flack + Kurtz—Sheldon M. Steiner (senior vice president)
Structural Engineer Leslie E. Robertson Associates—Rick Zottola (partner)
Civil Engineer Langan Engineering and Environmental Services—Alan Poeppel (senior associate)
Landscape Architect RGR Landscape—Geoffrey Roesch (principal)
Food Service Romano Gatland Food Service Consultants—John LaBarbera
Theater Acoustics Harvey Marshall Berling Associates—Todd Berling (principal consultant)
General Contractor The DeMatteis Organization
Size 286,651 square feet
Cost $157.82 million (including site work)
Photograph Chris Cooper


About the Author

Katie Gerfen

Katie Gerfen is the former editor-in-chief of ARCHITECT, as well as the former editor of Custom Home.

No recommended contents to display.

Upcoming Events

  • Design Smarter: Leveraging GIS, BIM, and Open Data for Better Site Selection & Collaboration

    Live Webinar

    Register for Free
  • Slate Reimagined: The Surprising Advantages of Slate Rainscreen Cladding

    Webinar

    Register Now
  • The State of Residential Design Today: Innovations and Insights from RADA-Winning Architects

    Webinar

    Register for Free
All Events