L.B. Landry High School

New Orleans / Eskew+Dumez+Ripple

1 MIN READ

Category: Grow
Honorable Mention

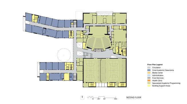
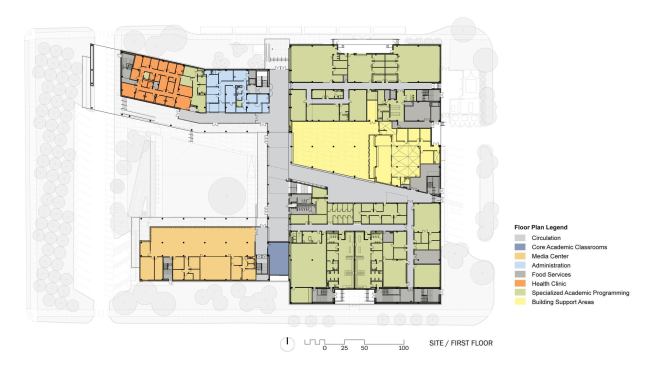
In the aftermath of Hurricane Katrina, five damaged New Orleans schools were fast-tracked for reconstruction. Local firm Eskew+Dumez+Ripple designed one of these “quick start” projects, L.B. Landry High School, to withstand both the Gulf Coast’s frequent hurricanes and everyday humidity. With a high-reflectance roof, insulated metal-panel cladding, and a glass curtainwall, the 236,000-square-foot building targets energy performance 32 percent below baseline. Three wings of the building wrap around a central courtyard, which admits daylight and captures runoff. Even with a tight time frame—six months for design, 20 months for construction—and the relative lack of energy-efficient construction expertise in the area, the architects anticipate LEED Silver certification. The school itself serves as a classroom, juror Ted Landsmark said: “I think some of the young people attending this school will consider a career in architecture because they’ve experienced this kind of good design.”


Project Credits

L.B. Landry High School, New Orleans
Owner Louisiana Recovery School District
Program Manager CSRS
Architect of Record Eskew+Dumez+Ripple, New Orleans—Steve Dumez, FAIA, Tracy Lea, AIA, Randy Hutchison, Cynthia Dubberley, Jenny Pelc, AIA, Amanda Rivera, AIA, Robert Kleinpeter, Jason Richards, AIA, Dru Lamb, David Demsey, Thaddeus Zarse (project team)
Associate Architect SHW Group, Houston
General Contractor Satterfield and Pontikes Construction
Structural and Civil Engineer Schrenk and Peterson Consulting Engineers
Mechanical and Electrical Engineer Moses Engineers
Landscape Architect Daly Sublette
Acoustic Design Gracenote Consulting
Food Facilities Design Futch Design Associates
Geotechnical Engineers Eustis Engineering Co.
Program Manager CSRS/Jacobs Engineering
Size 236,000 square feet
Cost $232 per square foot
Photograph Timothy Hursley

About the Author

No recommended contents to display.

Upcoming Events

  • Design Smarter: Leveraging GIS, BIM, and Open Data for Better Site Selection & Collaboration

    Live Webinar

    Register for Free
  • Slate Reimagined: The Surprising Advantages of Slate Rainscreen Cladding

    Webinar

    Register Now
  • The State of Residential Design Today: Innovations and Insights from RADA-Winning Architects

    Webinar

    Register for Free
All Events